家事室の間取り一覧
家族や自分の”好き”を叶える注文住宅の間取りが見つかる!暮らしの要望をもとに全国の建築家が作成した家事室の間取りを124件公開しています。毎日更新中!
-
- 33坪
- 3LDK
奥まった落ち着きのあるLDKから、テラス越しに公園の自然を堪能できる家
-
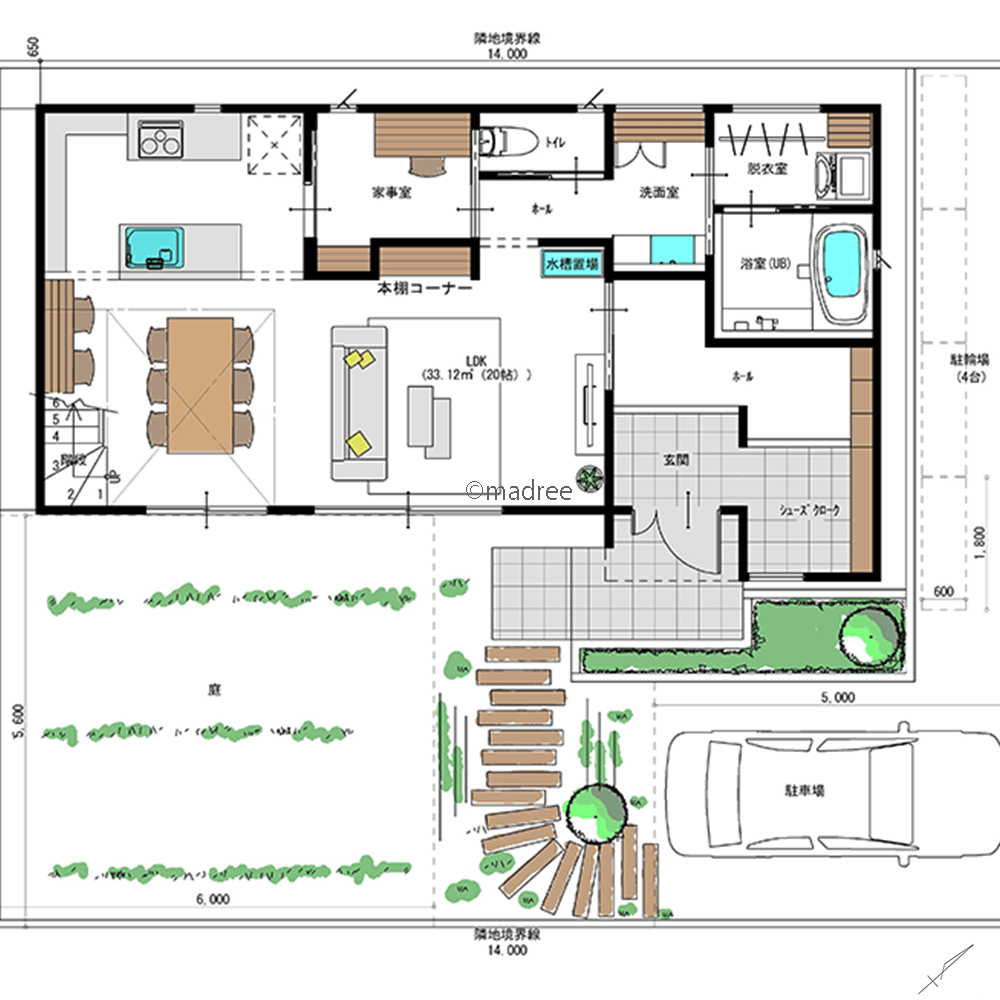
- 33坪
- 4LDK
家族の集うLDKを生活の中心に、スッキリ整う収納量で家事効率の上がる平屋
-
- 39坪
- 3LDK
LDKと書斎をフレキシブルに空間分け、家族を見守りながら在宅ワークできる家
-
- 39坪
- 3LDK
吹抜を通じて各フロアを繋ぐ、どこにいても家族の気配を感じられる家
-
- 35坪
- 3LDK
各階に水廻り設置で利便性UP、季節の移ろい楽しむ2階リビングの家
-
- 36坪
- 3LDK
キッチン中心に繋がる家事動線で、共働きでも忙しい毎日が楽になる家
-
- 39坪
- 3LDK
回遊性を活かして生活を楽に繋ぐ、来客時でも居心地よくLDKで過ごせる家
-
- 41坪
- 5LDK
回遊動線で毎日の家事をより効率的に、趣味の時間を有意義に過ごせる家
-
- 34坪
- 3LDK
リビングを整えつつ家事効率UP、多目的な家事スペースのある家
-
- 34坪
- 4LDK
廊下を兼ねるウォークスルー収納で音対策、機能的な家事動線で繋がる平屋
-
- 33坪
- 4LDK
自分時間を快適に過ごせる、家族それぞれにパーソナルスペースのある家
-
- 50坪以上
- 6LDK
眺望を活かしガーデンライフを楽しむ、ピロティーでつながる二世帯住宅
-
- 44坪
- 4LDK
キッチン中心にぐるっとラク家事、すっきりを保つ収納と快適動線の家
-
- 33坪
- 2LDK
ゆったり廊下で伸びやかに過ごす、家族みんなに優しいバリアフリーの家
-
- 34坪
- 1LDK
視線を気にせず眺望を楽しむ、リビングで1日の太陽の動きを感じられる家
-
- 42坪
- 2LDK
多回遊動線が生活を楽にする、自然を感じながら人を繋ぐ屋根付きテラスのある平屋
-
- 33坪
- 4LDK
暮らしを楽にするスムーズな家事動線、プライバシーを守りながらも開放感を両立した家
-
- 42坪
- 6LDK
各々のパーソナルスペースで自由な自分時間、お互い気兼ねせず過ごせる二世帯住宅
-
- 50坪以上
- 6LDK
共働き子世帯と親世帯が程よく寄り添う、光たっぷり快適な回遊動線の二世帯住宅
-
- 44坪
- 4LDK
2階リビングで光と開放感を追求、オンオフ切り替えやすい在宅ワーカーの家
-
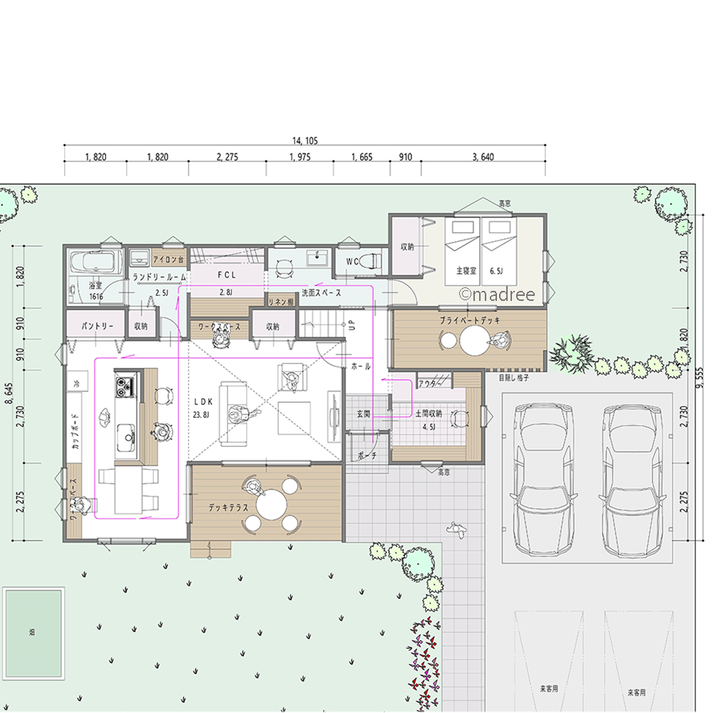
- 36坪
- 2LDK
家族の中にもOFFの時間を大切に、夫婦でのんびり過ごせるプライベートデッキのある家
-
- 49坪
- パントリー
互いに干渉せず程よく交流できる、店舗付きの多世帯で住む家
-
- 27坪〜30坪
- 2LDK
暮らしやすさと趣味を共存、ぬくもりに溢れた四季を感じる平屋
-
- 36坪
- 3LDK
家事を楽しむコンパクトな生活動線、登る朝陽を横長な建物全体で感じられる家
マドリー開発の『住宅営業支援ツール』
madreeデータバンク
マドリーの人気間取り4,800プランを接客・提案に活用できる営業支援ツール
- 競合他社と差がつく、スピード提案
- トレンド間取りで、集客・受注数UP
- 建築家のアイデアを参考に、質の高い提案ができる
