24坪~27坪の間取り一覧
家族や自分の”好き”を叶える注文住宅の間取りが見つかる!暮らしの要望をもとに全国の建築家が作成した24坪~27坪の間取りを82件公開しています。毎日更新中!
-
- 27坪
- 3LDK
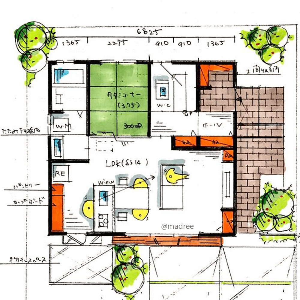
お互いのスタイルを大切にした夫婦2人の暮らし、バリアフリーを意識した廊下のない平屋
-
- 25坪
- 2LDK
回遊性で苦手な掃除もラクラク、平屋のようにも使えるリビング中心の家
-
- 25坪
- 3LDK
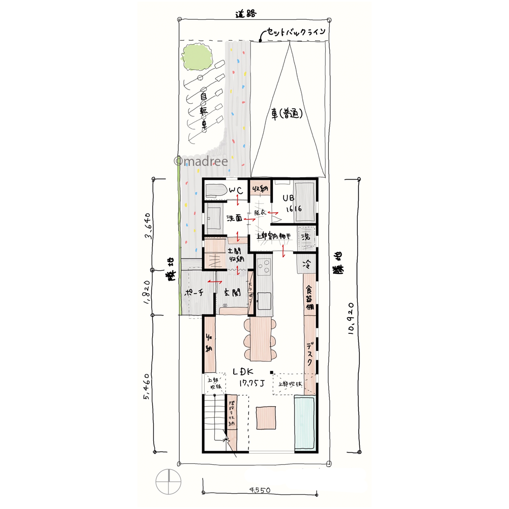
帰宅後はキレイサッパリしてLDKへ、壁面収納で狭小地を広々使える家
-
- 26坪
- 3LDK
視線を気にせず在宅勤務、空の近い2階LDKで気分良く家時間過ごす家
-
- 26坪
- 3LDK
旗竿地を生かして回転駐車、アプローチが屋外プライベート場になる家
-
- 25坪
- 3LDK
温もり感じる家族の憩い場、LDKから圧迫感なく広がる狭小地の家
-
- 26坪
- 5LDK
キッチンから庭まで視線が抜ける、家族と多く触れ合うリビング中心の家
-
- 26坪
- 2LDK
壁面と床下収納で空間広く使う、日差しをたっぷり感じる2階リビングの家
-
- 27坪
- 2LDK
南向きに外と繋がり開放感UP、中心のリビングに家族集う家
-
- 25坪
- 4LDK
中心のキッチンより家族見守る、ひと工夫で広々使える狭小住宅
-
- 28坪
- 1LDK
光と風が心地よく抜ける、別荘のような緑の借景で日々癒される平屋
-
- 26坪
- 2LDK
大収納で部屋が整いラクラク掃除、将来的にワンフロアで暮らすL字の家
-
- 26坪
- 2LDK
坪庭借景が玄関彩る、愛犬の側で過ごす土間リビングのある平屋
-
- 25坪
- 4LDK
狭小地を広々使える空間工夫、木の温もりを感じる勾配天井の家
-
- 26坪
- 3LDK
最短ルートでササっと家事、キッチンから無駄なく動線繋がる家
-
- 27坪
- 4LDK
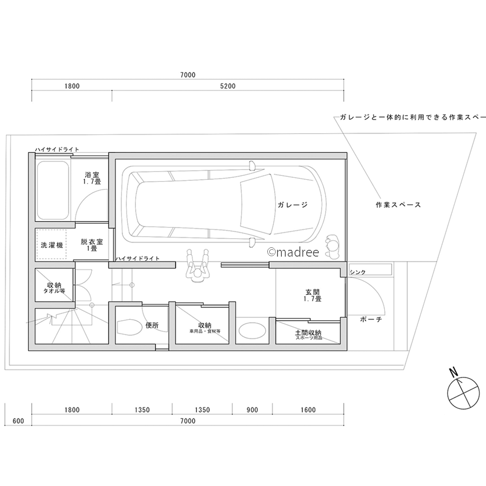
帰宅後はまずお風呂へ直行、家事動線を2階にまとめたガレージハウス
-
- 27坪
- 3LDK
屋外の開放感を日常に取り込む、緩やかに繋がるLDKで家族団欒過ごす家
-
- 25坪
- 3LDK
仕事の合間にサクサク家事できる、小回り動線で住み良い家
-
- 27坪
- 1LDK
引き戸で繋がる開放的な生活空間、緑に囲まれた快適通風の平屋
-
- 27坪
- 2LDK
トップライトから柔らかな光が注ぐ、大開口で視線抜ける狭小住宅
-
- 25坪
- 4LDK
狭小地を広々使える工夫を詰めた、家族と木の温もり感じる家
-
- 26坪
- 4LDK
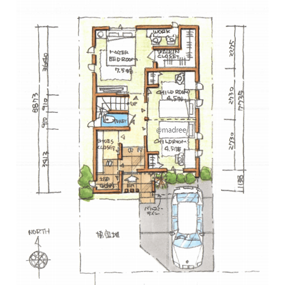
ムダ廊下減らし収納増やす、子どもの顔が毎日見られる家
-
- 27坪
- 3LDK
ワンフロアで家事完結、効率重視の明るい2階リビングの家
-
- 27坪
- 4LDK
帰宅後すぐにキッチンへ、回遊動線で狭小でものびのびできる家
マドリー開発の『住宅営業支援ツール』
madreeデータバンク
マドリーの人気間取り4,800プランを接客・提案に活用できる営業支援ツール
- 競合他社と差がつく、スピード提案
- トレンド間取りで、集客・受注数UP
- 建築家のアイデアを参考に、質の高い提案ができる
