セカンドリビングの間取り一覧
家族や自分の”好き”を叶える注文住宅の間取りが見つかる!暮らしの要望をもとに全国の建築家が作成したセカンドリビングの間取りを209件公開しています。毎日更新中!
-
- 41坪
- 4LDK
家事と身支度がはかどる裏動線、将来平屋のように使えるL字型の家
-
- 40坪
- 3LDK
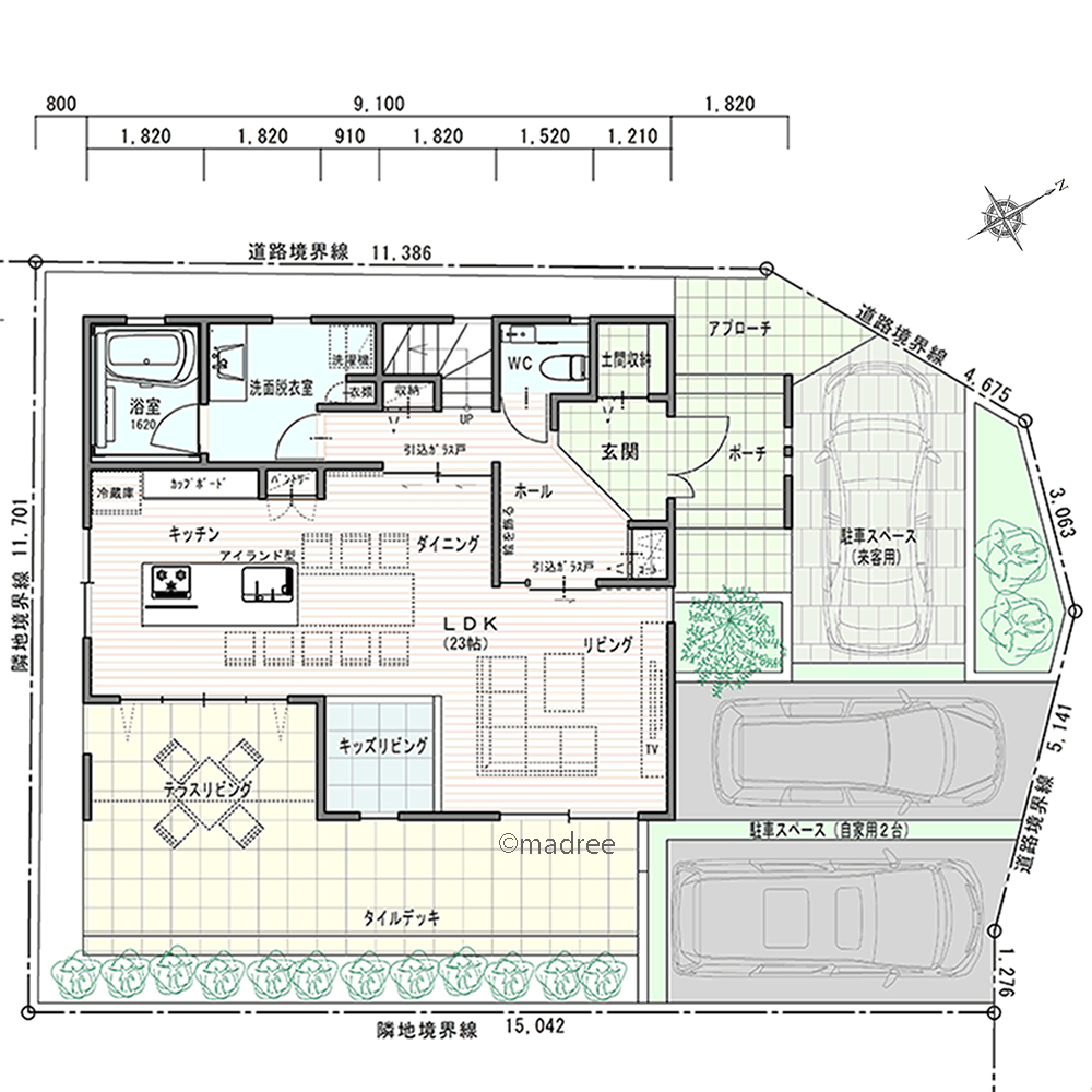
2つのテラスでON/OFFが充実、プライバシーと開放感を両立したコの字型の家
-
- 27坪〜30坪
- 2LDK
南面採光の吹抜窓を活かした、明るく見通し良いLDK空間の家
-
- 33坪
- 4LDK
回遊性と廊下なしの空間活用で、明るくのびやかな縦長の家
-
- 55坪
- 3LDK
子どもと一緒に趣味を楽しむ、LDKから繋がるテラスと剣道場のある家
-
- 52坪
- 3LDK
子育てしながら別階で在宅ワーク、気持ちにメリハリのでる事務所併設の家
-
- 43坪
- 3LDK
朝日で気持ち良い朝を迎える、大空間リビングに人が集うほぼ平屋の家
-
- 36坪
- 3LDK
来客に生活感を見せない工夫、家族も安心して過ごせるサロン部屋のある家
-
- 33坪
- セカンドリビング
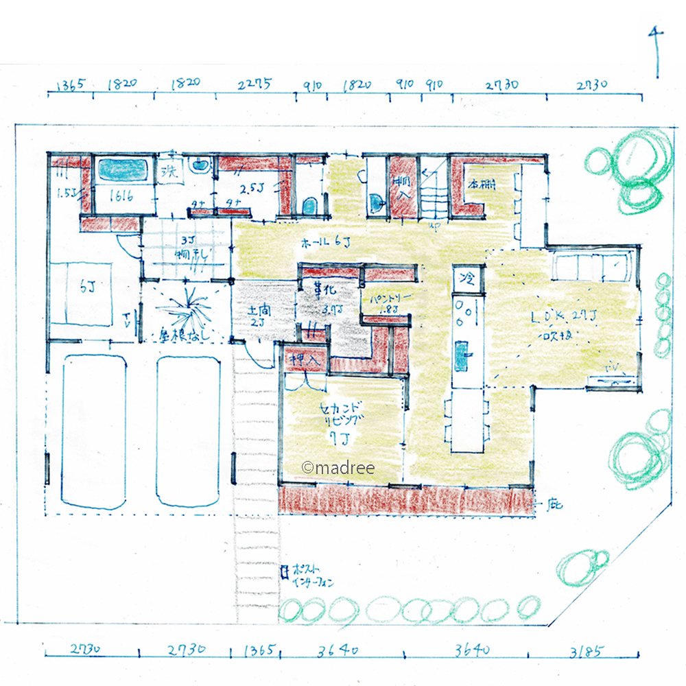
吹抜でつながるリビングとサブリビング、家族の絆深まる空間有効活用の家
-
- 59坪
- 3LDK
気兼ねせず自宅で稽古に打ち込める、明るく開放的な剣道場のある家
-
- 50坪以上
- 4LDK
屋内外一体のプライベート空間、家事動線と繋がるアウトドアリビングのある家
-
- 39坪~42坪
- 3LDK
縦横無人に広がるLDK空間に人集まる、老後を見据えたほぼ平屋のような家
-
- 36坪
- 3LDK
家族時間を大切に育む、開口窓と吹抜でタテヨコ空間広がる家
-
- 36坪
- 2LDK
スキップダウンのサブリビングで散らかり防止、子ども達がLDKで思い切り遊べる家
-
- 42坪
- セカンドリビング
庭から庭へ視線の抜ける開放感、雰囲気を感じつつプライバシーも守る二世帯住宅
-
- 61坪
- 4LDK
横長の土地を玄関中心にゾーン分け、日当たり良いのびやかな家
-
- 39坪
- 3LDK
まわりからの視線を気にせず、広いLDKとテラスでのびのび過ごす家
-
- 63坪
- 2LDK
裏動線に生活感隠して来客ウェルカム、おもてなし上手な土間リビングのある家
-
- 42坪
- 5LDK
共有しながら各々趣味も充実させる、全個室南向きの暖かな二世帯住宅
-
- 41坪
- 3LDK
自然感じる伸びやかなLDKと、多目的ファミリールームのある平屋
-
- 38坪
- 2LDK
コミュニケーションを取りやすい空間の繋がり、キッチンから安心して家族を見守る家
-
- 47坪
- 4LDK
ウォークスルーの裏動線でスッキリ、散らかり知らずの心地良いリビングの家
-
- 33坪
- 3LDK
お気に入りを壁に飾って空間活用、おしゃれに魅せる視線の抜ける家
-
- 39坪
- 3LDK
扉ひとつで間仕切る癒しスペース、離れのように過ごすサブリビングのある平屋
マドリー開発の『住宅営業支援ツール』
madreeデータバンク
マドリーの人気間取り4,800プランを接客・提案に活用できる営業支援ツール
- 競合他社と差がつく、スピード提案
- トレンド間取りで、集客・受注数UP
- 建築家のアイデアを参考に、質の高い提案ができる
