39坪の間取り一覧
家族や自分の”好き”を叶える注文住宅の間取りが見つかる!暮らしの要望をもとに全国の建築家が作成した39坪の間取りを134件公開しています。毎日更新中!
-
- 39坪
- 3LDK
行き止まりなく屋内外へ動線繋がる、空間を無駄なく活用した回遊性のある家
-
- 39坪
- 4LDK
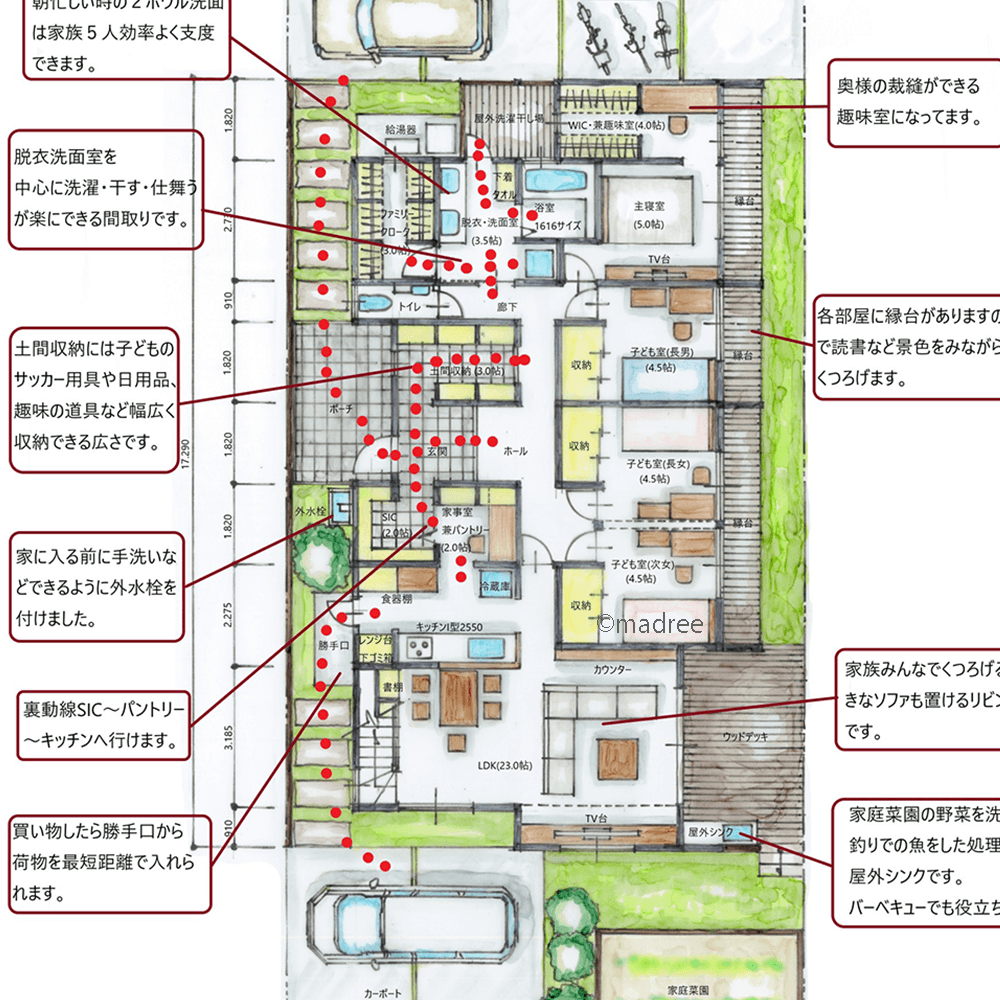
3WAY玄関で各所にサクサク動ける、身も心もスッキリ整う片付け上手の帰宅動線の家
-
- 39坪
- 2LDK
グリーンの目隠しでのびのび遊べ、2つのデッキから光溢れる陽だまりリビングの家
-
- 39坪
- 3LDK
すべての空間がワンフロアに集約、効率良い生活動線でゆったりと過ごせる平屋
-
- 39坪
- 3LDK
少し篭れる家族の癒し空間、縦にも屋外にも視界の広がるピットリビングのある家
-
- 39坪
- 4LDK
庭とつながるダイナミックなリビングが主役、機能別に空間分けた快適動線の家
-
- 39坪
- 3LDK
自然光の届くリラックス空間、家族みんなが通る2階廊下をホームライブラリーにした家
-
- 39坪
- 2LDK
2階LDKから段差なく大開口窓で繋がる、海を背景に広がりある景観を満喫できる家
-
- 39坪
- 4LDK
共働きに嬉しい集約された家事動線、広々リビングで家族とのゆったり時間増える家
-
- 39坪
- 2LDK
隠れるキッチンで空間をスッキリ保つ、フレキシブルな間仕切り扉で生活感も隠せる家
-
- 39坪
- 5LDK
水廻りとファミクロをぐるっと回って朝支度、どの部屋にも陽が入る平屋の二世帯住宅
-
- 39坪
- 3LDK
家のどこからでも自然を感じる、コの字の建物に囲まれたプライベート中庭のある家
-
- 39坪
- 2LDK
掘り炬燵の畳ダイニングで家族団欒、隠せる収納にこだわった常にLDKスッキリの家
-
- 39坪
- 3LDK
収納を充実させた回遊できる家事動線、一体感が心地良い庭と眺望を楽しむ家
-
- 39坪
- 4LDK
アレルギーと共存してペットと暮らす、お互いに快適な生活ができる犬猫部屋のある家
-
- 39坪
- 4LDK
パントリーを介して水廻りへアクセス、家事も生活も回遊動線でLDKと繋がる家
-
- 39坪
- 3LDK
爽やかな風が家中を通り抜ける、視線を気にしない心地良さにこだわった家
-
- 39坪
- 3LDK
適材適所の収納で生活整う、目的に合わせた空間使いでオンオフ切替えやすい家
-
- 39坪
- 3LDK
個室も外と繋がりロフトが秘密基地になる、遊び心あふれる家事ラク動線の家
-
- 39坪
- 4LDK
目配りできる室内と庭でのびのび子育て、多趣味に嬉しい小屋裏収納付きの家
-
- 39坪
- 3LDK
キッチンから庭まで目配りできる、回遊できる水廻りを裏動線にまとめた家
-
- 39坪
- 4LDK
裏動線と適材適所収納でスッキリ、キッチンから全体を見渡せる平屋
-
- 39坪
- 4LDK
リビングに花粉を持ち込まない、帰宅動線で片付くアウトドア好きの家
-
- 39坪
- 3LDK
どこにいても家族の様子を感じる、見晴らし良いLDK中心に生活の繋がる平屋
マドリー開発の『住宅営業支援ツール』
madreeデータバンク
マドリーの人気間取り4,800プランを接客・提案に活用できる営業支援ツール
- 競合他社と差がつく、スピード提案
- トレンド間取りで、集客・受注数UP
- 建築家のアイデアを参考に、質の高い提案ができる
