密集地の間取り一覧
家族や自分の”好き”を叶える注文住宅の間取りが見つかる!暮らしの要望をもとに全国の建築家が作成した密集地の間取りを116件公開しています。毎日更新中!
-
- 34坪
- 3LDK
LDKから視線が届かない裏動線、自分のペースで効率良く家事のできる家
-
- 42坪
- 3LDK
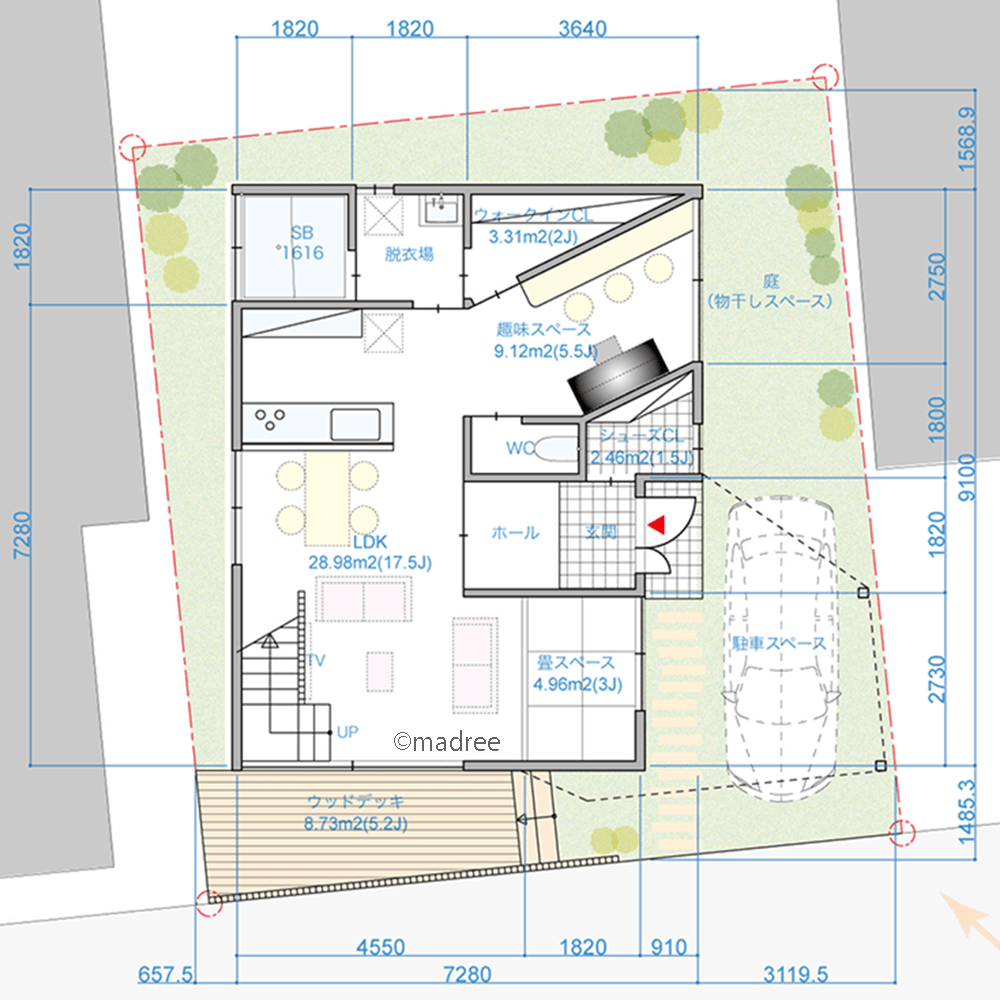
趣味時間を活き活き過ごす、外とつながる明るく開放的な旗竿地の家
-
- 66坪
- 6LDK
吹抜と窓越しにお互いを感じる、2階中央に半個室のコートヤードがある家
-
- 35坪
- 4LDK
回遊動線で効率的に家事シェア、家族や趣味時間を大切にできる家
-
- 51坪
- ロフト
家族や友人と楽しく体を動かす、賑やかな声響く大吹抜の3階建住宅
-
- 27坪〜30坪
- 3LDK
憧れのインナーガレージで趣味満喫、トップライトから光溢れる3階建て狭小住宅
-
- 23坪
- 2LDK
飾って眺めて好きな物に囲まれて過ごす、生活の中で常に趣味を感じられる家
-
- 27坪〜30坪
- 2LDK
家族団らんのリビング重視、2階にまとめた快適洗濯動線の家
-
- 36坪
- 2LDK
家事動線をキッチン中心にまとめた、子の成長と共にフレキシブルに対応できる家
-
- 31坪
- 3LDK
屋根より高い開放的な家族スペース、視線を気にせず屋上でのびのび過ごす家
-
- 42坪
- 4LDK
適材適所の壁面収納でスッキリ整う、土地を有効活用した二世帯住宅
-
- 42坪
- 3LDK
子育ても趣味もゆったり楽しむ、各々にパーソナルスペースがある縦長地の家
-
- 34坪
- 2LDK
まわりを囲まれた土地でも明るく視線カット、家族が集う空間を大切にした家
-
- 66坪
- 5LDK
家事も趣味も家族で楽しむ、インナーテラスと吹抜で縦横に視線が抜ける家
-
- 25坪
- 3LDK
帰宅後はキレイサッパリしてLDKへ、壁面収納で狭小地を広々使える家
-
- 36坪
- 4LDK
2階に洗濯動線をまとめた、いつでも来客ウェルカムの家
-
- 43坪
- 5LDK
中庭でプライバシーと開放感を両立、充実した帰宅動線で家事ラクな家
-
- 65坪
- 4LDK
中庭へと繋がるゆったり空間、建物中央から光届ける縦長コートハウス
-
- 49坪
- 5LDK
コレクションを飾って楽しむ、充実収納とギャラリー空間のある家
-
- 27坪〜30坪
- 5LDK
家族集まる明るい2階リビングと、インナーガレージで夢叶える狭小地の家
-
- 22坪
- 2LDK
圧迫感なく空間繋がる、床の高さに変化を付けた自然と目線の合う家
-
- 50坪以上
- パントリー
庭池の錦鯉と木々に癒される、人が集まる賑やかな二世帯住宅
-
- 32坪
- 3LDK
兼用カウンターで空間活用、開口デッキから光取り込む明るい旗竿地の家
-
- 27坪
- 2LDK
南向きに外と繋がり開放感UP、中心のリビングに家族集う家
マドリー開発の『住宅営業支援ツール』
madreeデータバンク
マドリーの人気間取り4,800プランを接客・提案に活用できる営業支援ツール
- 競合他社と差がつく、スピード提案
- トレンド間取りで、集客・受注数UP
- 建築家のアイデアを参考に、質の高い提案ができる
