2人家族の間取り一覧
家族や自分の”好き”を叶える注文住宅の間取りが見つかる!暮らしの要望をもとに全国の建築家が作成した2人家族の間取りを326件公開しています。毎日更新中!
-
- 35坪
- 3LDK
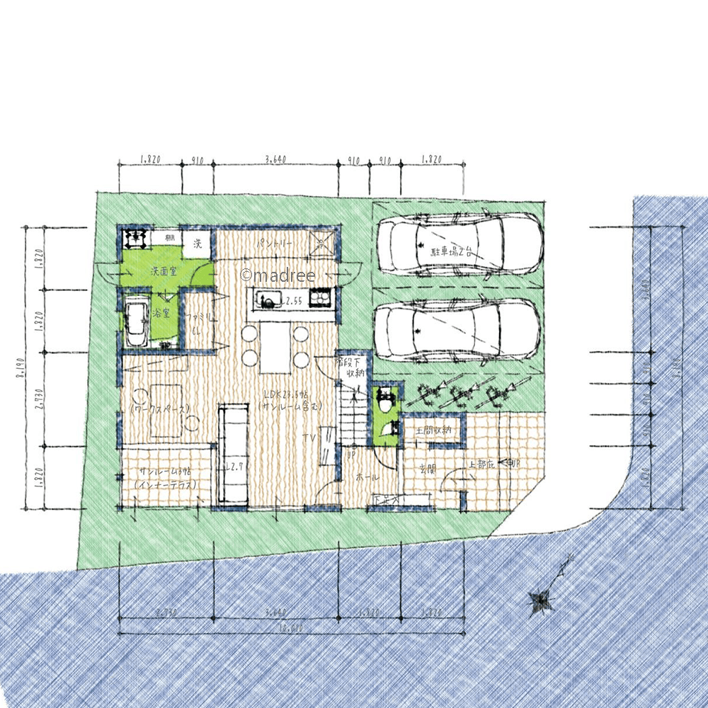
共働き夫婦に嬉しい家事動線、LDKと繋がるフレキシブルなサンルームのある家
-
- 34坪
- 3LDK
朝日をたっぷり取り込むLDKと、時短身支度で気持ち良い1日がスタートする家
-
- 33坪
- 2LDK
気持ち良く過ごせる癒しの在宅ワークスペース、坪庭の緑でリフレッシュできる平屋
-
- 31坪
- 2LDK
ゆとりある衣食住で心も体も休まる、太陽の光をたっぷり取り込んだ里山の家
-
- 63坪
- 2LDK
裏動線に生活感隠して来客ウェルカム、おもてなし上手な土間リビングのある家
-
- 38坪
- 2LDK
中庭デッキからの採光抜群、コの字の建物から桜並木のロケーションを楽しむ家
-
- 32坪
- 2LDK
リビングに各々のスペース確保、夫婦2人暮らしにちょうど良い平屋
-
- 35坪
- 1LDK
農作業後に嬉しいすぐサッパリの帰宅後動線、LDKを通らずテラスから水廻りへ直行できる平屋
-
- 35坪
- 5LDK
外からの視線気にしない伸びやかな暮らしを、玄関からテラスまで土間でつながる家
-
- 34坪
- 3LDK
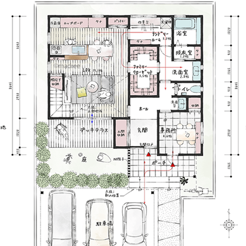
視認性のある職場と隠れたプライベート空間、家族が安心して過ごせる事務所併設の家
-
- 30坪
- 2LDK
ゆとりある空間配置で日々の生活を快適に、50代夫婦が将来を見据えて暮らす平屋
-
- 27坪〜30坪
- 3LDK
仕事と趣味をのんびり贅沢に愉しむ、太陽の光をたっぷり取りこむ里山の平屋
-
- 51坪
- 4LDK
プライベート空間はしっかり隠す、友人を気軽に呼べる土間リビングのある家
-
- 39坪
- 2LDK
L字型LDKが囲むプライベードデッキで、眺望を活かしたお花見やBBQを楽しめる家
-
- 35坪
- 3LDK
天気も時間も気にせず毎日快適に洗濯仕事、共働きに嬉しい採光サンルームのある家
-
- 36坪
- 3LDK
来客が入り込まない安心の家族スペース、廊下で空間をしっかり分けた事務所併設の家
-
- 32坪
- 2LDK
目的別デッキが屋外家事を楽にする、高齢になっても空間のゆとりで快適に過ごせる平屋
-
- 26坪
- 1LDK
泥付き野菜でも安心の収納スペース、室内から行き来できる倉庫兼ガレージのある平屋
-
- 35坪
- 2LDK
水廻り直行でLDKスッキリ、玄関からキッチンまでコンパクトに繋ぐ裏動線のある家
-
- 41坪
- 2LDK
3WAYの通り土間でプライバシーを守る、家族がのびのび過ごせる美容室併設の家
-
- 27坪〜30坪
- 2LDK
床生活でフレキシブルに空間活用、親子の目線が近くなる暖かな家
-
- 31坪
- 3LDK
コンパクト家事で休日のんびり過ごす、アウトドアリビングで余暇楽しむ家
-
- 39坪
- 3LDK
リビング全体が吹抜の開放感、階段を中心に家事と生活がぐるりと繋がる家
-
- 36坪
- 2LDK
老後を愛犬と快適に過ごす、動物アレルギーでも安心なペット専用部屋のある平屋
マドリー開発の『住宅営業支援ツール』
madreeデータバンク
マドリーの人気間取り4,800プランを接客・提案に活用できる営業支援ツール
- 競合他社と差がつく、スピード提案
- トレンド間取りで、集客・受注数UP
- 建築家のアイデアを参考に、質の高い提案ができる
