25坪の間取り一覧
家族や自分の”好き”を叶える注文住宅の間取りが見つかる!暮らしの要望をもとに全国の建築家が作成した25坪の間取りを23件公開しています。毎日更新中!
-
- 25坪
- 4LDK
寝室の小窓から愛車を眺める、三階建てのコンパクトな家
-
- 25坪
- 3LDK
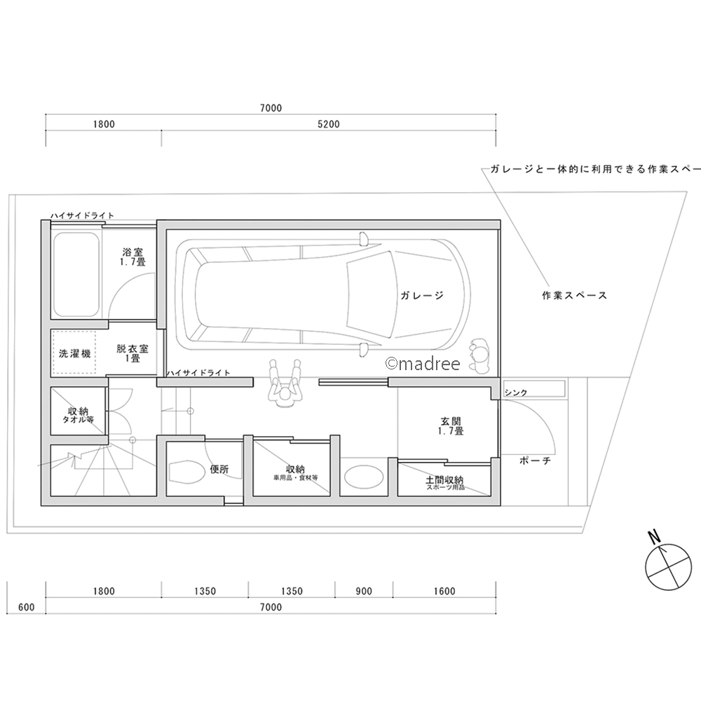
インナーガレージは趣味の空間、居心地の良い狭小地3階建の家
-
- 25坪
- 3LDK
自然の温もりを感じてリラックス、子どもの心と体を育む庭のある平屋
-
- 25坪
- 2LDK
成長と共にプライベートにも配慮できる、LDKから寝室へ繋がりを持つ平屋
-
- 25坪
- 3LDK
自然光が心地よいリビングで家族時間育む、キッチン中心に目配りできる平屋
-
- 25坪
- 3LDK
気軽に自然を感じながら過ごす、回遊動線でLDKと屋外空間の繋がる平屋
-
- 25坪
- 3LDK
3階までの動作をコンパクトにまとめる!フロアで生活空間を分けた狭小地の家
-
- 25坪
- 2LDK
キッチンカウンターで家族の会話彩る、バルコニーを囲んだ南向き2階LDKの家
-
- 25坪
- 3LDK
少ない廊下でコンパクトながらも大収納、朝陽が気持ち良い2階LDKの家
-
- 25坪
- 3LDK
コンパクトなL字型の生活動線、共働きに嬉しい陽だまり2階サンルームのある家
-
- 25坪
- 2LDK
おうちアウトドアの準備がサクッとできる、キッチンとリビングから繋がるウッドデッキのある家
-
- 25坪
- 2LDK
リフォームを視野に広さを確保、水廻りを集約したコンパクト家事動線の平屋
-
- 25坪
- 4LDK
縦に増やした空間構成、中二階にホッと休めるくつろぎリビングのある家
-
- 25坪
- 3LDK
自然光が気持ち良い2階LDKで、外からの視線を気にせずゆったりと暮らす家
-
- 25坪
- 4LDK
アウトドアリビングへ視界広がる、開放的で奥行き感じる狭小住宅
-
- 25坪
- 2LDK
回遊性で苦手な掃除もラクラク、平屋のようにも使えるリビング中心の家
-
- 25坪
- 3LDK
帰宅後はキレイサッパリしてLDKへ、壁面収納で狭小地を広々使える家
-
- 25坪
- 3LDK
温もり感じる家族の憩い場、LDKから圧迫感なく広がる狭小地の家
-
- 25坪
- 4LDK
中心のキッチンより家族見守る、ひと工夫で広々使える狭小住宅
-
- 25坪
- 4LDK
狭小地を広々使える空間工夫、木の温もりを感じる勾配天井の家
-
- 25坪
- 3LDK
仕事の合間にサクサク家事できる、小回り動線で住み良い家
-
- 25坪
- 4LDK
狭小地を広々使える工夫を詰めた、家族と木の温もり感じる家
-
- 25坪
- 3LDK
日当たり良いLDKで家族団欒、子どもと伸び伸び暮らす平屋
マドリー開発の『住宅営業支援ツール』
madreeデータバンク
マドリーの人気間取り4,800プランを接客・提案に活用できる営業支援ツール
- 競合他社と差がつく、スピード提案
- トレンド間取りで、集客・受注数UP
- 建築家のアイデアを参考に、質の高い提案ができる
