28坪の間取り一覧
家族や自分の”好き”を叶える注文住宅の間取りが見つかる!暮らしの要望をもとに全国の建築家が作成した28坪の間取りを37件公開しています。毎日更新中!
-
- 27坪〜30坪
- 2LDK
暮らしやすさをコンパクトに詰め込んだ住み心地良い3階建の家
-
- 27坪〜30坪
- 2LDK
成長に合わせて空間を変更できる、フレキシブルな兼ねる部屋のある家
-
- 27坪〜30坪
- 3LDK
奥まで明るい真っ直ぐな生活動線、トップライトから光が届く3階建ての家
-
- 27坪〜30坪
- 2LDK
毎日の生活に開放感と楽しさをプラス、狭小地を有効活用した3階建ての家
-
- 27坪〜30坪
- 2LDK
キッチン奥へ繋がる快適な家事動線で、家族と過ごす時間の増える家
-
- 28坪
- 4LDK
キッチン中心で家族とコミュニケーション育む、朝日をしっかり取り込む縦長の家
-
- 27坪〜30坪
- 3LDK
自然光と視界が心地良い、景色活かした伸びやかな家
-
- 27坪〜30坪
- 3LDK
狭小でも充実の収納でスッキリを保つ、吹抜ホールから家中に光を取り込む家
-
- 27坪〜30坪
- 3LDK
隣家が近くても光を上手に取り込みたい!天窓からの自然光で明るい縦長地の家
-
- 27坪〜30坪
- 3LDK
空間を有効活用し開放感生み出す、収納と動線重視の狭小地3階建て住宅
-
- 28坪
- 3LDK
壁面活用で理想のスペース確保、明るくのびやかな狭小地の家
-
- 27坪〜30坪
- 3LDK
吹抜とバルコニーより光降り注ぐ、変形地活かした来客ウェルカムの家
-
- 27坪〜30坪
- 3LDK
コンパクトながら明るく広がり感じる、すっきり裏動線で子育てしやすい家
-
- 27坪〜30坪
- 3LDK
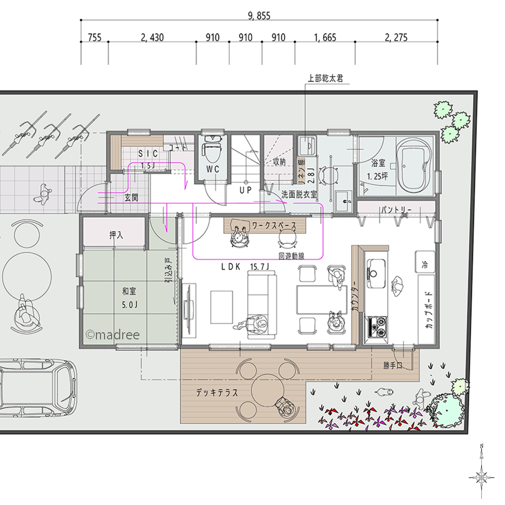
回遊動線で大人数でもストレスフリー、人が集まる賑やかな2階LDKの二世帯住宅
-
- 27坪〜30坪
- 3LDK
毎日の過ごし方に変化をつける、床の段差を生かして奥行きや広がりを楽しむ家
-
- 27坪〜30坪
- 3LDK
明るく風が抜けるLDKに家族が集まる、2階に家事動線をぎゅとまとめた家
-
- 27坪〜30坪
- 4LDK
適材適所の収納とシンプル動線で、ゆったりと心地良く過ごす二世帯住宅
-
- 27坪〜30坪
- 2LDK
奥行きの広いキッチンからの眺望、ワンフロアで家事が楽に完結する2階LDKの家
-
- 27坪〜30坪
- 2LDK
廊下も階段下も無駄なく活用、南側に開放感のあるリビング時間を満喫できる家
-
- 27坪〜30坪
- 5LDK
スムーズなおもてなし動線で気軽にお泊りできる、人が自然と集まる賑やかな家
-
- 27坪〜30坪
- 3LDK
憧れのインナーガレージで趣味満喫、トップライトから光溢れる3階建て狭小住宅
-
- 27坪〜30坪
- 4LDK
豊かな家族時間を過ごすアウトドアリビングと、適材適所の大収納で広々感じる家
-
- 27坪〜30坪
- 3LDK
階別に動線をハッキリ分けて安心、家族が快適に過ごせる人で賑わう家
-
- 27坪〜30坪
- 3LDK
散らかりがちな玄関がスッキリ、家事負担を軽減する収納動線の家
マドリー開発の『住宅営業支援ツール』
madreeデータバンク
マドリーの人気間取り4,800プランを接客・提案に活用できる営業支援ツール
- 競合他社と差がつく、スピード提案
- トレンド間取りで、集客・受注数UP
- 建築家のアイデアを参考に、質の高い提案ができる
