土地43坪の間取り一覧
家族や自分の”好き”を叶える注文住宅の間取りが見つかる!暮らしの要望をもとに全国の建築家が作成した土地43坪の間取りを17件公開しています。毎日更新中!
-
- 39坪~42坪
- 3LDK
プライバシーを確保した広めのテラスが中心の明るく開放感のある間取り
-
- 39坪~42坪
- 2LDK
家の中でも思い切り遊べるファミリーホールがある明るく開放感のある家
-
- 39坪~42坪
- 3LDK
利便性と快適さを兼ね備えつつ、家族みんなで集まる時間が心地良い家
-
- 33坪~36坪
- 2LDK
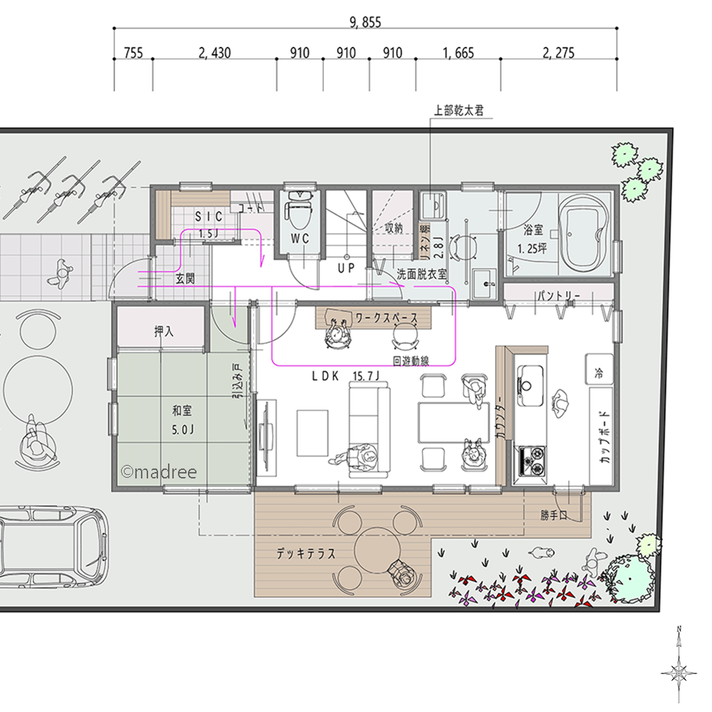
水回り直線動線で暮らしをスムーズにさせながら居心地の良い空間も確保したメリハリある家
-
- 32坪
- 4LDK
縦の広がりを活かして家中に光を届ける、吹抜から家族の気配を感じられる家
-
- 36坪
- 4LDK
フレキシブルな扉活用でLDKを無駄なく温度管理、空間にメリハリの生まれる家
-
- 36坪
- 4LDK
森の小道のような癒しの玄関アプローチ、中央玄関から2つの庭へ眺望の広がる家
-
- 38坪
- 3LDK
家族が増えても安心の収納量、義母との生活を見据えた同居予定の二世帯住宅
-
- 27坪〜30坪
- 5LDK
スムーズなおもてなし動線で気軽にお泊りできる、人が自然と集まる賑やかな家
-
- 38坪
- 4LDK
中庭につづく土間と吹抜が開放感生み出す、おしゃれに魅せる上手な空間使いの家
-
- 27坪〜30坪
- 4LDK
豊かな家族時間を過ごすアウトドアリビングと、適材適所の大収納で広々感じる家
-
- 44坪
- 4LDK
コの字のカフェ風キッチンに家族集う、実用性に温かみを加えた心地良き家
-
- 33坪
- 3LDK
和室をさまざまなシーンに大活用、自立促す家事ラク動線の家
-
- 33坪
- 3LDK
リビング上部に広がる縦空間、吹抜と繋がる多目的ロフトのある家
-
- 27坪〜30坪
- 4LDK
自然に集まる居心良さ、引き戸で屋内外と繋がる大空間LDKの家
-
- 32坪
- 6LDK
ウッドデッキで繋がり感じる、自然に集う居心地良いLDKの家
-
- 38坪
- 4LDK
家事室にもなるファミリークローゼットがある家
マドリー開発の『住宅営業支援ツール』
madreeデータバンク
マドリーの人気間取り4,800プランを接客・提案に活用できる営業支援ツール
- 競合他社と差がつく、スピード提案
- トレンド間取りで、集客・受注数UP
- 建築家のアイデアを参考に、質の高い提案ができる
