50坪の間取り一覧
家族や自分の”好き”を叶える注文住宅の間取りが見つかる!暮らしの要望をもとに全国の建築家が作成した50坪の間取りを27件公開しています。毎日更新中!
-
- 50坪以上
- 3LDK
家族それぞれの時間を思う存分楽しめる!趣味部屋やゲストルーム完備の3階建の家
-
- 45坪~49坪
- 5LDK
暮らしも趣味もぎゅっと詰まった客船のような細長い家
-
- 50坪
- 3LDK
広いガレージで趣味を楽しむ、休日はバルコニーで朝食を食べれる家
-
- 50坪
- 4LDK
一直線の水回りで家事ラクに!デッキとつながる大空間リビングの家
-
- 50坪
- 4LDK
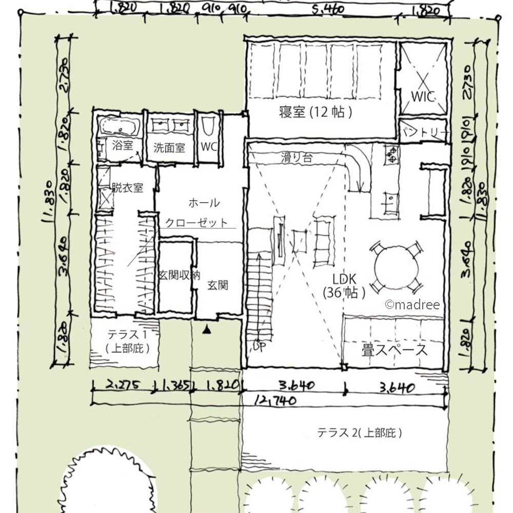
家族とコミュニケーション深まるキッチン配置で、将来は平屋のように使える大屋根の家
-
- 50坪
- 5LDK
屋内外で自分時間を満喫、家族の生活リズムを気にせず趣味を楽しめる家
-
- 50坪
- 5LDK
アウトドアリビングで家族の絆深まる、生活音に配慮した心地よい二帯住宅
-
- 50坪
- 2LDK
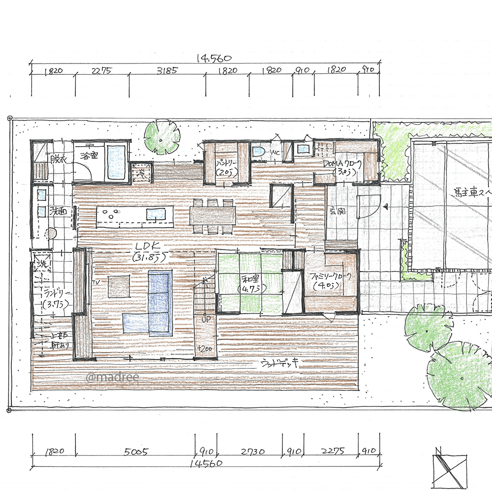
さくっと片付く家事動線と収納で、テラス越しに外界を取り込むのびやかな家
-
- 50坪
- 5LDK
家族もお客様も居心地良いLDK、家の中にも広がる屋外空間のある家
-
- 50坪
- 4LDK
階段を挟んでLDKを空間分け、デッキと繋がる楽家事動線で充実の自分時間を過ごす家
-
- 50坪
- 5LDK
家族が思い思いの時間を伸びやかに過ごす、縁側に囲まれた緑豊かな多世帯で住む家
-
- 50坪
- 5LDK
個室も外と繋がり開放的に、光と風が通る心地良い2.5世帯住宅
-
- 50坪
- 5LDK
視線をずらしてプライバシー確保、和室で繋がる心地良い二世帯住宅
-
- 50坪
- 4LDK
廊下をなくして裏動線を充実、空間にゆとり生まれるリラックスハウス
-
- 50坪
- 3LDK
2階に集約した効率良い生活動線、来客の多い家でも家族が安心して過ごせる家
-
- 50坪
- 4LDK
家族団欒とプライベートを両立、多様な生活スタイル対応の多世帯で住む家
-
- 50坪
- 4LDK
フレキシブルに隠せる広がる、LDKが家族の一番居心地の良い場所になる平屋
-
- 50坪
- 4LDK
ウッドデッキへ伸びやかにつながる、南向き大開口で明るく暖かい家
-
- 50坪
- 5LDK
家族がLDKに集まりたくなる、ゆったり空間で介護もしやすい同居予定の平屋二世帯住宅
-
- 50坪
- 5LDK
将来2世帯同居と介護を視野に入れ、家具家電をすっきりレイアウトした家
-
- 50坪
- 4LDK
梁見せ天井で木のぬくもりを感じる、介護しやすいゆったり平屋の二世帯住宅
-
- 50坪
- 4LDK
ストレスなく過ごせる明るいLDK、車椅子でも過ごしやすい平屋の二世帯住宅
-
- 50坪
- パントリー
1階リビングが憩いの場、玄関共有の二世帯住宅
-
- 50坪
- 4LDK
共働き夫婦が、車椅子の両親と同居する平屋の二世帯住宅
マドリー開発の『住宅営業支援ツール』
madreeデータバンク
マドリーの人気間取り4,800プランを接客・提案に活用できる営業支援ツール
- 競合他社と差がつく、スピード提案
- トレンド間取りで、集客・受注数UP
- 建築家のアイデアを参考に、質の高い提案ができる
