土地34坪の間取り一覧
家族や自分の”好き”を叶える注文住宅の間取りが見つかる!暮らしの要望をもとに全国の建築家が作成した土地34坪の間取りを20件公開しています。毎日更新中!
-
- 32坪
- 3LDK
独立キッチンで生活感を隠す、リビングすっきりの家
-
- 33坪
- 4LDK
2階リビングで歩道からの視線をカット、家事動線をまとめた家
-
- 34坪
- 4LDK
適材適所の収納で片付けやすく、家族が自然と集まる家
-
- 33坪
- 4LDK
明るく風通しの良いLDK、家族とコミュニケーション増える廊下のない家
-
- 30坪
- 4LDK
家族それぞれ自分らしい時間を過ごす、2方向のベランダから光溢れる2階リビングの家
-
- 31坪
- 3LDK
長く過ごす場所を快適な空間に、自然光と風が抜ける爽やかな通り道のある家
-
- 32坪
- 3LDK
家族が居場所を持ちつつ心地よく繋がる、キッチンからコミュニケーン取りやすい家
-
- 32坪
- 4LDK
普段使いもしやすい客間にもなる2WAY動線、玄関とリビングを繋ぐ和室のある家
-
- 53坪
- 5LDK
2階の生活空間でプライベート時間充実、LDKとバルコニーが回遊動線で繋がる家
-
- 23坪
- 4LDK
それぞれのパーソナル空間も大切に、明るい2階LDKが憩いの場となる家
-
- 33坪
- 4LDK
陽だまりLDKと繋がる庭のようなバルコニー、プライベート感のある2階でゆったり暮らす家
-
- 34坪
- 3LDK
縦横に繋がる吹抜の遊び場、お互いに落ち着く場所のある猫と一緒に暮らす家
-
- 33坪
- 3LDK
ウォークスルーで水廻りへ直行、帰宅後の手洗いが自然と習慣になる家
-
- 45坪
- 4LDK
西側テラスから光を取り込む、各所に居場所がある開放的な2階LDKの家
-
- 36坪
- 3LDK
2階リビングが暮らしの中心、生活感隠して空間広く見せる家
-
- 49坪
- 4LDK
スキップフロアで空間を縦に活かす、コンパクトでも広がりを感じられる家
-
- 36坪
- 3LDK
屋外空間で気軽に寛ぐ、2階LDKと繋がる快適インナーバルコニーのある家
-
- 50坪以上
- 5LDK
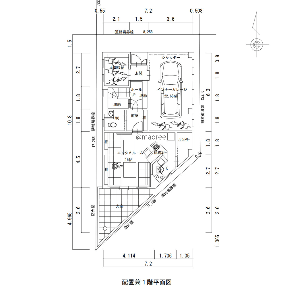
変形地でも光庭で明るいLDK、賑やかな声響くおもてなし上手の家
-
- 36坪
- 3LDK
大吹抜で家族も猫ものびのび過ごす、隠す収納ですっきり整う2階リビングの家
-
- 32坪
- 4LDK
細長い土地を有効活用、明るく外との繋がり感じる家
マドリー開発の『住宅営業支援ツール』
madreeデータバンク
マドリーの人気間取り4,800プランを接客・提案に活用できる営業支援ツール
- 競合他社と差がつく、スピード提案
- トレンド間取りで、集客・受注数UP
- 建築家のアイデアを参考に、質の高い提案ができる
