土地53坪の間取り一覧
家族や自分の”好き”を叶える注文住宅の間取りが見つかる!暮らしの要望をもとに全国の建築家が作成した土地53坪の間取りを38件公開しています。毎日更新中!
-
- 3LDK
晴れの日も雨の日もスムーズに洗濯!光と緑と風に癒される家
-
- 33坪~36坪
- 2LDK
光と風を取り込む吹き抜けが家族を心地良く包む家
-
- 33坪~36坪
- 3LDK
片付け捗る帰宅動線と効率的な家事ラク動線で暮らしが整う家
-
- 33坪~36坪
- 2LDK
プライバシーを確保しつつ、来客動線でおもてなしもバッチリの家
-
- 33坪~36坪
- 2LDK
玄関すぐのたっぷり収納と効率的な水回り動線で暮らしが整うお家
-
- 33坪
- 2LDK
右はプライベートスペース、左にオープンなLDK、生活空間を分けた収納豊富な家
-
- 31坪
- 3LDK
3WAYの帰宅動線でスッキリ片付く、螺旋階段のある明るい家
-
- 36坪
- 2LDK
吹抜けリビングが家族を繋ぐ、南からの光が差し込む縦長敷地の家
-
- 33坪~36坪
- 2LDK
家族用と来客用で明快に分かれた2way動線、開放的な玄関吹き抜けの家
-
- 34坪
- 3LDK
玄関からファミクロへ!片付けしながらの帰宅後動線の家
-
- 35坪
- 2LDK
暮らしのまんなかリビングで自然と家族が集まる家
-
- 42坪
- 3LDK
LDKから縦へ屋外へ広がる開放感、奥行きのあるデッキテラスから光を採り込む家
-
- 40坪
- 3LDK
大きな吹抜で日中明るいLDKと、趣味に囲まれた心温まる家
-
- 40坪
- 3LDK
朝陽を感じる気持ち良いキッチンから、無駄のない回遊動線で家事を効率良くこなす家
-
- 39坪
- 4LDK
3WAY玄関で各所にサクサク動ける、身も心もスッキリ整う片付け上手の帰宅動線の家
-
- 45坪
- 3LDK
どこからも利用しやすい建物中心の水廻り動線、大人数でも快適に過ごせる二世帯住宅
-
- 31坪
- 2LDK
お互いを尊重したペットとの生活、テリトリーを守りながら人も猫も快適に過ごす家
-
- 39坪
- 4LDK
目配りできる室内と庭でのびのび子育て、多趣味に嬉しい小屋裏収納付きの家
-
- 36坪
- 3LDK
L字で繋がる家族のスムーズ帰宅後動線、整えながら浴室へ直行の家
-
- 31坪
- 2LDK
陽だまりリビングで猫3匹とのんびり、生活感隠す裏動線の家
-
- 40坪
- 4LDK
開口窓越しの陽だまり縁側、コの字に囲まれたプライベート中庭のある家
-
- 34坪
- 3LDK
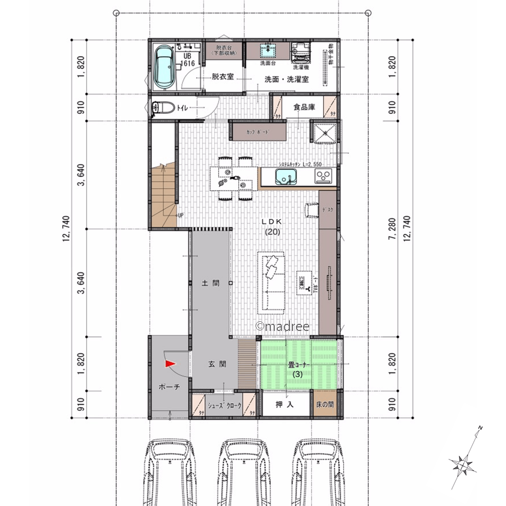
壁をなくして土間とLDKを一体化、玄関を開けると驚きの開放感がある家
-
- 26坪
- 3LDK
旗竿地を生かして回転駐車、アプローチが屋外プライベート場になる家
-
- 38坪
- 4LDK
座れる休める収納できる、小上がり畳の便利な階段踊り場がある家
マドリー開発の『住宅営業支援ツール』
madreeデータバンク
マドリーの人気間取り4,800プランを接客・提案に活用できる営業支援ツール
- 競合他社と差がつく、スピード提案
- トレンド間取りで、集客・受注数UP
- 建築家のアイデアを参考に、質の高い提案ができる
