47坪の間取り一覧
家族や自分の”好き”を叶える注文住宅の間取りが見つかる!暮らしの要望をもとに全国の建築家が作成した47坪の間取りを30件公開しています。毎日更新中!
-
- 45坪~49坪
- 4LDK
家族時間を大切にできる陽当たりと風通しを意識した心地良い家
-
- 45坪~49坪
- 5LDK
光と風で心地良さに満たされる、吹き抜けで繋がる3階建ての家
-
- 45坪~49坪
- 5LDK
坪庭の緑に癒され落ち着ける縦長間取り3階建ての家
-
- 47坪
- 2LDK
中央から屋内外へ繋がるバリアフリーの回遊動線で、老後も快適に暮らせる家
-
- 47坪
- 3LDK
風通しと陽だまりが心地良い、夫婦で在宅勤務に集中できる家
-
- 47坪
- 2LDK
アウトドア用品の収納は玄関が◎!土間と納戸で玄関先がスッキリ片付く家
-
- 47坪
- 5LDK
各々の個性と家族時間を大切にできる、南向き庭とつながる陽だまりの家
-
- 47坪
- 2LDK
雨風を遮り柔らかな光がLDKに届く、大きな窓で庭と繋がる深い軒のある家
-
- 47坪
- 5LDK
ゲストルーム付きでおもてなし上手に、傾斜地を生かした2階玄関の家
-
- 47坪
- 2LDK
大きく屋根の掛かる陽だまりテラスが、LDKと繋がるプライベートリビングになる家
-
- 47坪
- 3LDK
休日は外空間で家族団らん愉しむ、天候気にしないアウトドアリビングのある家
-
- 47坪
- 3LDK
天気を気にしない帰宅後の家事楽動線、広めのガレージと玄関土間で趣味を楽しむ家
-
- 47坪
- 4LDK
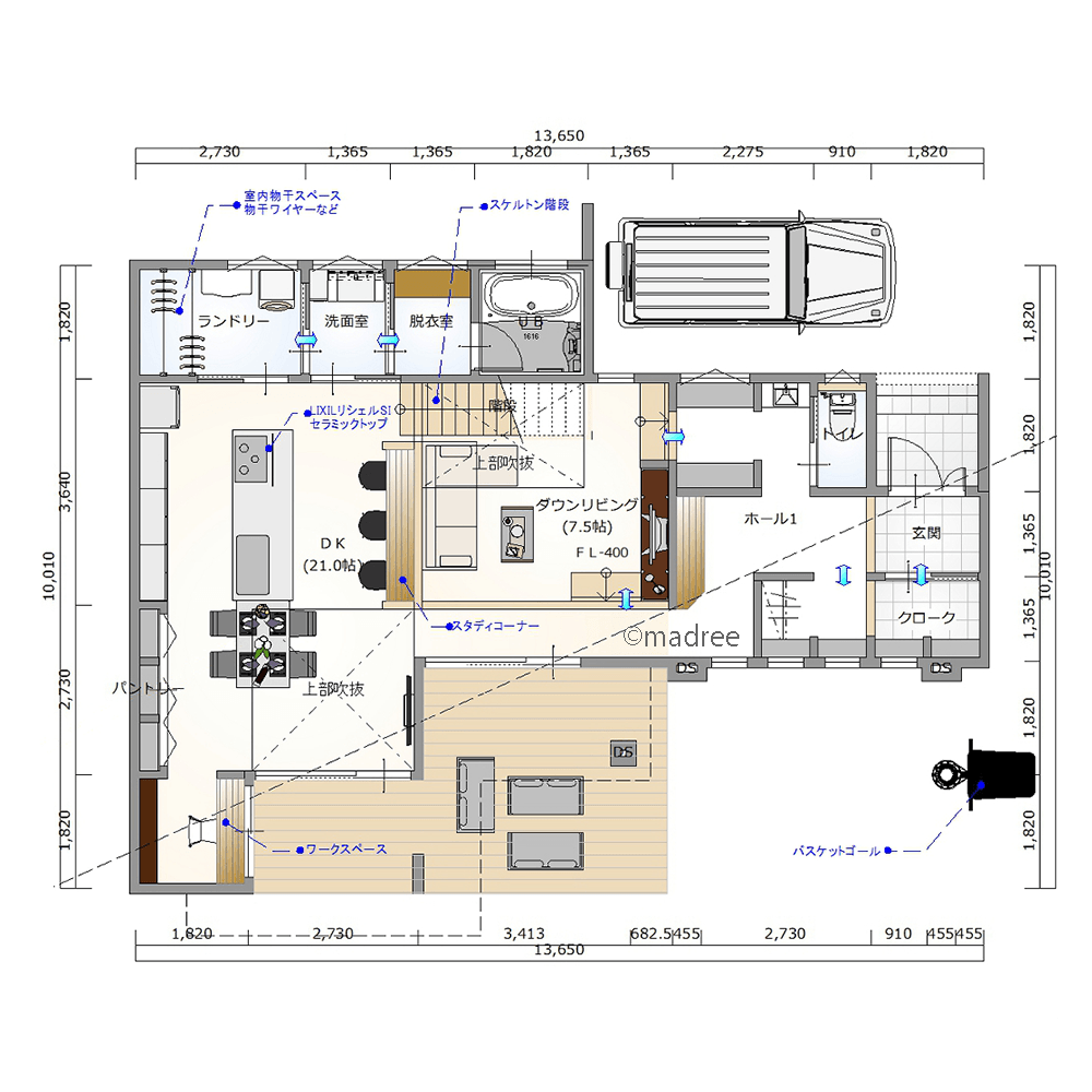
ウォークスルーの裏動線でスッキリ、散らかり知らずの心地良いリビングの家
-
- 47坪
- 畳コーナー
お互いに助け合える丁度良い距離感、将来を見据えた玄関共有の多世帯で住む家
-
- 47坪
- 5LDK
家族それぞれに癒しの篭り空間、パーソナルスペースで充実の時間を過ごす注文住宅
-
- 47坪
- 4LDK
週末は家族や友人とデッキで過ごす、整う壁面収納の大空間LDKの家
-
- 47坪
- 4LDK
ピットリビングとリビング吹抜で縦に広がる開放感、段差を生かした空間変化のある家
-
- 47坪
- 4LDK
カーテンなしで過ごす開放感、隣家からの視線が気にならない2階LDKの家
-
- 47坪
- 3LDK
陽当たり良好な快適ドライルーム、共働きでも天気を気にせず洗濯できる家
-
- 47坪
- 4LDK
中庭に臨む高天井リビングに家族集う、地震災害や防犯に配慮した平屋
-
- 47坪
- 5LDK
螺旋階段と吹抜で開放的なリビングに、人が集まるビルトインガレージの家
-
- 47坪
- 4LDK
縦にも奥にもパッと視界広がる、段差で変化をつけた開放的LDKの家
-
- 47坪
- 納戸
庭と和室を気軽に行き来、適度な距離で過ごす二世帯住宅
-
- 47坪
- 5LDK
プライベート充実の家時間、パーソナルスペースで趣味を楽しむ家
マドリー開発の『住宅営業支援ツール』
madreeデータバンク
マドリーの人気間取り4,800プランを接客・提案に活用できる営業支援ツール
- 競合他社と差がつく、スピード提案
- トレンド間取りで、集客・受注数UP
- 建築家のアイデアを参考に、質の高い提案ができる
