59坪の間取り一覧
家族や自分の”好き”を叶える注文住宅の間取りが見つかる!暮らしの要望をもとに全国の建築家が作成した59坪の間取りを10件公開しています。毎日更新中!
-
- 59坪
- 3LDK
南向きサンルームで一年中快適、花粉も梅雨も気にせず洗濯できる三階建ての家
-
- 59坪
- 3LDK
気兼ねせず自宅で稽古に打ち込める、明るく開放的な剣道場のある家
-
- 59坪
- 3LDK
来客が多くても家族は落ち着いて過ごせる、おもてなし用の玄関と土間リビングのある家
-
- 59坪
- 4LDK
コの字で囲む癒しプライベート空間、あらゆる部屋から中庭の緑を感じられる家
-
- 59坪
- 5LDK
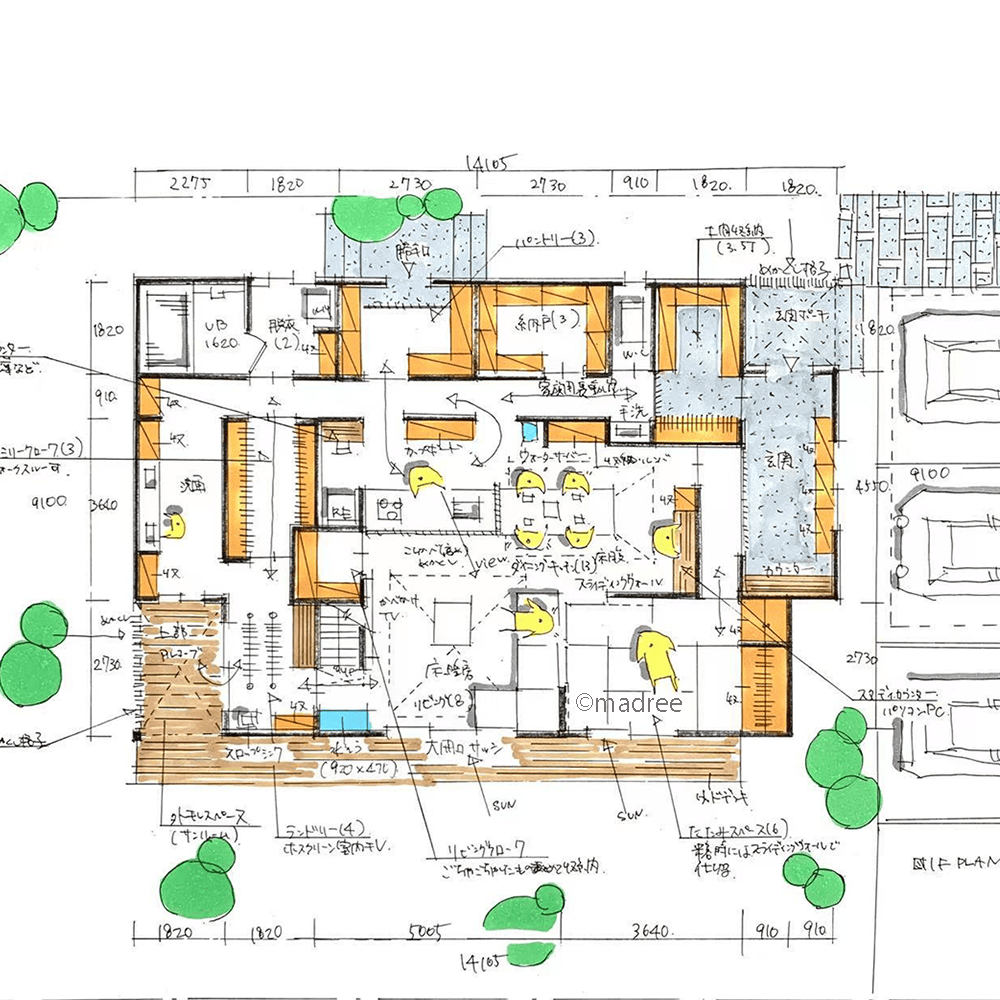
ワイドなデッキで外空間をたっぷり取り込む、家事1階完結かつ片付く帰宅動線の家
-
- 59坪
- 5LDK
緑豊かな庭で季節の移ろい感じる、凸凹変形地をうまく活用した二世帯住宅
-
- 59坪
- 5LDK
吹抜やトップライトで採光確保、階段でLDKをゆるく空間分けした家
-
- 59坪
- 4LDK
通り道の中庭が生活を結ぶ、視線気にせず開放感味わうコの字型コートハウス
-
- 59坪
- パントリー
別棟で過ごす親子の丁度良い距離、庭を自由に行き来する犬部屋のある家
-
- 59坪
- 4LDK
生活感を隠してゾーン分け、来客が多くても家族はのんびり過ごせる家
マドリー開発の『住宅営業支援ツール』
madreeデータバンク
マドリーの人気間取り4,800プランを接客・提案に活用できる営業支援ツール
- 競合他社と差がつく、スピード提案
- トレンド間取りで、集客・受注数UP
- 建築家のアイデアを参考に、質の高い提案ができる
