土地55坪の間取り一覧
家族や自分の”好き”を叶える注文住宅の間取りが見つかる!暮らしの要望をもとに全国の建築家が作成した土地55坪の間取りを24件公開しています。毎日更新中!
-
- 38坪
- 2LDK
キッチンを中心にぐるっと回遊できる家事動線、おしゃれと実用性を兼ねた衣類収納のある家
-
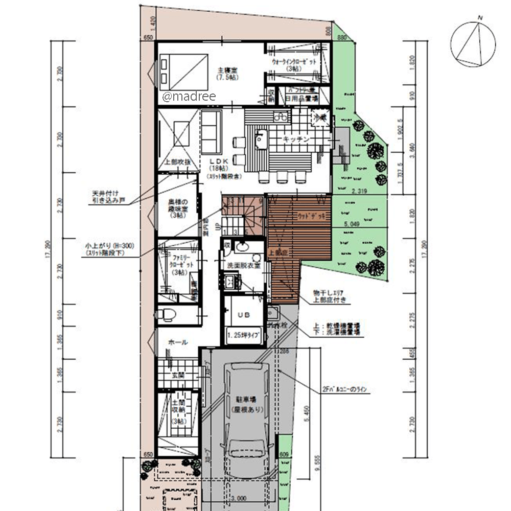
- 39坪
- 2LDK
オープンな吹抜で家族との会話も弾む、キッチンを中心に生活が繋がる家
-
- 42坪
- 2LDK
おこもりスペースで読書に浸かる贅沢時間、気持ちを切替え心満たす工夫ある家
-
- 38坪
- 2LDK
実用的なワクワクする空間、中二階に家族共有のデスクスペースがある家
-
- 39坪
- 2LDK
キッチンからぐるっと目配りでき、家族みんながわかりやすい収納工夫のある家
-
- 40坪
- 3LDK
中二階に本に囲まれる空間を、家族が自由に使える読書コーナーのある家
-
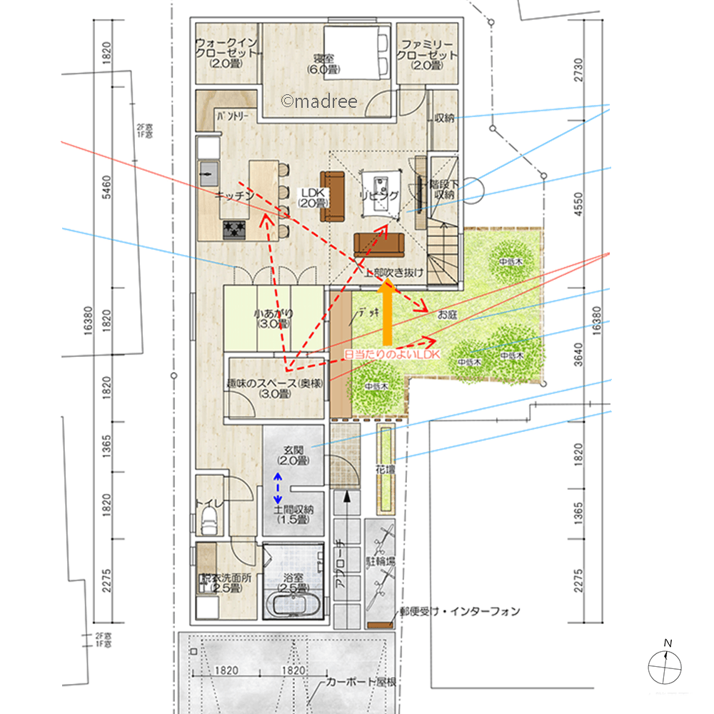
- 39坪
- 3LDK
LDKと書斎をフレキシブルに空間分け、家族を見守りながら在宅ワークできる家
-
- 39坪
- 3LDK
吹抜を通じて各フロアを繋ぐ、どこにいても家族の気配を感じられる家
-
- 39坪
- 3LDK
中庭と縁側で光と風が通い合う、家族の気配感じる回遊動線の家
-
- 50坪以上
- 2LDK
3階は家族のプライベート空間、屋上バルコニーで週末にBBQを楽しむ家
-
- 47坪
- 2LDK
大きく屋根の掛かる陽だまりテラスが、LDKと繋がるプライベートリビングになる家
-
- 36坪
- 3LDK
来客が入り込まない安心の家族スペース、廊下で空間をしっかり分けた事務所併設の家
-
- 31坪
- 3LDK
コンパクト家事で休日のんびり過ごす、アウトドアリビングで余暇楽しむ家
-
- 39坪
- 3LDK
リビング全体が吹抜の開放感、階段を中心に家事と生活がぐるりと繋がる家
-
- 36坪
- 3LDK
玄関に続く発想自由な収納スペース、たくさんのアウトドア用品も土間でスッキリ整う二世帯住宅
-
- 42坪
- 3LDK
趣味時間を活き活き過ごす、外とつながる明るく開放的な旗竿地の家
-
- 38坪
- 3LDK
太陽の光と空気をたっぷり浴びる、緑に囲まれたアウトドア派の二世帯住宅
-
- 42坪
- 3LDK
子育ても趣味もゆったり楽しむ、各々にパーソナルスペースがある縦長地の家
-
- 32坪
- 3LDK
外の空気を吸ってリフレッシュ、介助動線を確保した二世帯住宅
-
- 43坪
- 5LDK
中庭でプライバシーと開放感を両立、充実した帰宅動線で家事ラクな家
-
- 34坪
- 3LDK
広い土間収納はまるで趣味部屋、独立デッキでアウトドア充実の二世帯住宅
-
- 42坪
- 5LDK
駐車場上のアウトドアリビング、安心バルコニーで外時間楽しむ家
-
- 36坪
- 4LDK
アウトドア後も楽々荷下ろし、屋外スロープから土間収納へ繋がる二世帯住宅
-
- 47坪
- 5LDK
コの字キッチンから家族見守る、生活空間を集めたほぼ平屋の家
マドリー開発の『住宅営業支援ツール』
madreeデータバンク
マドリーの人気間取り4,800プランを接客・提案に活用できる営業支援ツール
- 競合他社と差がつく、スピード提案
- トレンド間取りで、集客・受注数UP
- 建築家のアイデアを参考に、質の高い提案ができる
