土地48坪の間取り一覧
家族や自分の”好き”を叶える注文住宅の間取りが見つかる!暮らしの要望をもとに全国の建築家が作成した土地48坪の間取りを15件公開しています。毎日更新中!
-
- 36坪
- 4LDK
開放的なサロン部屋をフレキシブルに活用、吹抜空間がランドリーにもなる家
-
- 35坪
- 4LDK
一直線の洗濯動線で時短家事、子どもファーストな目線の届く家
-
- 36坪
- 3LDK
来客に生活感を見せない工夫、家族も安心して過ごせるサロン部屋のある家
-
- 42坪
- 3LDK
半個室のワークスペースで家事と仕事にメリハリを、車通りを気にせず過ごせる2階LDKの家
-
- 44坪
- 4LDK
2階リビングで光と開放感を追求、オンオフ切り替えやすい在宅ワーカーの家
-
- 42坪
- 3LDK
2階LDKと一体の少し篭れる出勤スペース、中庭の窓越しに家族を感じる仕事場のある家
-
- 44坪
- 3LDK
在宅ワーク中でもチラッと家族を確認、2階リビングに併設したワークスペースのある家
-
- 35坪
- 3LDK
それぞれの寝室に柔らかな朝日が届く、高窓からの自然光で心地よく目覚める家
-
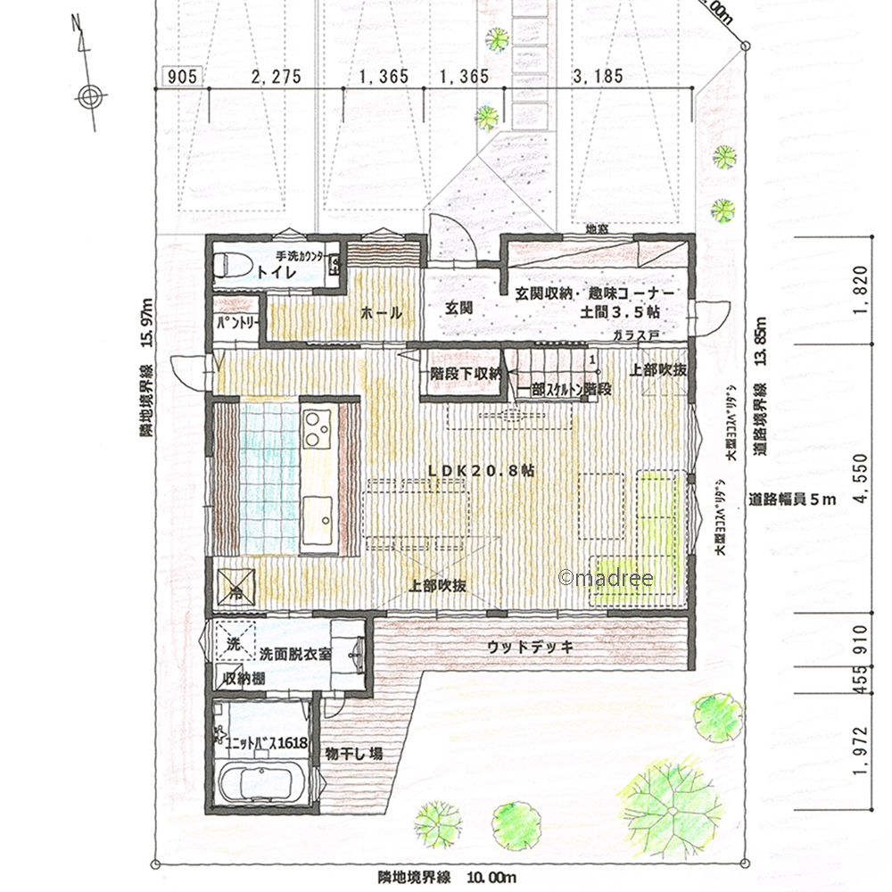
- 48坪
- 4LDK
視界広がる中庭と吹抜で家族つながる、にぎやかな声が響く遊びのある家
-
- 32坪
- 3LDK
光と風が気持ち良く流れる、好きな陽だまりスポットで家時間を過ごす家
-
- 40坪
- 4LDK
木に囲まれたプライベート庭で団欒、2階にまとめた夜家事動線の家
-
- 35坪
- 3LDK
土間の趣味ディスプレイを臨む、家族がぐっと近づく温もりリビングの家
-
- 48坪
- 4LDK
成長に合わせて部屋数も変化、家族それぞれにプライベート空間のある家
-
- 35坪
- 3LDK
陽だまりリビングに自然と集まる、土間での趣味時間も家族感じる家
-
- 49坪
- 4LDK
ウォークスルーで家事効率UP、パントリー経由する時短動線の家
マドリー開発の『住宅営業支援ツール』
madreeデータバンク
マドリーの人気間取り4,800プランを接客・提案に活用できる営業支援ツール
- 競合他社と差がつく、スピード提案
- トレンド間取りで、集客・受注数UP
- 建築家のアイデアを参考に、質の高い提案ができる
