[34坪 3LDK] 中庭の緑楽しむ憩いの廊下、玄関中心に空間を分けた暮らしやすい平屋の間取り
全国の建築家から間取りが集まるmadree(マドリー)で集まった34坪、3LDKの間取りです。浴室1坪や外とつながるLDKが特徴の注文住宅の間取りです。
中庭の緑楽しむ憩いの廊下、玄関中心に空間を分けた暮らしやすい平屋はこのような方におすすめです
・夫:30代会社員、妻:30代専業主婦、息子1人
・趣味:車、ゴルフ、自然
・広い脱衣場をランドリー室兼用にして、室内干しできるようにしたい。
・道路から見えない玄関に土間収納を設け、ゴルフバックやテントなどを収納したい。
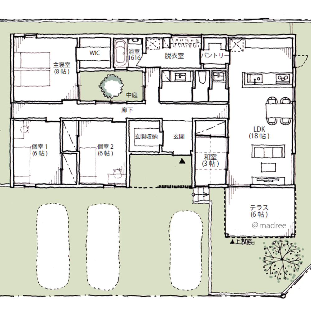
中庭の緑楽しむ憩いの廊下、玄関中心に空間を分けた暮らしやすい平屋の間取りアイデア
全国対応になりました
建築家・デザイナー
からのコメント
【全体のコンセプト】
・回遊動線と中庭のある、広々とした家
【各部屋のポイント】
・LDKは天井の高い一室の空間とし、南側に庇付きのテラスを配置しました。
・和室はリビングと繋がり、来客時に対応できるようにしました。
・トイレはリビングと廊下の双方からアクセスできるようにしました。
・脱衣室はパントリーを介してキッチンと繋がり、ランドリースペースとしても使える広さを確保しました。
・キッチンに勝手口を設ける事で、家事がスムーズに行えるようにしました。
・中庭に面した明るい廊下から、各個室へ繋がります。南向きの明るい部屋となっています。
・主寝室は北向き開口ですが、中庭と面する事で、プライバシー守る明るい空間となりました。
34坪 3LDK関連の間取り
マドリー開発の『住宅営業支援ツール』
madreeデータバンク
マドリーの人気間取り4,800プランを接客・提案に活用できる営業支援ツール
- 競合他社と差がつく、スピード提案
- トレンド間取りで、集客・受注数UP
- 建築家のアイデアを参考に、質の高い提案ができる









