d-masの間取り一覧
家族や自分の”好き”を叶える注文住宅の間取りが見つかる!暮らしの要望をもとに全国の建築家が作成したd-masの間取りを10件公開しています。毎日更新中!
-
- 36坪~39坪
- 3LDK
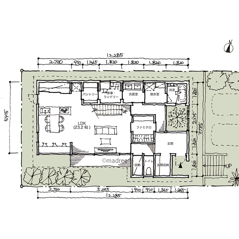
カフェライクなキッチンで来客対応も楽しめる!自宅サロンや屋上も完備で仕事も暮らしも充実する家
-
- 42坪~45坪
- 4LDK
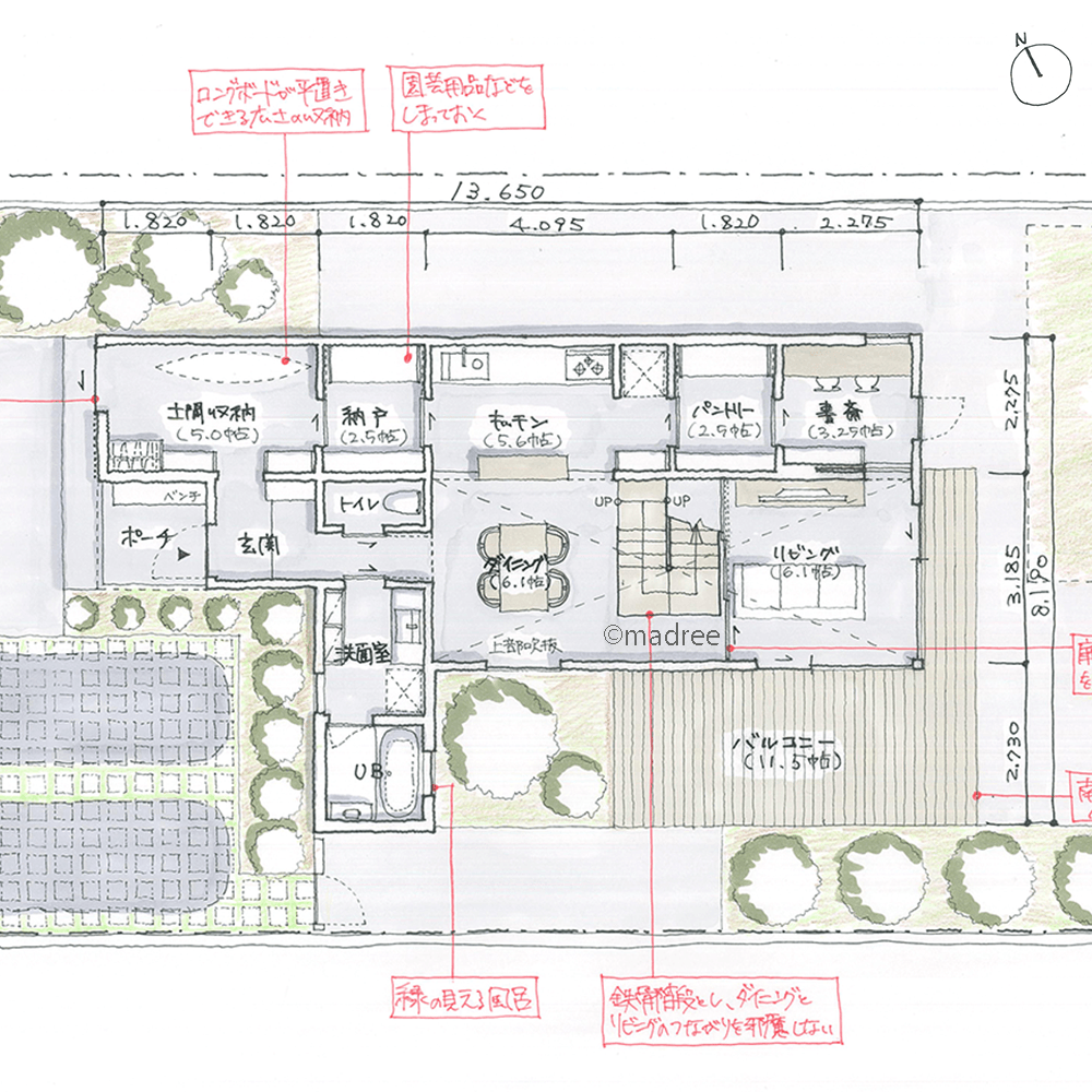
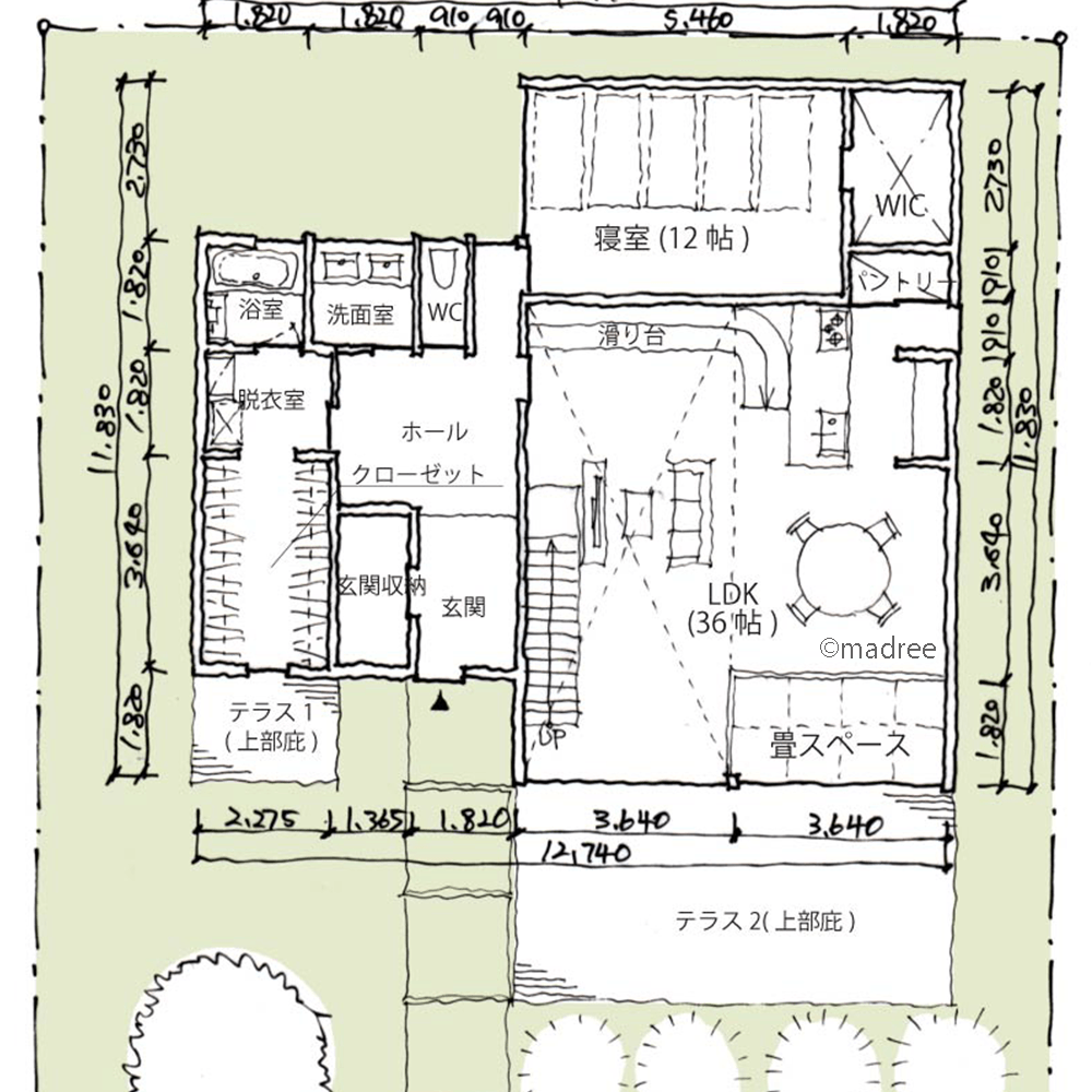
2つのリビングで家族時間の幅が広がる2階中心で暮らす明るく開放感のある間取り
-
- 50坪
- 2LDK
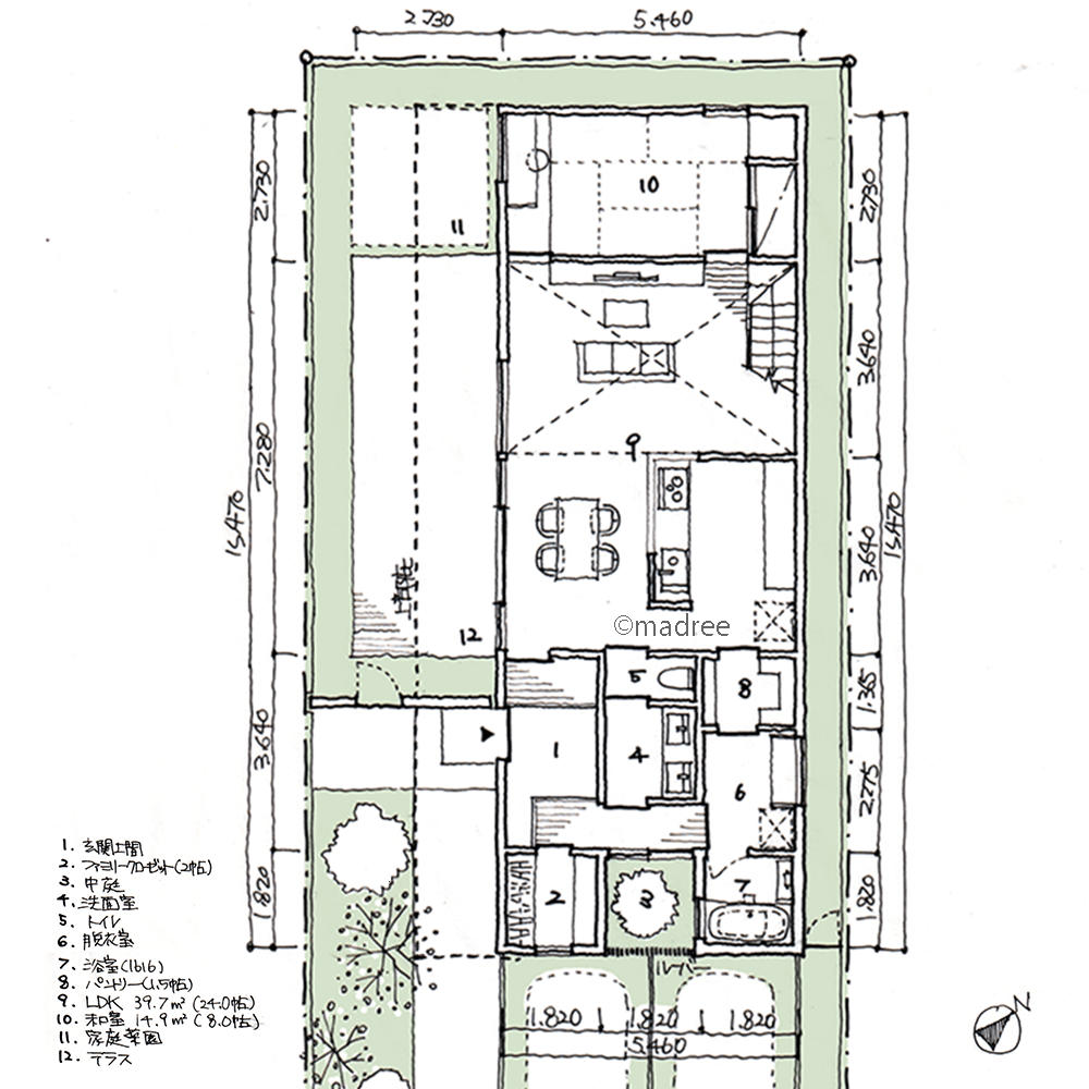
さくっと片付く家事動線と収納で、テラス越しに外界を取り込むのびやかな家
-
- 40坪
- 5LDK
緑と光と風を存分に取り込む、季節の移ろいを感じる趣ある家
-
- 22坪
- 2LDK
コンパクトさを感じない広がる眺望、吹抜とデッキへ空間の繋がる明るい南向きLDKの家
-
- 36坪
- 3LDK
大きな吹抜と大窓で縦横に空間広がる、光と風が心地良い在宅ワーカーの家
-
- 32坪
- 3LDK
ギャラリーを兼ねた広い土間で魅せる、2階に集約した生活空間で開放的に過ごせる家
-
- 33坪
- 4LDK
一直線のゆとり生まれる家事動線、カーテンを締めなくても囲い壁で快適に過ごせる家
-
- 30坪
- 3LDK
土間から庭まで一直線、広々土間収納から趣味も家事も楽に繋がる家
-
- 34坪
- 3LDK
中庭の緑楽しむ憩いの廊下、玄関中心に空間を分けた暮らしやすい平屋
マドリー開発の『住宅営業支援ツール』
madreeデータバンク
マドリーの人気間取り4,800プランを接客・提案に活用できる営業支援ツール
- 競合他社と差がつく、スピード提案
- トレンド間取りで、集客・受注数UP
- 建築家のアイデアを参考に、質の高い提案ができる
