[34坪 2LDK] 景観活かした広々バルコニーで、プライベートアウトドア充実の家の間取り
全国の建築家から間取りが集まるmadree(マドリー)で集まった34坪、2LDKの間取りです。外とつながるLDKやアウトドアリビングが特徴の注文住宅の間取りです。
景観活かした広々バルコニーで、プライベートアウトドア充実の家はこのような方におすすめです
・アラサー共働き夫婦、娘1歳 / もうすぐ第二子誕生
・趣味:アウトドア、読書、プロジェクターで映画鑑賞
・テラスで遊びたいので、隣家からの視線を遮りたい。
・北側の景色が良いので、ゆっくり眺められるバルコニーを設けたい。
全国対応になりました
| 広さ | |
|---|---|
| 土地特徴 | |
| 階数 | |
| 部屋数 | |
| 家族人数 | |
| 特徴 | |
| 担当建築家・デザイナー |
建築家・デザイナー
からのコメント
【全体のコンセプト】
北側の調整池の景観を取り入れ、来客とのアウトドアを楽しむスペースをつくり、バルコニーやテラス等、屋外スペースの敷地外からの視線を緩やかに遮るように考えながらプランニングしました。
【各階こだわりのポイント】
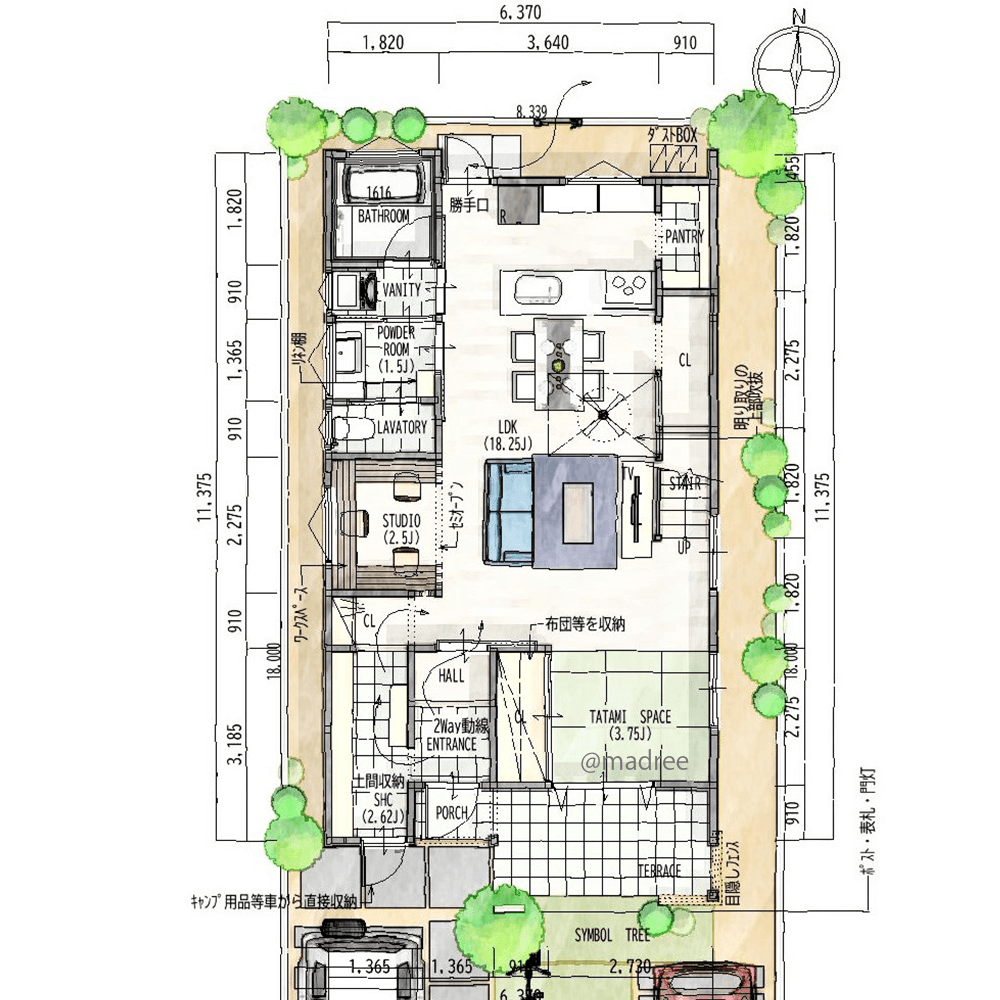
■1階
・エントランスは2way動線とし、キャンプ用品等を収納できる土間のシューズクロークを設けました。土間は外部ドアを開けて、車から直接出入り可能です。土間からクローゼットを介して、又は直接LDKに出入り可能になります。
・LDKは一体的空間で広がり、キッチンよりダイニング、リビング、畳コーナー、更には屋外まで見渡せます。
・キッチンの背面には冷蔵庫スペース、カップボードスペース、勝手口を配置しました。勝手口には屋根をかけ、ゴミの一時置き場としたり、道路へアクセス出来るようにしました。
・キッチンの横にはパントリー、反対側にはバスルーム、脱衣室、洗面室、トイレを繋げ、家事動線をスムーズにしました。洗面室にはタオル等のリネン棚も設けました。
・南北に長いリビング・ダイニングは、上部に吹抜を設けました。この吹抜とリビング階段で、部屋が個性的でスタイリッシュになると思います。
・リビングの西側にはセミオープンのスタディスペースを配置し、南側には布団等を収納する押入を備えた畳コーナーを繋げました。
・畳コーナーから続く外部テラスは、プール遊びなどを考えて、ウッドデッキではなく、タイル仕上げとしました。こちらのテラスは、フォールディングドアを開け放して、外部空間と内部空間を一体的に利用できます。一部に壁と目隠しフェンスを設置し視線を遮りました。
■2階
・階段を上がると、北側に調整池と広いバルコニーが目に入ります。吹抜の隣にはファミリークローゼット、南側にはWICを備えたマスターベッドルーム、西側には将来間仕切可能な子ども部屋を配置しました。
・手洗いブースはバルコニーから直接出入り可能とし、バルコニーでの水の使用が楽になるよう配慮しました。
・南側には奥行きあるバルコニーを配置し、ホールとマスターベッドルームから出入り可能になっております。また、一部屋根をかけ、多少の雨でも洗濯物を干せ、隣家の視線を遮るよう配慮しています。
34坪 2LDK関連の間取り
マドリー開発の『住宅営業支援ツール』
madreeデータバンク
マドリーの人気間取り4,800プランを接客・提案に活用できる営業支援ツール
- 競合他社と差がつく、スピード提案
- トレンド間取りで、集客・受注数UP
- 建築家のアイデアを参考に、質の高い提案ができる









