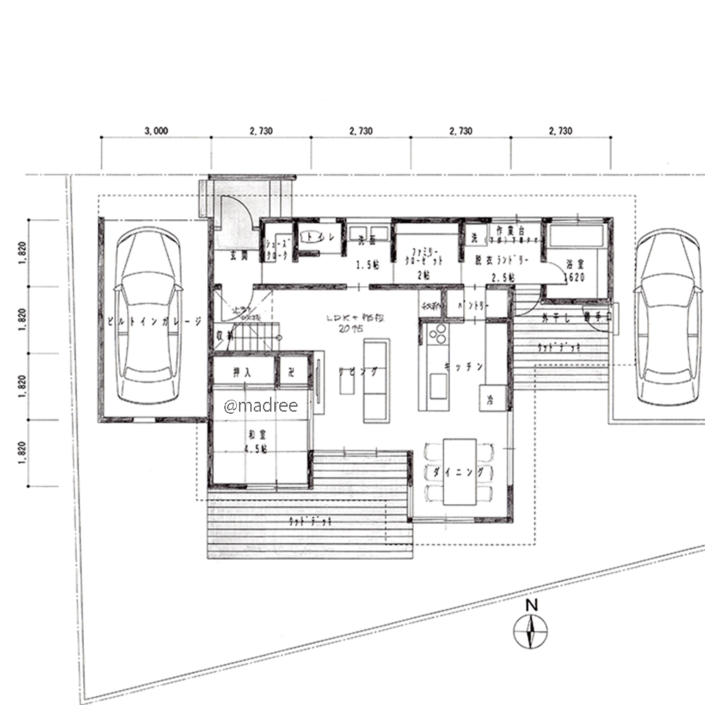
[39坪 4LDK] 外遊び後もすぐサッパリ!玄関からスムーズに浴室直行の家の間取り
全国の建築家から間取りが集まるmadree(マドリー)で集まった39坪、4LDKの間取りです。外とつながるLDKやアウトドアリビングが特徴の注文住宅の間取りです。
外遊び後もすぐサッパリ!玄関からスムーズに浴室直行の家はこのような方におすすめです
・共働き夫婦、子ども2人(長女5歳、長男2歳)
・趣味:外遊び、家でゆっくり過ごす
・それぞれが部屋に篭らず、リビングに自然と集まってくるようにしたい。
・スキップフロアでLDKの空間がリズムを持つようにしたい。
全国対応になりました
建築家・デザイナー
からのコメント
【全体のコンセプト】
・家族が快適に過ごせる家。
■1階
・玄関からSICを通る裏動線を計画しました。
・キッチン横に、庭へ突き出すようにダイニングを配置しました。
・和室とダイニングの間のデッキは屋根付きで、中庭のように利用できます。
・脱衣室に、作業台と天吊り金物を備えました。勝手口から屋根付きウッドデッキへ出て外干しできます。
■中2階
・スキップフロアにサブリビングを配置しました。キッチンからも様子が確認できます。
・サブリビングの北側と南側にベランダを設けました。
■2階
・子ども室2部屋、主寝室、階段正面にホールとトイレを配置しました。
39坪 4LDK関連の間取り
マドリー開発の『住宅営業支援ツール』
madreeデータバンク
マドリーの人気間取り4,800プランを接客・提案に活用できる営業支援ツール
- 競合他社と差がつく、スピード提案
- トレンド間取りで、集客・受注数UP
- 建築家のアイデアを参考に、質の高い提案ができる









