kensanの間取り一覧
家族や自分の”好き”を叶える注文住宅の間取りが見つかる!暮らしの要望をもとに全国の建築家が作成したkensanの間取りを25件公開しています。毎日更新中!
-
- 33坪~36坪
- 1LDK
仕事もリラックスタイムも家事も暮らしにフィットしたフロア分けで快適な3階建ての家
-
- 30坪~33坪
- 4LDK
趣味も家族それぞれの暮らしも充実するシンプルで明るい家
-
- 42坪~45坪
- 6LDK
2つのデッキで暮らしに広がりを!日々の暮らしを充実させてくれる家
-
- 33坪~36坪
- 3LDK
片付け捗る帰宅動線と効率的な家事ラク動線で暮らしが整う家
-
- 30坪~33坪
- 4LDK
明るく開放的なLDKとシンプルな家事動線で心地良い暮らしが叶う、2階が生活中心の家
-
- 41坪
- 6LDK
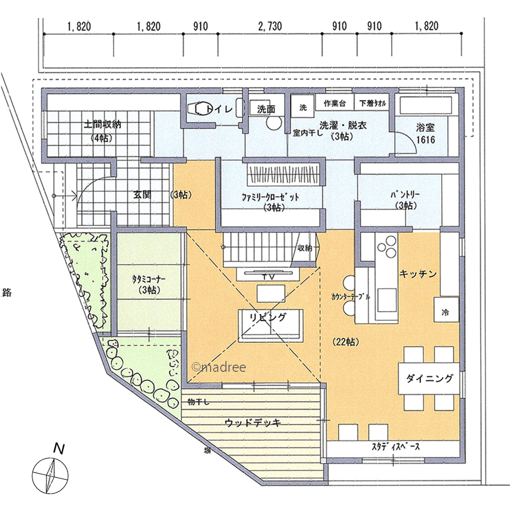
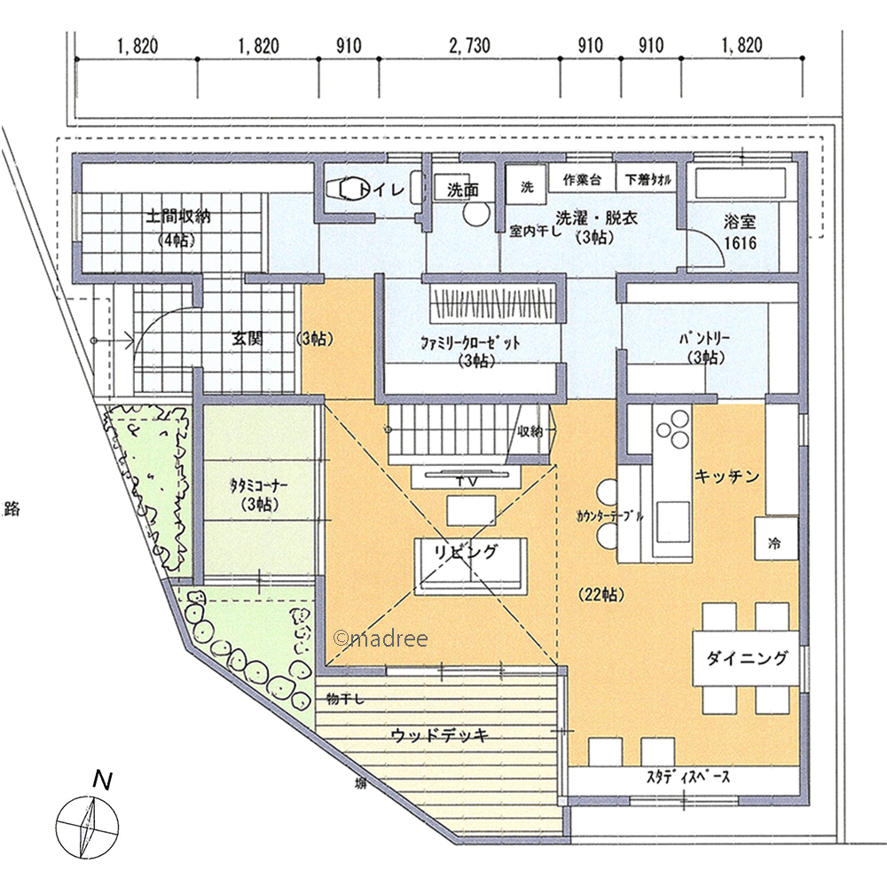
キッチンからサッと行ける水回り動線、乾燥機使用で洗濯仕事が1箇所で完結する家
-
- 4LDK
無駄を省いてストレス軽減、家族の生活リズムに合わせた繋がる動線のある家
-
- 39坪
- 3LDK
たっぷり収納で生活感ないリビングをキープ、緑や風を感じる外とつながる家
-
- 30坪
- 3LDK
ワンルーム空間の2階LDKで動線スムーズ、狭小な台形地を活かして暮らす家
-
- 38坪
- 4LDK
ウォークスルー収納で家事が楽になる、キッチンから水廻りが一直線で繋がる家
-
- 39坪
- 3LDK
広々デッキと中庭に視線が抜ける、心地良い自然光で過ごす採光工夫の家
-
- 27坪〜30坪
- 3LDK
奥まで明るい真っ直ぐな生活動線、トップライトから光が届く3階建ての家
-
- 33坪
- 3LDK
直線的な裏動線で生活が楽になる、玄関から庭まで見通せる風通しの良い家
-
- 35坪
- 3LDK
スケルトン階段でLDKをゆるく空間分け、家族が好きを楽しむブルックリンスタイルの家
-
- 40坪
- 3LDK
中二階に本に囲まれる空間を、家族が自由に使える読書コーナーのある家
-
- 36坪
- 5LDK
陽当たり最高な角部屋を洗濯室に、部屋干し派に嬉しい水廻り動線の家
-
- 42坪
- 4LDK
ストックが一目瞭然で買い出しラクラク、いつもスッキリキープできる収納上手の家
-
- 59坪
- 5LDK
吹抜やトップライトで採光確保、階段でLDKをゆるく空間分けした家
-
- 43坪
- 4LDK
勝手口からの日常用出入り口で、家族の生活動線が楽に繋がる家
-
- 35坪
- 4LDK
裏動線から水廻りへ直行!回遊しながらコンパクトに家事が整う家
-
- 48坪
- 5LDK
デッドスペースなしで片付け上手に、裏動線共用の二世帯住宅
-
- 47坪
- 5LDK
プライベート充実の家時間、パーソナルスペースで趣味を楽しむ家
-
- 39坪
- 4LDK
外遊び後もすぐサッパリ!玄関からスムーズに浴室直行の家
-
- 39坪
- 4LDK
家事動線がよく、プライバシーを確保できる平屋
マドリー開発の『住宅営業支援ツール』
madreeデータバンク
マドリーの人気間取り4,800プランを接客・提案に活用できる営業支援ツール
- 競合他社と差がつく、スピード提案
- トレンド間取りで、集客・受注数UP
- 建築家のアイデアを参考に、質の高い提案ができる
