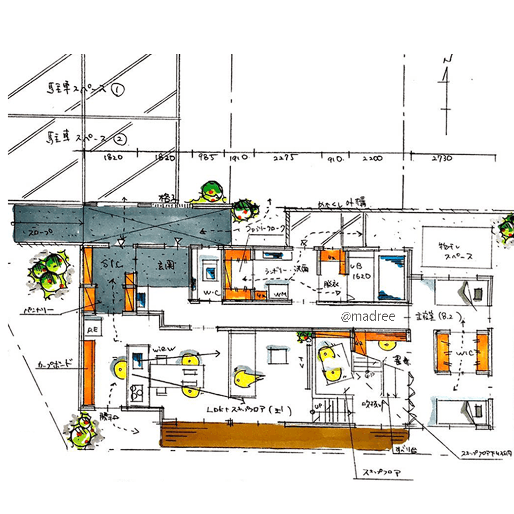
[33坪 2LDK] 靴のまま荷下ろしで効率的、家族用玄関から土間パントリー直結の家の間取り
全国の建築家から間取りが集まるmadree(マドリー)で集まった33坪、2LDKの間取りです。外とつながるLDKやアウトドアリビングが特徴の注文住宅の間取りです。
靴のまま荷下ろしで効率的、家族用玄関から土間パントリー直結の家はこのような方におすすめです
・共働き夫婦、子ども1人
・趣味:アウトドア、キャンプ、登山
・帰宅後に荷物が散乱しないように、駐車場から土間収納へ出入りしたい。
・家の至る所に、子どもが楽しく遊べる仕掛けを造りたい。
全国対応になりました
建築家・デザイナー
からのコメント
【こだわりのポイント】
■全体計画
・南側が開けているので、南側にLDKと居室スペースを配置しました。
・駐車がしやすいように、変形地を駐車場に利用しました。
・近隣との距離を考慮し、駐車場裏をBBQスペースとしました。
■玄関/SIC/パントリー
・玄関上部の下屋を伸ばし、雨が当たらないようにしました。
・玄関前を格子とする事で、光を取り入れながら視線を遮ります。
・駐車場からSICへのアクセスを最短に計画しました。バリアフリーを考慮し、西側にスロープを設けています。
・玄関→SIC→パントリー→キッチンの、買い物帰りに魅力的な動線を計画しました。
■水廻り
・北側にまとめて一直線で配置しました。洗濯、干す、収納までを最短に行えます。
・北東側に物干しスペースを設けました。ランドリーの勝手口からアクセス可能です。
■LDK/スキップフロア
・キッチンから全体を見渡せるようにしました。
・リビングとスキップフロアを繋げる事で、ソファでくつろぎながらコミュニケーションを取れます。
■1階寝室
・WICを1室の間に設け、夫婦がプライバシーを保てるよう配慮しました。
・スキップフロア下を書斎として有効利用しました。
■2階洋室
・将来的に3部屋に仕切れるようにしました。
・全室南向きとする事で、日当たり良く過ごせます。
33坪 2LDK関連の間取り
マドリー開発の『住宅営業支援ツール』
madreeデータバンク
マドリーの人気間取り4,800プランを接客・提案に活用できる営業支援ツール
- 競合他社と差がつく、スピード提案
- トレンド間取りで、集客・受注数UP
- 建築家のアイデアを参考に、質の高い提案ができる









