土地74坪の間取り一覧
家族や自分の”好き”を叶える注文住宅の間取りが見つかる!暮らしの要望をもとに全国の建築家が作成した土地74坪の間取りを23件公開しています。毎日更新中!
-
- 39坪
- 3LDK
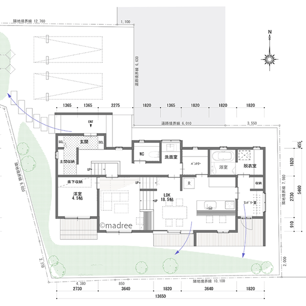
玄関近くにファミクロ、回遊動線で家事がはかどる将来は二世帯住宅
-
- 36坪~39坪
- 4LDK
のびのび走れるドッグランとワンちゃん動線、家事動線もラクラクな将来は二世帯住宅
-
- 39坪
- 3LDK
広〜いデッキでワイワイBBQ、水回り回遊動線の将来は二世帯住宅
-
- 39坪
- 3LDK
広いデッキが家族を繋ぐ、犬も人も心地よく暮らせる将来は二世帯住宅
-
- 3LDK
和室と畳コーナーの両方を備えた、将来は二世帯住宅
-
- 42坪
- 4LDK
用途を固定しないフレキシブルな部屋対応、平屋のようにも生活できる家
-
- 40坪
- 4LDK
引き戸と回遊性で快適なバリアフリー空間、将来は平屋のように過ごせる家
-
- 43坪
- 4LDK
シンプル動線で家事シェアしやすい、趣味楽しむセカンドライフの家
-
- 37坪
- 3LDK
回遊性のある縁側デッキで繋がる一体感、シンプル動線で家事が楽になる家
-
- 41坪
- 4LDK
心身切り替えスイッチは2つの庭で、充実したセカンドライフを送る終の棲家
-
- 41坪
- 5LDK
回遊動線で毎日の家事をより効率的に、趣味の時間を有意義に過ごせる家
-
- 42坪
- 4LDK
シンプル動線で家事シェアしやすい、セカンドライフを悠々自適に過ごす家
-
- 38坪
- 4LDK
見せる収納と隠す収納を上手に使い分け、居心地を求めた落ち着くモダンな家
-
- 40坪
- 3LDK
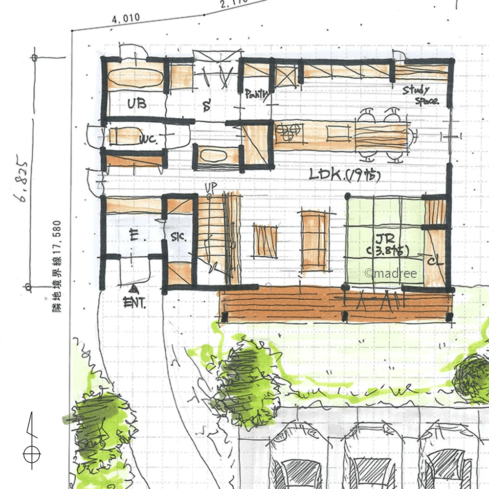
中2階は家族の共有ワークスペース、スキップフロアから光と開放感を取り込む家
-
- 25坪
- 2LDK
リフォームを視野に広さを確保、水廻りを集約したコンパクト家事動線の平屋
-
- 36坪
- 4LDK
スキップフロアの空間を楽しむ、自然の中で伸びやかに過ごすアウトドア派の家
-
- 27坪
- 3LDK
お互いのスタイルを大切にした夫婦2人の暮らし、バリアフリーを意識した廊下のない平屋
-
- 27坪〜30坪
- 3LDK
建物中央のプライベート空間、採光デッキに添うコの字回廊のある平屋
-
- 40坪
- 3LDK
ボーダーレスのワイドデッキで愛犬とのびのび過ごす、内外つながる回遊動線の家
-
- 33坪
- 2LDK
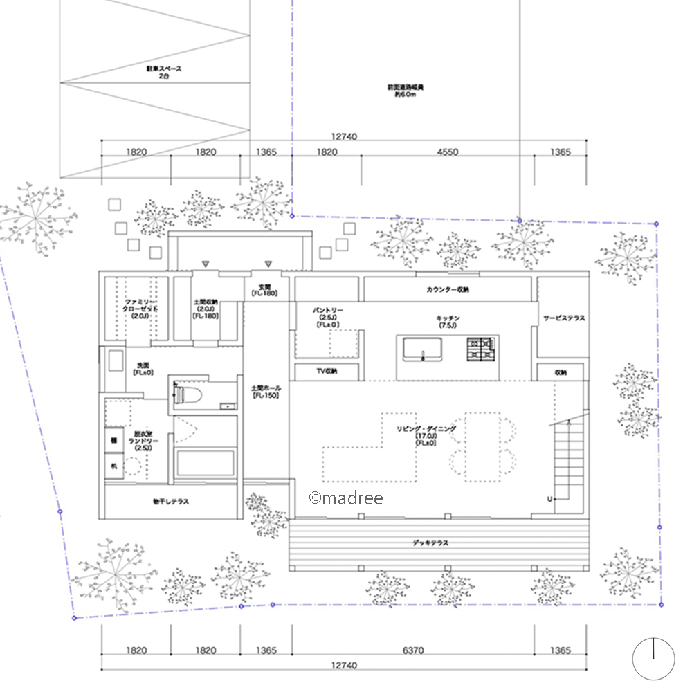
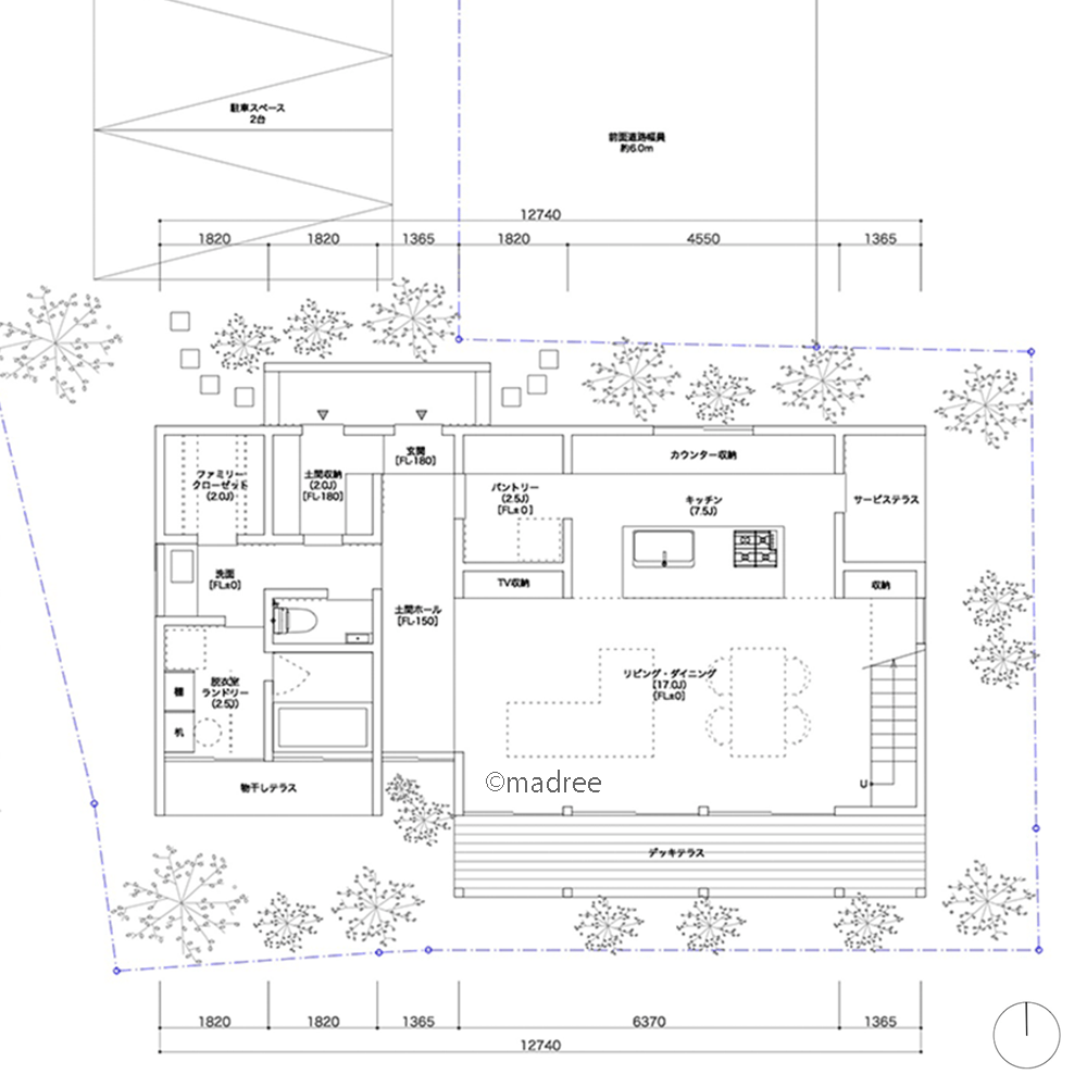
靴のまま荷下ろしで効率的、家族用玄関から土間パントリー直結の家
-
- 27坪〜30坪
- 3LDK
中庭デッキからの穏やかな採光、コの字で繋がる家事動線の良い平屋
-
- 27坪〜30坪
- 3LDK
デッキをコの字で囲んで採光たっぷり確保、夫婦2人にちょうど良いZ型リビングの平屋
-
- 40坪
- 6LDK
リビングに3世代が集う、採光工夫した旗竿地に建つ二世帯住宅
マドリー開発の『住宅営業支援ツール』
madreeデータバンク
マドリーの人気間取り4,800プランを接客・提案に活用できる営業支援ツール
- 競合他社と差がつく、スピード提案
- トレンド間取りで、集客・受注数UP
- 建築家のアイデアを参考に、質の高い提案ができる
