[34坪 2LDK] 無駄なくサッと家事をこなす、キッチンと水廻りが回遊動線で繋がる家の間取り
全国の建築家から間取りが集まるmadree(マドリー)で集まった34坪、2LDKの間取りです。外とつながるLDKやアウトドアリビングが特徴の注文住宅の間取りです。
無駄なくサッと家事をこなす、キッチンと水廻りが回遊動線で繋がる家はこのような方におすすめです
・30代自営業夫婦、子ども2人(長女5歳、長男1歳)、犬1匹(ポメラニアン)
・趣味:車
・ウッドデッキのある庭で、 晴れの日は洗濯物を干したい。
・帰宅後すぐ着替えられるように、玄関近くにファミリークローゼットを設けたい。
全国対応になりました
建築家・デザイナー
からのコメント
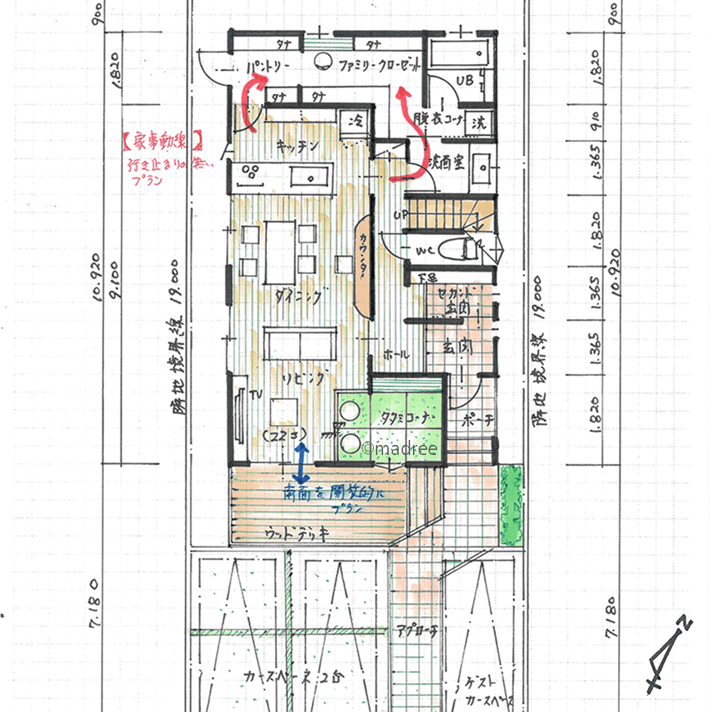
【全体のコンセプト】
・LDKが広く、家事動線の良い家。
【こだわりのポイント】
■1階
・リビングを南側に配置し、ウッドデッキとリビングに一体感を持たせました。
・小上がりの畳コーナーは、ベンチのように腰かけて利用できます。来客時には布団を敷ける広さです。
・LDK中央のカウンターは、仕事・宿題・読書などに重宝するスペースとなっています。
・玄関は来客用と家族用に仕切りを設けました。
・玄関土間にベビーカーやスポーツ用品などを収納できます。
・家事動線を特に意識し、キッチンから収納や水廻りへ行き来できる動線を設けました。
■2階
・プライベートゾーンは廊下から動線を繋げ、パブリックスペースと空間を分けて計画しました。
・子ども室2部屋は建具で仕切り、小さい時期はオープンに利用できるようにしました。
34坪 2LDK関連の間取り
マドリー開発の『住宅営業支援ツール』
madreeデータバンク
マドリーの人気間取り4,800プランを接客・提案に活用できる営業支援ツール
- 競合他社と差がつく、スピード提案
- トレンド間取りで、集客・受注数UP
- 建築家のアイデアを参考に、質の高い提案ができる









