[38坪 3LDK] 寝室から繋がる水廻りでサクサク朝支度、光と風が心地良い2階リビングの家の間取り
全国の建築家から間取りが集まるmadree(マドリー)で集まった38坪、3LDKの間取りです。外とつながるLDKやアウトドアリビングが特徴の注文住宅の間取りです。
寝室から繋がる水廻りでサクサク朝支度、光と風が心地良い2階リビングの家はこのような方におすすめです
・40代夫婦、娘2歳/将来的に妻の両親と同居予定
・趣味:TVゲーム、映画鑑賞
・民泊をやりたいので、個室近くに水廻りを設けたい。
・キッチンの生活感を隠したいが、調理中も家族と会話を楽しみたい。
全国対応になりました
| 階数 | |
|---|---|
| 土地特徴 | |
| 広さ | |
| 部屋数 | |
| 家族人数 | |
| 特徴 | |
| 担当建築家・デザイナー |
建築家・デザイナー
からのコメント
【全体のコンセプト】
「家族が集まる明るい2階リビングの家」
・まとまりのある外観と日常生活において使いやすい動線を考えたプランになっています。
・各居室が明るく風通しのよい空間になっています。納戸や各所に細かく収納を設けているので、片付けがしやすい工夫がされています。
【各所のポイント】
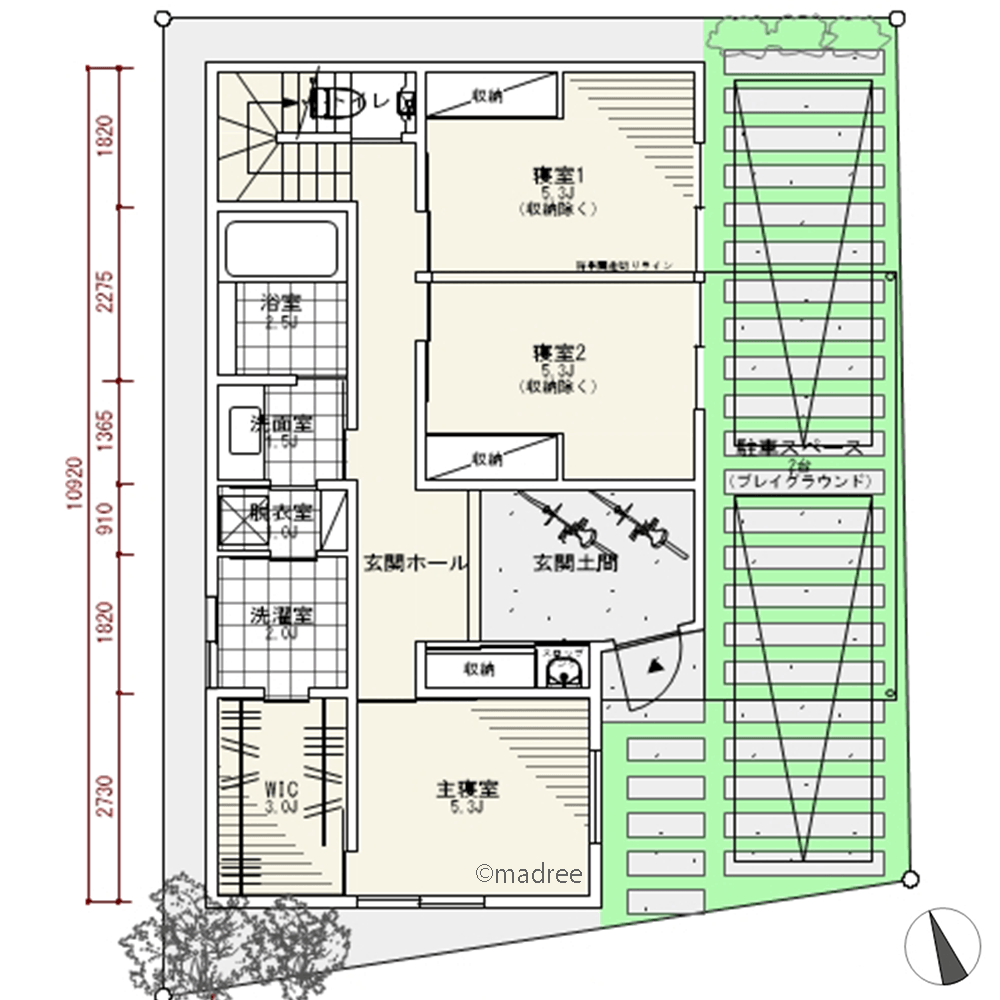
・玄関:土間部分は自転車やベビーカー等がゆとりをもって置けるような広さとしています。壁面収納には靴や傘、屋外用品の他、スロップシンクを設置し、来客時には扉を閉めると隠せるようになっています。
・水廻りと収納:浴室、洗面室、脱衣室、洗濯室、主寝室用WICを一直線で配置することで、無駄のない動線計画としました。
・子ども室:当初は一部屋として使い、将来2部屋にしても成り立つように扉と収納をそれぞれ設置しています。南東のプレイグラウンドに面して窓を設け、外とつながりのある明るい部屋となります。
・LDK全体:一つの空間で広く使えるように配置しています。バルコニーともつなげ、畳数以上の広がりを感じ取れる空間を目指しました。
・キッチン:対面キッチンとし、カウンターを設けました。家族で料理をしたり、リビングにいる家族と話をしたり、テレビをみたりしながら過ごせるよう、キッチンを中心に配置しました。またパントリー内に冷蔵庫を収納し、生活感を隠しました。
・畳コーナー:リビングよりも一段高い位置に床を設定することで、キッチンとのつながりを持たせる事ができ、楽しい空間となっています。
・バルコニー:東南に配置し、リビングダイニングからアクセスしやすい。明るく気持ちのいい場所となっています。
38坪 3LDK関連の間取り
マドリー開発の『住宅営業支援ツール』
madreeデータバンク
マドリーの人気間取り4,800プランを接客・提案に活用できる営業支援ツール
- 競合他社と差がつく、スピード提案
- トレンド間取りで、集客・受注数UP
- 建築家のアイデアを参考に、質の高い提案ができる









