土地35坪の間取り一覧
家族や自分の”好き”を叶える注文住宅の間取りが見つかる!暮らしの要望をもとに全国の建築家が作成した土地35坪の間取りを31件公開しています。毎日更新中!
-
- 39坪~42坪
- 3LDK
インナーテラスで光を取り込み家族のつながりを作る三角地の間取り
-
- 39坪~42坪
- 3LDK
三角地でも狭さを感じない家族の暮らしに寄り添う間取り
-
- 39坪~42坪
- 3LDK
三角地を活かす効率良い配置で家族みんなの暮らしにフィットする家
-
- 36坪
- 3LDK
ゆるやかに内外空間つながる、アウトドアもインドアも家族で休日楽しむ家
-
- 34坪
- 2LDK
コンパクト動線で生活が楽になる、総二階を無駄なく活かした縦長地に建つ家
-
- 36坪
- 2LDK
アウトドアもインドアも家族で休日楽しむ、多趣味でも整う収納上手な家
-
- 33坪
- 2LDK
2階LDKに自然と家族が集まる、団欒時間を心地よく過ごせる3階建ての家
-
- 33坪
- 2LDK
子どもの成長に合わせて部屋数も変更、ホールと個室で広々ワンルームになる家
-
- 33坪
- 2LDK
子どもが自立する帰宅動線と、自然光が心地良い陽だまりリビングの家
-
- 34坪
- 2LDK
爽やかな朝日がキッチンに差し込む、プライベートが守られた2階LDKの家
-
- 34坪
- 2LDK
家族見守りながらテキパキ家事、朝の身支度スムーズな回遊動線の家
-
- 24坪
- 3LDK
廊下の少ないコンパクトな生活動線、バルコニーと繋がる明るい2階LDKの家
-
- 31坪
- 3LDK
玄関近くに水廻りを無駄なく集約、1階の半分を広くLDKにしたコンパクト総2階の家
-
- 32坪
- 5LDK
キッチンからぐるっとラク家事動線、将来のライフプラン見据えた平屋のような家
-
- 31坪
- 2LDK
一望できるキッチンと吹抜で家族見守る、光と風が心地良い変形地活かした家
-
- 30坪
- 2LDK
見通し良い収納棚で空間を分ける、小上がりのサブリビングをキッズスペースにした家
-
- 36坪
- 2LDK
家事と収納をキッチンまわりに集約、明るい2階アウトドアリビングの家
-
- 47坪
- 4LDK
カーテンなしで過ごす開放感、隣家からの視線が気にならない2階LDKの家
-
- 43坪
- パントリー
光庭テラスに面した生活空間、吹抜から各世帯の気配感じる二世帯住宅
-
- 32坪
- 2LDK
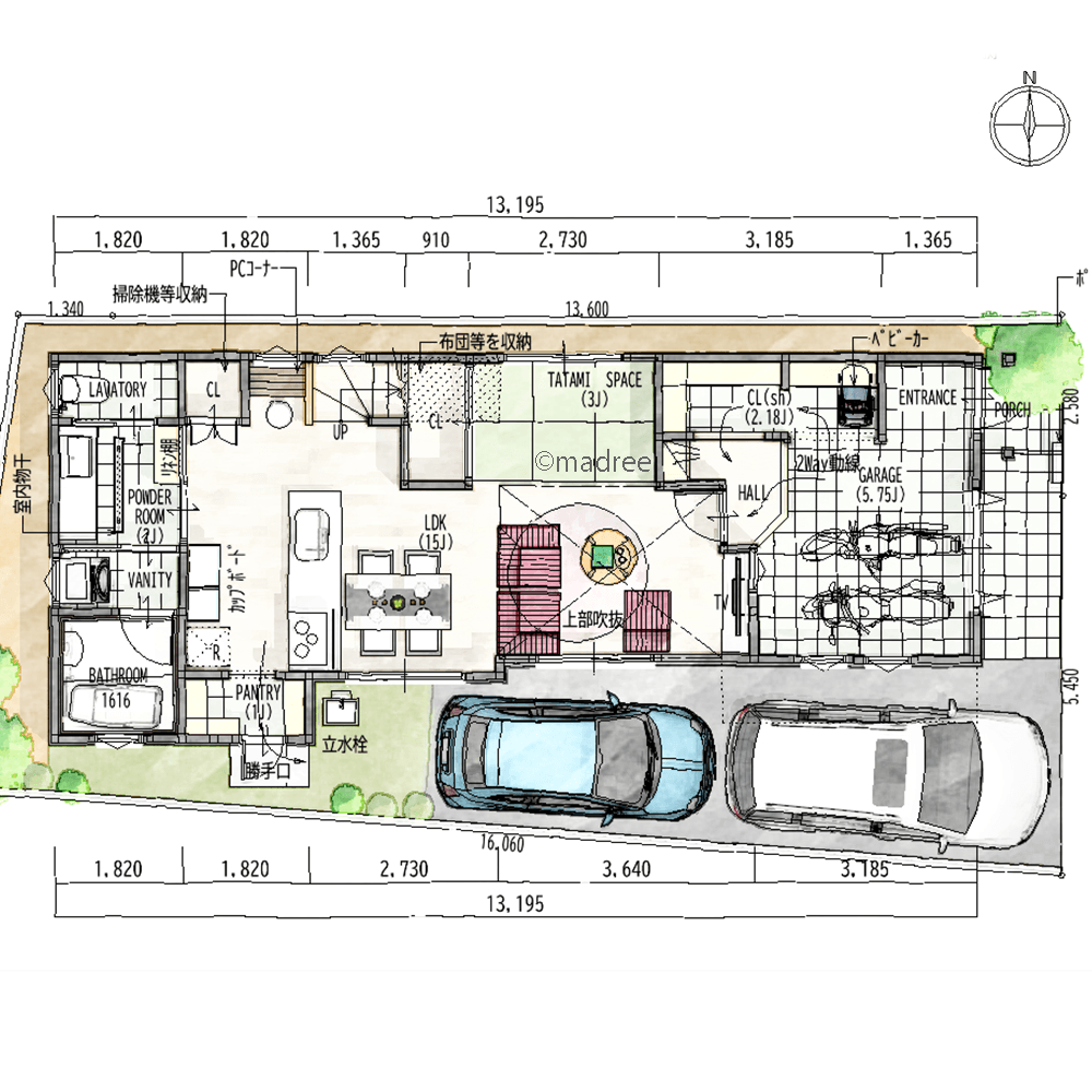
生活を豊かにする癒しの空間、インナーガレージで時間を気にせず趣味を楽しむ家
-
- 38坪
- 3LDK
寝室から繋がる水廻りでサクサク朝支度、光と風が心地良い2階リビングの家
-
- 44坪
- 3LDK
リビングまわりの収納ですっきり整う、プライバシー重視の明るい2階リビングの家
-
- 42坪
- 4LDK
適材適所の壁面収納でスッキリ整う、土地を有効活用した二世帯住宅
-
- 32坪
- 2LDK
シンプル家事で充実の自分時間、ガレージから直線で繋ぐ裏動線のある家
マドリー開発の『住宅営業支援ツール』
madreeデータバンク
マドリーの人気間取り4,800プランを接客・提案に活用できる営業支援ツール
- 競合他社と差がつく、スピード提案
- トレンド間取りで、集客・受注数UP
- 建築家のアイデアを参考に、質の高い提案ができる
