[34坪 3LDK] 2階は眠るだけのリラックス空間、コンパクトな回遊動線で家事が完結する家の間取り
全国の建築家から間取りが集まるmadree(マドリー)で集まった34坪、3LDKの間取りです。外とつながるLDKやアウトドアリビングが特徴の注文住宅の間取りです。
2階は眠るだけのリラックス空間、コンパクトな回遊動線で家事が完結する家はこのような方におすすめです
・夫:30代医師、妻:30代専業主婦、子ども2人(長男4、次男1、もう1人増える予定)
・趣味:家族で公園
・どちらかが寝ていても、あまり気にならないような書斎スペースにしたい
・隣の視線が気にならない明るいリビングで、のんびりと過ごしたい。
全国対応になりました
建築家・デザイナー
からのコメント
【こだわりのポイント】
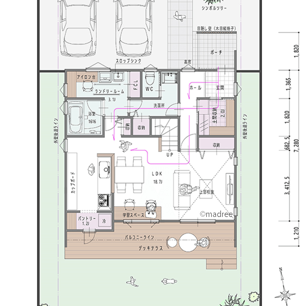
■1階
・玄関は道路から中が見えないように、目隠し壁を作る計画としました。
・木の温もりが感じられるよう、目隠し壁に木目調の縦格子を付け、モダンな雰囲気を演出しています。
・壁の手前にシンボルツリーを置くと、更に洗礼された外観になるのでお勧めです。
・玄関ホールは北側と東側に2か所窓があるので、明るい空間となっています。
・家族は土間収納で靴やアウターを脱ぎ、ホールに出られる2WAY動線です。
・玄関から真っ直ぐ進むと洗面スペースがあるので、帰宅後すぐに手洗いや入浴ができます。
・階段下を利用した収納には、タオルや日用品を収納できます。
・階段奥のランドリールームに、汚れ物を洗うスロップシンクを設けました。FCLを備えているので入浴前の準備が楽に行えます。
・キッチン側から水廻りへアクセスできる回遊動線となっているので、料理をしながら洗濯仕事が楽に行えます。
・LDKは敷地を活かし、全体が陽当たりの良い南に面するように配置しています。デッキテラスと一体感を持たせ、広く感じられるようにしました。
・リビング上部は吹抜とする事で、更に広く明るく開放感があります。
・東側上部からもLDKへ光を取り込めるので、朝日を感じられる気持ちの良い空間となります。
・吹抜の天井に木材を使用すると、木のモダンな雰囲気が味わえて素敵かと思います。
・リビングに大きな収納を設け、おもちゃを広げてもサッと片づけられるようにしました。日用品も一緒に収納できる大きさなので、生活感を見せず片付いた部屋を保てます。
・ダイニング近くに、南向きの明るい学習スペースを設けました。
・冷蔵庫はリビングから見えないよう、パントリー内に設置しました。
■2階
・主寝室に、書斎コーナーとWICを設けました。
・各子ども部屋に奥行きのある収納を設けました。南側の2部屋は将来間仕切りできる計画です。
・階段の途中に、段なりに使用できる棚スペースがあるので、共有の本棚や飾り棚として活用できます。
・LDKやデッキテラスが隣の家から見えづらくなるよう、少し袖壁を伸ばす計画としました。
・バルコニーが1階の庇代わりとなり、オシャレな外観になるようバランスを取れるようにしています。
・袖壁がご不要でしたら、バルコニーを取りやめる事も可能です。
34坪 3LDK関連の間取り
マドリー開発の『住宅営業支援ツール』
madreeデータバンク
マドリーの人気間取り4,800プランを接客・提案に活用できる営業支援ツール
- 競合他社と差がつく、スピード提案
- トレンド間取りで、集客・受注数UP
- 建築家のアイデアを参考に、質の高い提案ができる









