土地61坪の間取り一覧
家族や自分の”好き”を叶える注文住宅の間取りが見つかる!暮らしの要望をもとに全国の建築家が作成した土地61坪の間取りを22件公開しています。毎日更新中!
-
- 39坪~42坪
- 5LDK
こだわりをコンパクトに詰め込んだビルトインガレージの家
-
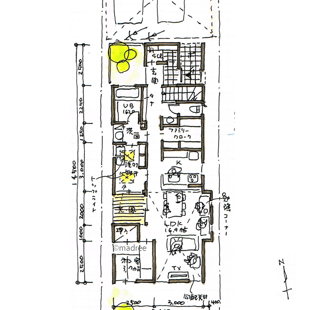
- 36坪
- 4LDK
リビング吹抜とオープン階段で広がる開放感、回遊動線でワンフロアが繋がる家
-
- 42坪
- 3LDK
仕事のオンオフを上手に切り替え、中庭を囲むコの字の事務所兼住宅
-
- 35坪
- 3LDK
片付けが習慣化する収納アクセス、中庭を囲むほぼ平家のような家
-
- 36坪
- 4LDK
一体感の生まれる平屋のような暮らし、広くて開放的な真ん中LDKのある家
-
- 36坪
- 3LDK
人目の気になる角地でも安心して過ごせる、明るく開放的なLDKが主役になる家
-
- 42坪
- 3LDK
玄関から自然に整う帰宅動線、ウォークスルー収納で着替えも荷下ろしも楽々な注文住宅
-
- 37坪
- 2LDK
節電にも繋がる採光通風で夏を乗り切る、大開口窓でLDKの奥まで自然光の届く家
-
- 34坪
- 2LDK
キッチンからの回遊動線がゆとり獲得の鍵、一直線の水廻りで家事も身支度もゆったりの家
-
- 33坪
- 4LDK
一直線の水廻りで時短家事、趣味楽しむリラックススペースのある家
-
- 34坪
- 3LDK
2階は眠るだけのリラックス空間、コンパクトな回遊動線で家事が完結する家
-
- 32坪
- 5LDK
縦長の家に自然の明るさを届ける、屋内外を繋ぐ光庭が家事も生活も快適にする家
-
- 51坪
- 3LDK
採光LDKでゆったりな家時間、目的別の帰宅後動線が家事をグンと楽にする家
-
- 36坪
- 2LDK
共有空間にも適度な距離感、快適なパーソナルスペースを保つLDKの家
-
- 33坪
- 2LDK
家時間はできる限り同じ空間で、生活リズムが異なっても過ごしやすい家
-
- 34坪
- 3LDK
フレキシブルな間仕切りで、キッチンも生活感も丸ごと隠せる家
-
- 33坪
- 3LDK
高天井で生まれる開放感、3面開口で明るく風通し良いLDKの家
-
- 33坪
- 2LDK
ファミクロ中心の回遊動線で、並行家事捗るワンオペママ応援の家
-
- 36坪
- 2LDK
木格子の仕切りで程良く家族の距離感キープ、中庭から光呼び込む縦長の家
-
- 35坪
- 4LDK
緑豊かな中庭を望むコの字配置で、機能的かつ全方向に広がりもつ家
-
- 40坪
- 3LDK
キッチン中心の回遊動線で、家族で料理し会話弾む家
-
- 36坪
- 3LDK
行き止まりのない回遊動線で家事ラクな家
マドリー開発の『住宅営業支援ツール』
madreeデータバンク
マドリーの人気間取り4,800プランを接客・提案に活用できる営業支援ツール
- 競合他社と差がつく、スピード提案
- トレンド間取りで、集客・受注数UP
- 建築家のアイデアを参考に、質の高い提案ができる
