[41坪 4LDK] 縦長地を生かした奥行きある眺望、余裕ある広さで介護もしやすい同居予定の二世帯住宅の間取り
全国の建築家から間取りが集まるmadree(マドリー)で集まった41坪、4LDKの間取りです。外とつながるLDKやアウトドアリビングが特徴の注文住宅の間取りです。
縦長地を生かした奥行きある眺望、余裕ある広さで介護もしやすい同居予定の二世帯住宅はこのような方におすすめです
・母:70代、男性:40代(近い将来結婚&子ども1~2人予定)
・趣味:DIY、小物、裁縫、料理
・普段の食事は簡単にキッチンカウンターで、人が集まる時のみダイニングで食事をしたい。
・高齢の母が、できるだけ負担なく家事を楽しめるキッチンにしたい。
全国対応になりました
建築家・デザイナー
からのコメント
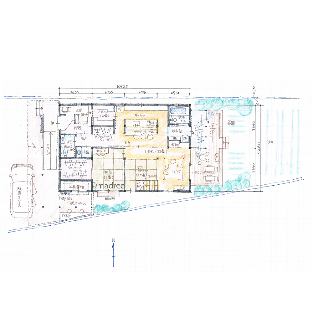
【全体のコンセプト】
・内部空間を広く見せるLDKの家。
・無駄ない収納スペースのある家。
■外構
・大屋根を南側の片流れにする事で、ソーラーパネルで効率良く発電できます。約50畳分の面積を確保しています。
・玄関へのアプローチにスロープを設けています。
・庇を駐車スペースに少し掛かるように延ばす事で、雨の日でも車椅子の乗り降りが楽に行えます。
・南側の屁は、工具置き場と作業スペースを覆うように延ばしています。
■1階
・バリアフリーで段差をなくし、扉も全て引き戸としています。
・日当り良い南側に面して、母部屋となる和室を配置しました。出入りはLDK側に設けています。
・リビングは東側に配置し、独特な敷地形状の先端まで見渡せるようにしています。
・勾配のある高天井により、LDK空間は実際より広く感じられます。
・DKとリビングの間は、引き戸で仕切る事が可能です。
・DK10畳のスペースにアイランドキッチンを配置しました。家族全員が使いやすいようにしています。
・キッチン隣に大きめのパントリーを設けました。玄関土間からも入る事ができるウォークスルータイプです。
・キッチン東側に、浴室と脱衣室兼洗濯室を配置しました。東側から外部へ出られるようにしています。
・書斎下は畳敷きのサブリビングです。高さは1400程度ですが、子どもなら充分楽しめる広さです。
・サブリビングはキッチンとリビングに面しているので、子どもを見守りやすい配置です。ロールスクリーンを垂らせば、個室として簡単な宿泊スペースにもなります。
■中2階
・吹抜の中にスキップフロアの書斎を設けました。
・階段で2階に上がる途中にある2畳の書斎は、全体を見渡せる特別感を持つ、居心地の良いスペースとなります。
■2階
・吹抜に面した東側に寝室を配置し、リビングを見下ろせるようにしています。WICは2.2畳×2室設けました。
・廊下は極力短くなるように配慮しました。
・西側は多目的室としています。子ども室・客間・納戸など、生活スタイルの変化で対応できるようにしています。間仕切りの仕方は、3パターン程計画してみました。
41坪 4LDK関連の間取り
マドリー開発の『住宅営業支援ツール』
madreeデータバンク
マドリーの人気間取り4,800プランを接客・提案に活用できる営業支援ツール
- 競合他社と差がつく、スピード提案
- トレンド間取りで、集客・受注数UP
- 建築家のアイデアを参考に、質の高い提案ができる









