MIDesignの間取り一覧
家族や自分の”好き”を叶える注文住宅の間取りが見つかる!暮らしの要望をもとに全国の建築家が作成したMIDesignの間取りを14件公開しています。毎日更新中!
-
- 27坪〜30坪
- 2LDK
暮らしやすさをコンパクトに詰め込んだ住み心地良い3階建の家
-
- 33坪
- 4LDK
LDKをL字型動線で水回りと収納で囲み生活感を見せずにゆったり過ごせる家
-
- 24坪
- 2LDK
密集地でも環境の変化を気にせず快適、間仕切りで客間にもなる開放的な2階LDKの家
-
- 32坪
- 2LDK
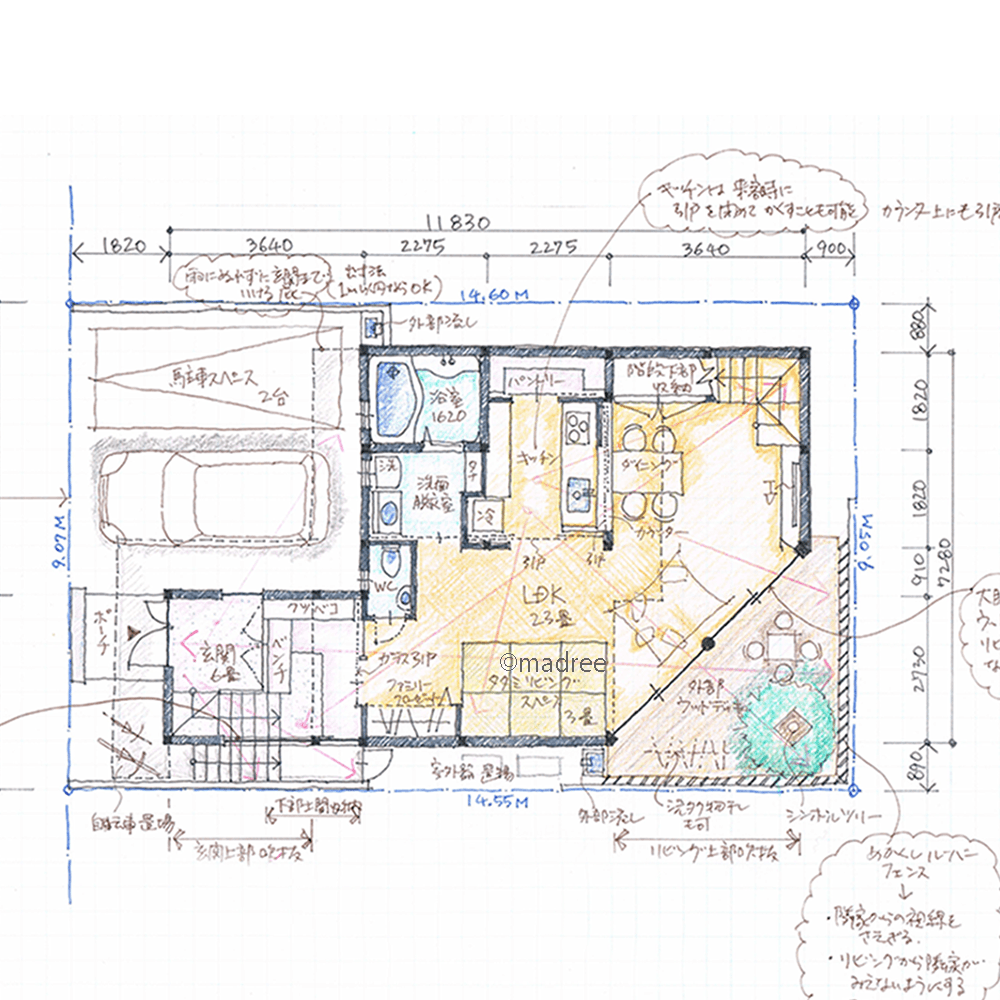
敷地を無駄なく活用して空間を広く魅せる、三角庭が気持ち良い屋外リビングにもなる家
-
- 31坪
- 3LDK
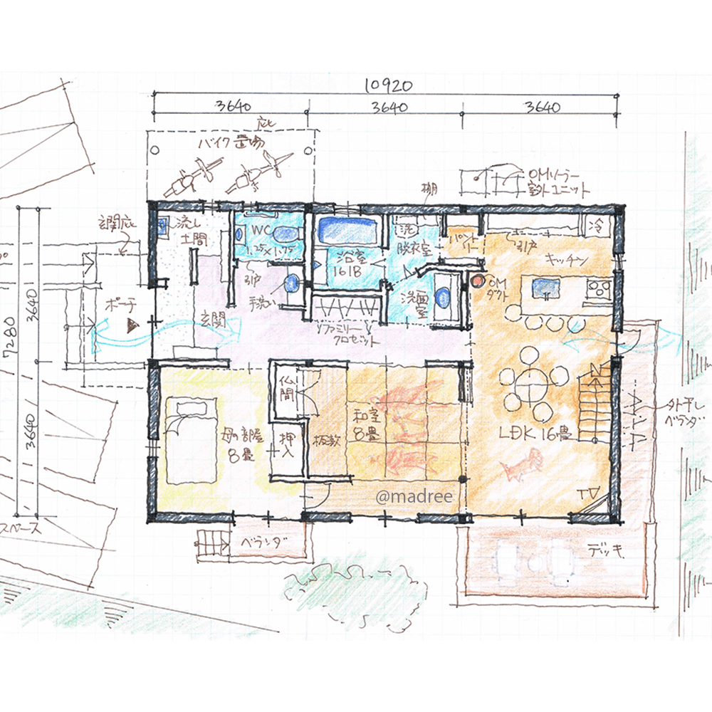
玄関近くに水廻りを無駄なく集約、1階の半分を広くLDKにしたコンパクト総2階の家
-
- 32坪
- 4LDK
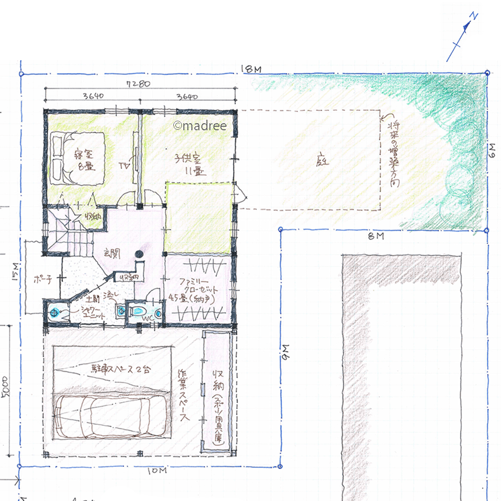
眺望も楽しむ癒しのワークスペース、収納たっぷり角部屋ホームライブラリーのある家
-
- 41坪
- 4LDK
縦長地を生かした奥行きある眺望、余裕ある広さで介護もしやすい同居予定の二世帯住宅
-
- 32坪
- 3LDK
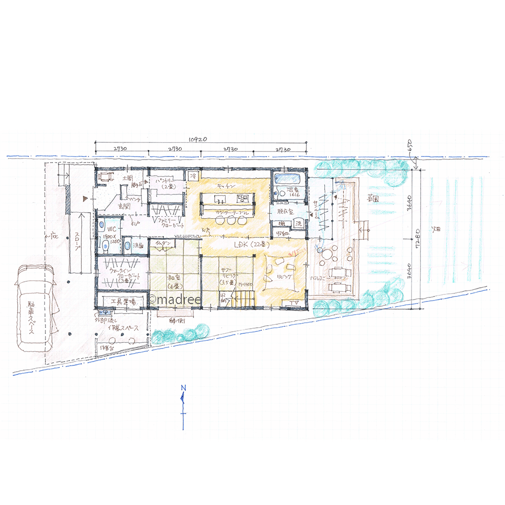
ぐるぐる家事動線で時間ロスなくす、災害に備えた家族の安全守る平屋
-
- 36坪
- 3LDK
生活スタイルに合わせた余地計画、家族の今を反映して建物を変化させていく家
-
- 50坪
- 4LDK
家族団欒とプライベートを両立、多様な生活スタイル対応の多世帯で住む家
-
- 37坪
- 5LDK
音も視線も気にせず過ごす、のびのび走り回れる回遊中庭のある平屋
-
- 38坪
- 5LDK
大壁で映画上映の遊び心と、機能的なパッシブデザイン融合の二世帯住宅
-
- 27坪
- 1LDK
引き戸で繋がる開放的な生活空間、緑に囲まれた快適通風の平屋
-
- 48坪
- 3LDK
必要に応じて二世帯風になる、庭園に向けて開放的なバリアフリー平屋
マドリー開発の『住宅営業支援ツール』
madreeデータバンク
マドリーの人気間取り4,800プランを接客・提案に活用できる営業支援ツール
- 競合他社と差がつく、スピード提案
- トレンド間取りで、集客・受注数UP
- 建築家のアイデアを参考に、質の高い提案ができる
