[33坪 4LDK] 一直線のゆとり生まれる家事動線、カーテンを締めなくても囲い壁で快適に過ごせる家の間取り
全国の建築家から間取りが集まるmadree(マドリー)で集まった33坪、4LDKの間取りです。外とつながるLDKやアウトドアリビングが特徴の注文住宅の間取りです。
一直線のゆとり生まれる家事動線、カーテンを締めなくても囲い壁で快適に過ごせる家はこのような方におすすめです
・30代共働き夫婦(妻育休中)、長女8ヶ月(子どもが1人増える可能性あり)、インコ3匹
・趣味:野球、ラグビー、インコ、旅行、温泉
・仕事で夜遅くに帰宅する事もあるので、夫婦でベッドを別にしてリズムが崩れないようにしたい。
・庭で洗濯物を干したいので、洗濯物が雨に濡れないように軒を長くしたい。
全国対応になりました
| 広さ | |
|---|---|
| 階数 | |
| 土地特徴 | |
| 部屋数 | |
| 家族人数 | |
| 特徴 |
|
| 担当建築家・デザイナー |
建築家・デザイナー
からのコメント
【全体のコンセプト】
・ゆとりを持って子どもと向き合える、快適な家。
【こだわりのポイント】
■配置計画
・敷地の東側に駐車スペースを配置し、建物を西側に寄せる事で、南東側に広い庭を確保しています。
・広い庭から、居室内に十分な光を取り入れます。
・家事動線は西側に集約し、洗濯や炊事がスムーズに行えるようにしました。
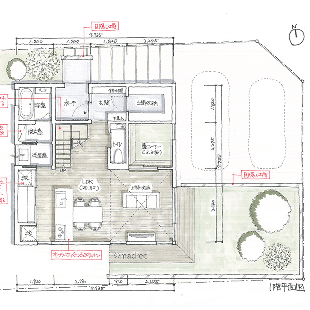
■1階
・駐車場から近い、北側に玄関を配置しました。目隠し塀と植栽によって、ポーチが道路から見えないようになっています。
・玄関に、広い土間と土間収納を設けました。
・南東側に目隠し塀に囲まれた庭を設け、庭に面してめいっぱい窓を取り、明るい空間となるようにしました。
・キッチンはリビングを見渡せる大きなペニンシュラ型としました。
・キッチン背面は引き戸で隠し、生活感が出ないようにしました。ここに洗濯機も置く計画です。
・畳スペースは、障子か襖で仕切る事で、客間としても使えるよにしました。
■2階
・階段を上がると、吹抜やバルコニーと繋がる、明るいホールとなります。
・主寝室は勾配天井とする事で広さを演出しています。
・吹抜に面して小さな書斎スペースを設け、引き戸を開くとリビングを望めます。
・子ども部屋2つ(3.8帖え)は、南に面した明るい部屋としており、机とベッドを置くのに十分な広さである。
・FCLは回遊性のある2ドアとしており、複数人が同時に使える、大容量なスペースです。
・バルコニーは深い軒により、雨の日にも洗濯物を干す事が可能です。
33坪 4LDK関連の間取り
マドリー開発の『住宅営業支援ツール』
madreeデータバンク
マドリーの人気間取り4,800プランを接客・提案に活用できる営業支援ツール
- 競合他社と差がつく、スピード提案
- トレンド間取りで、集客・受注数UP
- 建築家のアイデアを参考に、質の高い提案ができる









