[32坪 3LDK] ギャラリーを兼ねた広い土間で魅せる、2階に集約した生活空間で開放的に過ごせる家の間取り
全国の建築家から間取りが集まるmadree(マドリー)で集まった32坪、3LDKの間取りです。外とつながるLDKや2階リビングが特徴の注文住宅の間取りです。
ギャラリーを兼ねた広い土間で魅せる、2階に集約した生活空間で開放的に過ごせる家はこのような方におすすめです
・夫:40代会社員、妻:40代主婦、2人姉妹(14歳、11歳)
・趣味:釣り、インラインスケート、電子ピアノ、ミシン、PC
・1階の土間スペースに、インラインスケートのブーツを展示するスペースを設けたい。
・家族それぞれに個室を設けて、1人で過ごせる時間も大切にしたい。
全国対応になりました
| 広さ | |
|---|---|
| 階数 | |
| 土地特徴 | |
| 部屋数 | |
| 家族人数 | |
| 特徴 | |
| 担当建築家・デザイナー |
建築家・デザイナー
からのコメント
【全体のコンセプト】
・見せる土間とバルコニーで、リゾートを感じられる家。
【こだわりのポイント】
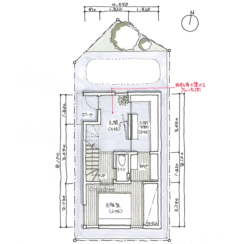
■1階
・玄関を入ると、大きな土間とそこから続く土間収納があります。趣味の物を飾りながら収納できるスペースであり、家族の象徴となるような空間となります。
・主寝室は、六畳の広さとしています。主寝室から続く納戸は、そのまま土間収納と繋がっており、趣味の物を持って外出する際にスムーズな動線です。
■2階
・LDKを一体的に利用し、最大限の広さを確保しています。
・PCスペースやパントリーなど、必要な空間を機能的に配置しながらも、インナーバルコニーによって遊びのある空間となります。
・シーリングファンのある、リゾート感のあるリビングダイニングとなります。
■3階
・南北に分けて、子ども部屋を4畳半の広さで2部屋配置しました。
・各階とも、収納下部にルンバステーションを確保できます。
32坪 3LDK関連の間取り
マドリー開発の『住宅営業支援ツール』
madreeデータバンク
マドリーの人気間取り4,800プランを接客・提案に活用できる営業支援ツール
- 競合他社と差がつく、スピード提案
- トレンド間取りで、集客・受注数UP
- 建築家のアイデアを参考に、質の高い提案ができる









