[40坪 5LDK] 緑と光と風を存分に取り込む、季節の移ろいを感じる趣ある家の間取り
全国の建築家から間取りが集まるmadree(マドリー)で集まった40坪、5LDKの間取りです。外とつながるLDKやアウトドアリビングが特徴の注文住宅の間取りです。
緑と光と風を存分に取り込む、季節の移ろいを感じる趣ある家はこのような方におすすめです
・30代共働き夫婦、2人姉妹(4歳,1歳)
・趣味:車、PC作業、読書
・ワークスペース兼カフェスペースとして使える雰囲気良い空間が欲しい。
・自然を感じる家にしたいので、玄関の正面に植栽が見えるようにしたい。
全国対応になりました
| 広さ | |
|---|---|
| 階数 | |
| 土地特徴 | |
| 部屋数 | |
| 家族人数 | |
| 特徴 | |
| 担当建築家・デザイナー |
建築家・デザイナー
からのコメント
【全体のコンセプト】
「庭に囲まれた、広い家」
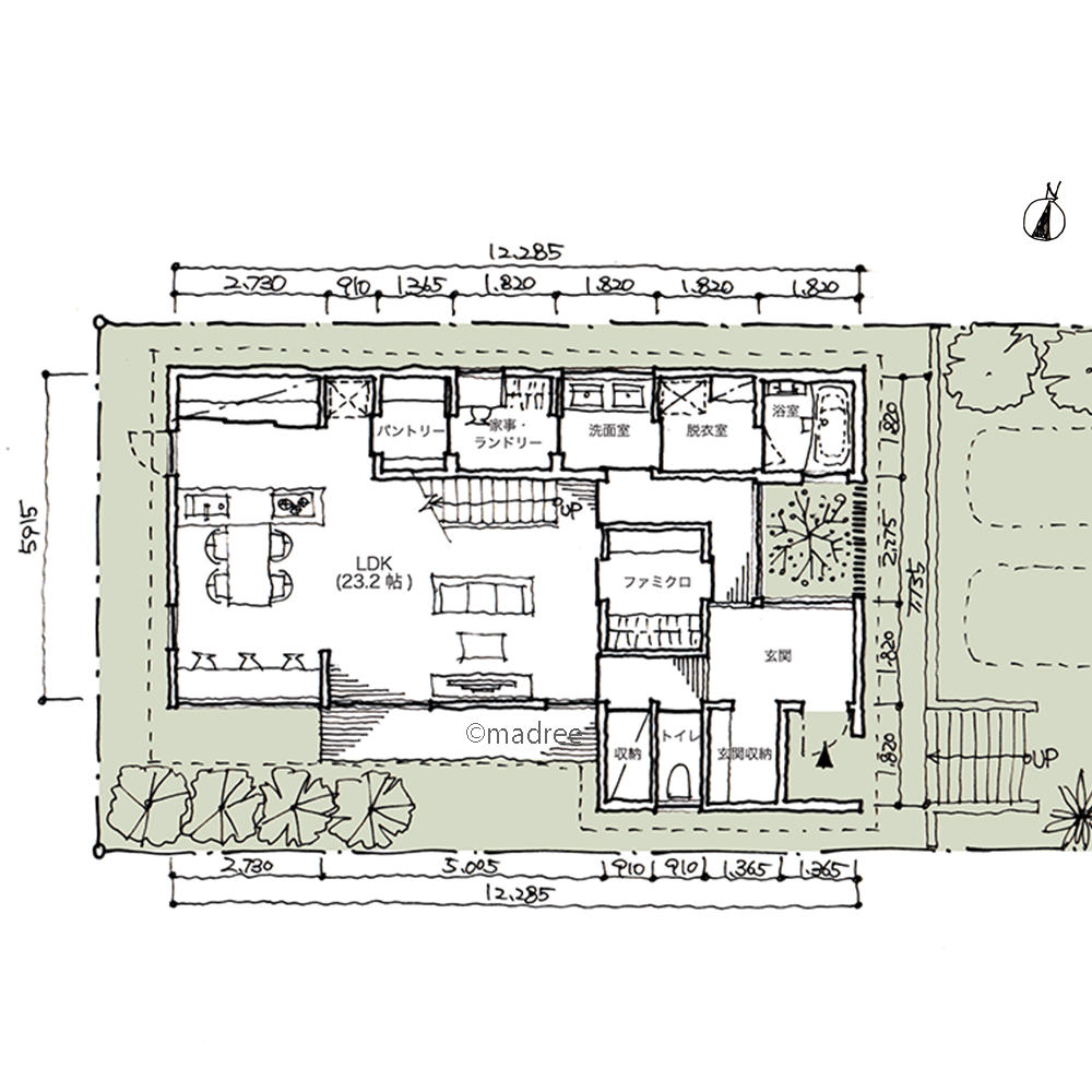
南に長辺が向いた、日当たりの良い土地を利用して、東西に細長い平面とし、建物に寄り添うように緑を配置することで、明るい庭に囲まれた心地の良い家を設計しました。
【こだわりのポイント】
■1階
・玄関を入って北側が家族用・西が客用の動線となっており、水廻りや家事空間など、生活感の気になる部分をうまく隠せる設計としました。
・家事・水廻りは北側にまとめ、家事のしやすい動線とするとともに、LDKは南にいっぱい開き、明るく開放的な空間としました。
■2階
・家族のための個室は2階にまとめ、1階の生活空間と分ける設計としました。
40坪 5LDK関連の間取り
マドリー開発の『住宅営業支援ツール』
madreeデータバンク
マドリーの人気間取り4,800プランを接客・提案に活用できる営業支援ツール
- 競合他社と差がつく、スピード提案
- トレンド間取りで、集客・受注数UP
- 建築家のアイデアを参考に、質の高い提案ができる









