[38坪 3LDK] 裏動線に生活感をスッキリ隠す、緑と夜空を楽しむアウトドアリビングの家の間取り
全国の建築家から間取りが集まるmadree(マドリー)で集まった38坪、3LDKの間取りです。外とつながるLDKやアウトドアリビングが特徴の注文住宅の間取りです。
裏動線に生活感をスッキリ隠す、緑と夜空を楽しむアウトドアリビングの家はこのような方におすすめです
・30代共働き夫婦、娘7歳
・趣味:ゲーム、ヨガ
・南側の植栽や夜空を楽しめるよう、外空間につながるLDKにしたい。
・生活感を隠したいので、外干しの洗濯物が視界にはいらないテラスが欲しい。
全国対応になりました
| 広さ | |
|---|---|
| 階数 | |
| 土地特徴 | |
| 部屋数 | |
| 家族人数 | |
| 特徴 |
|
| 担当建築家・デザイナー |
建築家・デザイナー
からのコメント
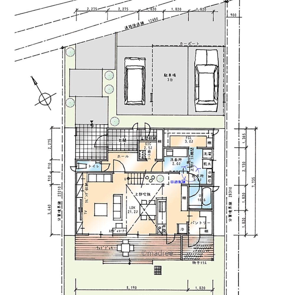
【全体のコンセプト】
・リビング、ダイニング、キッチンを南側一列に並べ、窓から南の樹木を眺められる配置としました。
・ダイニングの吹抜より、夜空を眺められるハイサイドライトを設けました。
・ストリップ階段をリビング、ダイニングに設け、家族の様子が覗えるようにしています。
・北側は、窓を少なくシンプルなファサード計画ができる様にしました。
【各階のこだわりポイント】
■1階
・LDK:リビング、ダイニング、キッチンを正形に配置しました。キッチンからリビング、ダイニングを見渡せます。テレビをリビング西側に設け、家族が横切ることなくダイニング、キッチンからテレビを見ることができます。ストリップ階段はダイニングに設け、吹抜と併せて縦方向にも広々とした空間になっています。リビング収納はテレビのある壁に床から天井までの壁面収納としました。テレビと一体にすることで統一感を出します。
・脱衣所、洗面所:キッチンから最短で洗面所、脱衣所へ行ける配置としました。FCL(ファミリークローゼット)とUB(ユニットバス)も併せて水廻りと収納をまとめて回遊動線としました。家事の時短ができます。洗面所は、お客様の使用や家族の帰宅時に行けるよう、玄関ホールからも行ける動線を設けています。
・玄関:土間収納とSIC(シューズインクローク)を玄関横に設けました。2WAYとして使い勝手を良くしています。コート掛けも設けお出かけ時の身繕いもこちらでできます。
■2階
・BR1(ご主人の寝室)、BR2(奥様の寝室)、BR3(お子様の寝室):家族の寝室を2階に設けました。BR1、BR2は南側に設け日差しを取込む心地のよい寝室としました。BR1のバルコニーは、屋根付としています。
・WIC(ウォークインクローゼット):廊下から出入りできる2.5帖の容量です。1階のFCL(ファミリークローゼット)(3帖)と併せて充分な収納量としました。
■外構
・ウッドデッキ、物干テラス:ウッドデッキはバーベキューなどをする場所、物干テラスは、外干し時の場所に分けています。物干テラスは、庇を設けパントリーから出入りして洗濯から外干し、収納までキッチンを中心とした家事動線としています。
・駐車場:前面道路が狭いので敷地側にセットバックして車の出し入れに支障がない車路幅を設けました。
38坪 3LDK関連の間取り
マドリー開発の『住宅営業支援ツール』
madreeデータバンク
マドリーの人気間取り4,800プランを接客・提案に活用できる営業支援ツール
- 競合他社と差がつく、スピード提案
- トレンド間取りで、集客・受注数UP
- 建築家のアイデアを参考に、質の高い提案ができる









