tomoの間取り一覧
家族や自分の”好き”を叶える注文住宅の間取りが見つかる!暮らしの要望をもとに全国の建築家が作成したtomoの間取りを8件公開しています。毎日更新中!
-
- 39坪~42坪
- 5LDK
開放的がありつつもプライバシーも守られて安心しながら暮らしを充実させられる家
-
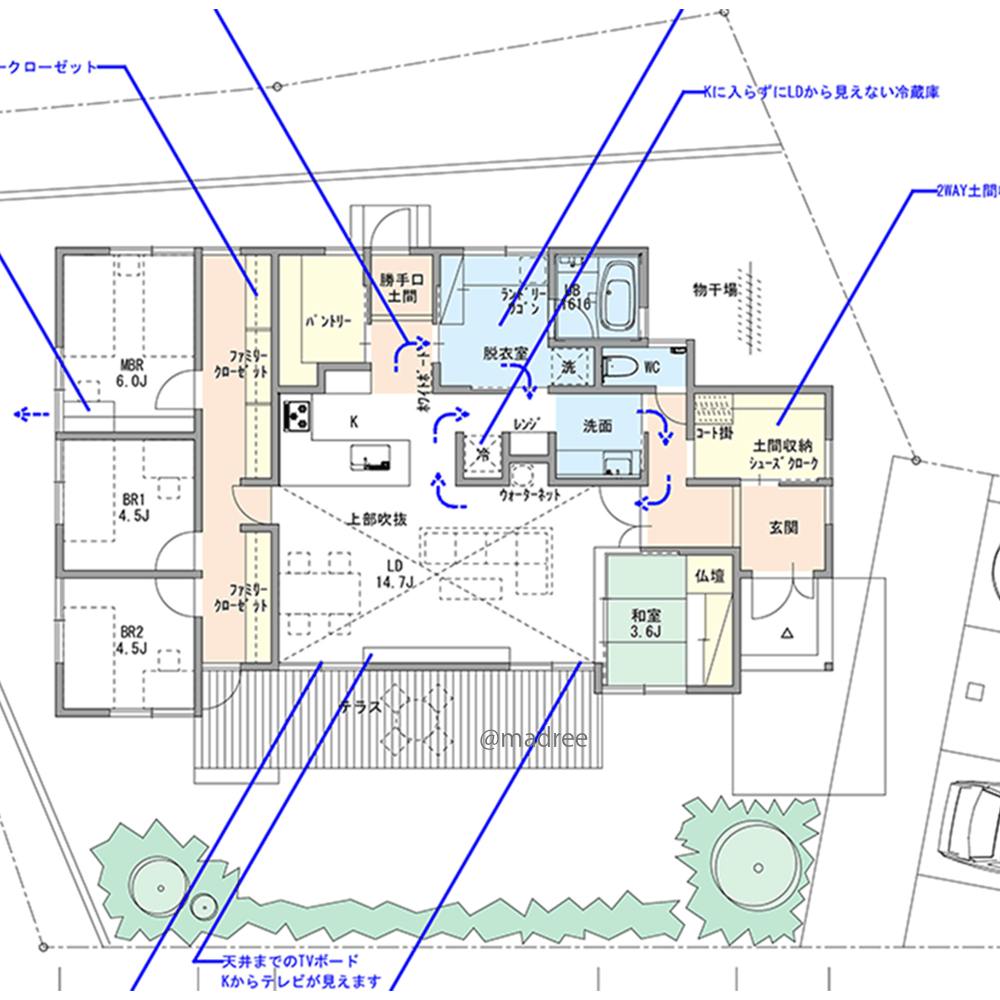
- 33坪~36坪
- 3LDK
コンパクトにまとめた家事ラク動線と家族が集まりたくなる空間がある家
-
- 55坪
- 6LDK
車椅子でも快適に暮らす、家族が集う吹抜リビングの二世帯住宅
-
- 23坪
- 2LDK
カメラが好き、土間ギャラリーに作品飾るコンパクトハウス
-
- 38坪
- 3LDK
裏動線に生活感をスッキリ隠す、緑と夜空を楽しむアウトドアリビングの家
-
- 37坪
- 5LDK
緑花に向かい視線が抜ける、開口窓と吹抜からたっぷりの光が届く家
-
- 39坪
- 4LDK
自分時間生まれるスムーズ動線、採光テラス回遊で家事も生活も整う家
-
- 35坪
- 4LDK
大容量ファミクロに掛ける収納、内外つながるラク家事重視の平屋
マドリー開発の『住宅営業支援ツール』
madreeデータバンク
マドリーの人気間取り4,800プランを接客・提案に活用できる営業支援ツール
- 競合他社と差がつく、スピード提案
- トレンド間取りで、集客・受注数UP
- 建築家のアイデアを参考に、質の高い提案ができる
