[33坪 3LDK] 洗濯はかどる、家事動線を隠した平屋の間取り
全国の建築家から間取りが集まるmadree(マドリー)で集まった33坪、3LDKの間取りです。外とつながるLDKやリビング吹抜が特徴の注文住宅の間取りです。
洗濯はかどる、家事動線を隠した平屋はこのような方におすすめです
・アウトドアやBBQが大好きな30代夫婦、小学生1人、幼稚園1人の4人家族
・行き止まりの無い間取り、キッチンから脱衣所へ繋げたい
・家族それぞれが朝食を準備、複数人で使うキッチン
・吹抜、ロフトのある開放的なリビングの平屋
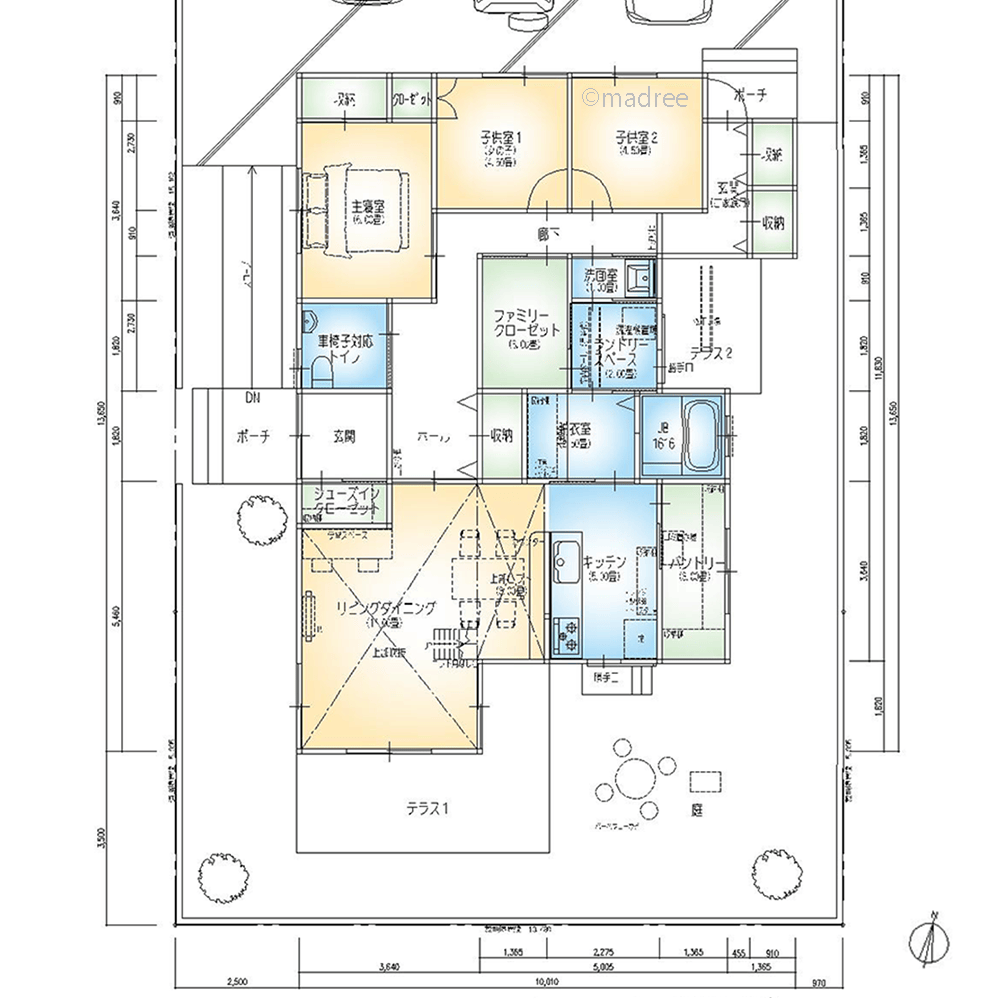
洗濯はかどる、家事動線を隠した平屋の間取りアイデア
全国対応になりました
| 広さ | |
|---|---|
| 階数 | |
| 部屋数 | |
| 家族人数 | |
| 土地特徴 | |
| 特徴 | |
| 担当建築家・デザイナー |
建築家・デザイナー
からのコメント
《全体のコンセプト》
・周辺地図から北側に駐車スペースを設けた方が良いと考え、オープンにし、3台並べられるようにしました。
・アウトドアが好きとのことでしたので、北側にご家族用の玄関と収納も広めにとりました。 アウトドアの荷物などを収納したり、お手入れをしていただければと思います。
・南側にはお庭とテラス1、LDKを設けています。 LDKは合わせて19畳となり、ダイニング上部にロフトを設けました。
《各部屋について》
・お客様がいらした時には、キッチンやランドリースペースなどは目につかないように配置しました。
・脱衣室とランドリースペースは別々にしています。 家族が浴室を使っていても、気兼ねなく洗濯をすることができます。 動線を考えて、ランドリースペースからテラス2に出て洗濯物を干し、 脱衣室とファミリークローゼットに収納するという流れとしました。
33坪 3LDK関連の間取り
マドリー開発の『住宅営業支援ツール』
madreeデータバンク
マドリーの人気間取り4,800プランを接客・提案に活用できる営業支援ツール
- 競合他社と差がつく、スピード提案
- トレンド間取りで、集客・受注数UP
- 建築家のアイデアを参考に、質の高い提案ができる









