土地97坪の間取り一覧
家族や自分の”好き”を叶える注文住宅の間取りが見つかる!暮らしの要望をもとに全国の建築家が作成した土地97坪の間取りを14件公開しています。毎日更新中!
-
- 31坪
- 2LDK
敷地の中心にある屋外の癒し空間、リビングや浴室から景観を共有する坪庭のある家
-
- 39坪
- 3LDK
個室も外と繋がりロフトが秘密基地になる、遊び心あふれる家事ラク動線の家
-
- 73坪
- 納戸
気楽に行き来できる良い距離感、明るい日差しと海風を感じられる二世帯住宅
-
- 39坪
- 3LDK
家事シェアしやすいコンパクト動線、中庭とトップライトで明るい縦長平屋
-
- 36坪
- 3LDK
デッキ一体の明るい1階で生活完結、暮らしやすいちょっとした工夫を散りばめた家
-
- 50坪以上
- 納戸
扉越しにお互いの気配を感じる、介護を見据えた多世帯で住む家
-
- 50坪以上
- 納戸
ご近所感覚の心地良い距離感、家族それぞれが自由に過ごせる多世帯で住む家
-
- 38坪
- 3LDK
階段でon/offスペースゆるくわける、緑豊かな人が集まる縦長の平屋
-
- 36坪
- 2LDK
開放的に繋がりプライバシー確保、家族が自然と集う明るいLDKのある平屋
-
- 33坪
- 3LDK
コンパクトな家事動線で、開放感ある遊びのきいた平屋
-
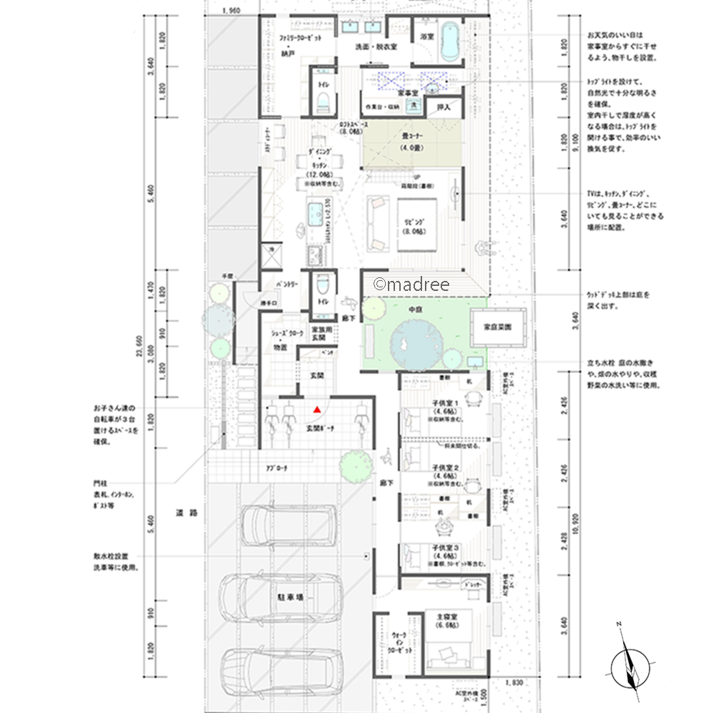
- 33坪
- 4LDK
回遊動線で快適家事、すっきり片付く収納力ある平屋
-
- 33坪
- 3LDK
洗濯はかどる、家事動線を隠した平屋
-
- 31坪
- 3LDK
リビングは離れで特別感を、遊びのきいたユニークな平屋
-
- 33坪
- 4LDK
回遊動線でテキパキ家事、各所に収納工夫ある平屋
マドリー開発の『住宅営業支援ツール』
madreeデータバンク
マドリーの人気間取り4,800プランを接客・提案に活用できる営業支援ツール
- 競合他社と差がつく、スピード提案
- トレンド間取りで、集客・受注数UP
- 建築家のアイデアを参考に、質の高い提案ができる
