[27坪 3LDK] 自然に触れる庭と明るいリビングで、親子時間育む平屋の間取り
全国の建築家から間取りが集まるmadree(マドリー)で集まった27坪、3LDKの間取りです。外とつながるLDKやリビング中心の動線が特徴の注文住宅の間取りです。
自然に触れる庭と明るいリビングで、親子時間育む平屋はこのような方におすすめです
・3歳の息子を育てる20代シンングルマザー
・子どもと一緒に料理や体を動かすことが好き
・活発な子なので、庭で思いっきり遊べるようにしたい
・ウォークインクローゼットはうまく使えないので、ただの収納にしたい
全国対応になりました
| 広さ | |
|---|---|
| 階数 | |
| 部屋数 | |
| 家族人数 | |
| 土地特徴 | |
| 特徴 | |
| 担当建築家・デザイナー |
建築家・デザイナー
からのコメント
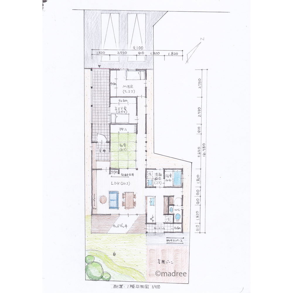
【全体のコンセプト】
・敷地の特性を生かした明るく開放的なリビングと庭との繋がりのある計画としました。
【各階のこだわったポイント】
・駐車スペースは道路側に二台並列で計画しました。
・間口の広いLDKを南面させるため、敷地が広がったところにLDKを計画し、東西の幅を最大限に使えるようにしました。LD上部は勾配天井としております。
・家事動線がなるべくコンパクトになるよう水廻りを1か所にまとめました。
・MBR、子ども室、和室の間の壁は防音効果を高めるため、それぞれ収納を設けております。
・和室は玄関からもリビングからもアクセスできるようにし、引き戸をすべて引き込みとすることで、開け放てば廊下部分を含めてLDK一体の空間となるように計画しました。お子様を遊ばせていても目の届く位置に配置しました。
・キッチンの南側にサンルームを設け、シワにしたくないものなどを干せるスペースを設けました。また、外部にもお布団など干せるようにスペースを設けておりますが、LDからは死角の位置に計画しました。
27坪 3LDK関連の間取り
マドリー開発の『住宅営業支援ツール』
madreeデータバンク
マドリーの人気間取り4,800プランを接客・提案に活用できる営業支援ツール
- 競合他社と差がつく、スピード提案
- トレンド間取りで、集客・受注数UP
- 建築家のアイデアを参考に、質の高い提案ができる









