土地72坪の間取り一覧
家族や自分の”好き”を叶える注文住宅の間取りが見つかる!暮らしの要望をもとに全国の建築家が作成した土地72坪の間取りを28件公開しています。毎日更新中!
-
- 36坪~39坪
- 4LDK
適材適所のゆとりある収納で散らかり知らず!一直線水回りの家事ラク動線で暮らしやすい間取り
-
- 36坪~39坪
- 3LDK
おもてなしや団欒スペースと普段の生活空間を分けて暮らしにメリハリがつく家
-
- 36坪~39坪
- 3LDK
家族それぞれのワークスペース完備!家族時間も自分時間も充実できる間取り
-
- 39坪
- 3LDK
たっぷり収納で生活感ないリビングをキープ、緑や風を感じる外とつながる家
-
- 27坪〜30坪
- 3LDK
キッチンから家族の様子を見守る、2方向から自然光こぼれるL字の平屋
-
- 24坪
- 3LDK
玄関を開けると視線と風が抜ける、LDKから全ての部屋へ繋がりを持つ平屋
-
- 25坪
- 3LDK
自然の温もりを感じてリラックス、子どもの心と体を育む庭のある平屋
-
- 25坪
- 2LDK
成長と共にプライベートにも配慮できる、LDKから寝室へ繋がりを持つ平屋
-
- 26坪
- 3LDK
自然を感じながらのびのび過ごす、子どもの自立見守る目配りしやすい平屋
-
- 25坪
- 3LDK
自然光が心地よいリビングで家族時間育む、キッチン中心に目配りできる平屋
-
- 25坪
- 3LDK
気軽に自然を感じながら過ごす、回遊動線でLDKと屋外空間の繋がる平屋
-
- 24坪
- 2LDK
隣家を気にせず光と風を取り込む、凹凸のある外観が生活の幅を広げる家
-
- 26坪
- 3LDK
朝日で気持ち良い朝を迎える、家族が集まる温もりリビングのある平屋
-
- 42坪
- 5LDK
外に視線が抜けて開放感UP、眺望生かした高台の家
-
- 40坪
- 4LDK
光と風が爽やかに南北へ抜ける、各階の北面窓から四季の眺望を楽しむ家
-
- 39坪
- 4LDK
開放的な開口窓で空気を全交換、ウッドデッキまで爽やかに繋がる大空間LDKの家
-
- 41坪
- 4LDK
行き止まりない回遊空間で広がり生まれる、緑に囲まれた庭を臨む家
-
- 40坪
- 2LDK
庭と室内を自由に行き来できる、ウッドデッキを囲むようにL字型のLDKと繋がる家
-
- 38坪
- 2LDK
キッチンからのコンパクト動線で、複数の家事をスムーズにこなす家
-
- 23坪
- 3LDK
庭の緑で自然の目隠しに、行き止まりなくウッドデッキで繋がる家
-
- 22坪
- 3LDK
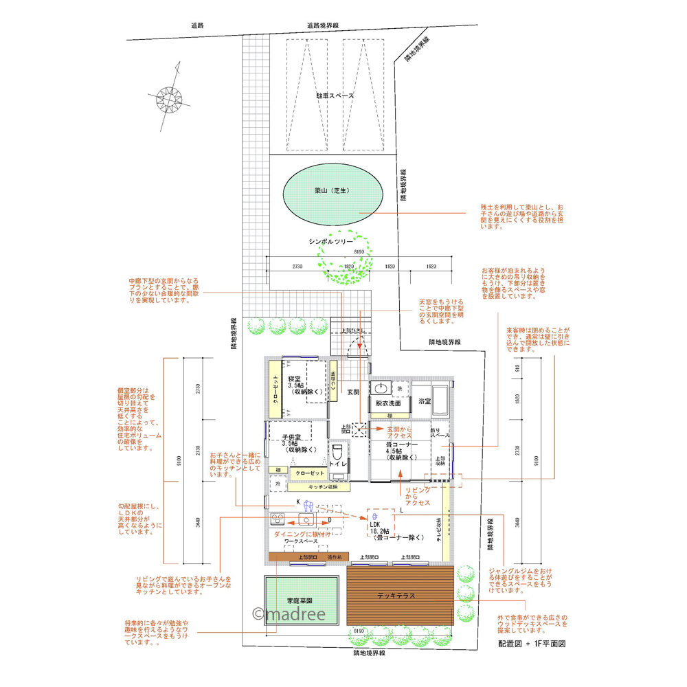
部屋や動線をコンパクトに、子どもと楽しむ築山芝生のある平屋
-
- 27坪
- 3LDK
自然に触れる庭と明るいリビングで、親子時間育む平屋
-
- 26坪
- 3LDK
家族で楽しめる庭と、ほっと落ち着くリビングの平屋
-
- 39坪
- 5LDK
中庭から光取り込む北側リビングで、眺め生かした高台の家
マドリー開発の『住宅営業支援ツール』
madreeデータバンク
マドリーの人気間取り4,800プランを接客・提案に活用できる営業支援ツール
- 競合他社と差がつく、スピード提案
- トレンド間取りで、集客・受注数UP
- 建築家のアイデアを参考に、質の高い提案ができる
