アトリエ有有庵一級建築士事務所の間取り一覧
家族や自分の”好き”を叶える注文住宅の間取りが見つかる!暮らしの要望をもとに全国の建築家が作成したアトリエ有有庵一級建築士事務所の間取りを14件公開しています。毎日更新中!
-
- 33坪~36坪
- 3LDK
狭小地でありながらプライバシーを保ち家族みんなが心地よく豊かに過ごせる家
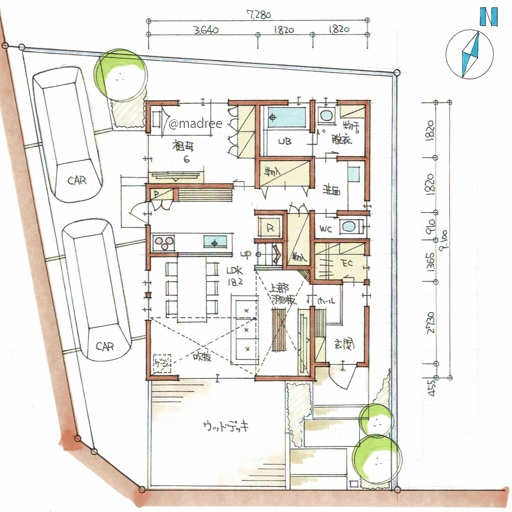
-
- 33坪~36坪
- 4LDK
趣味も子育ても来客対応もOK!暮らしが満ちる心地良い間取り
-
- 39坪~42坪
- 2LDK
暮らしすさや趣味を楽しむ空間が充実した心が豊かになる家
-
- 45坪~49坪
- 4LDK
光を取り込む明るく開放的なLDKと水回り直線動線で家事ラクの平屋
-
- 37坪
- 4LDK
多趣味に合わせた収納でLDKはスッキリ、ゲストが気軽に泊まれるスマート来客動線の家
-
- 35坪
- 4LDK
2階バルコニーで愛犬と楽しく過ごす、縦長地に明から取り込む光庭のある家
-
- 33坪
- 3LDK
開けた空間から景色楽しむ、家時間を気分良く過ごす開口窓のある家
-
- 38坪
- 4LDK
包まれるような安心感、ピットリビングでLDK空間に変化をつけた家
-
- 43坪
- 5LDK
中庭でプライバシーと開放感を両立、充実した帰宅動線で家事ラクな家
-
- 27坪〜30坪
- 2LDK
制限付き土地を最大限に活かす、自然と人が集まり賑わう居心地良い家
-
- 37坪
- 4LDK
育児も介護も家族で協力、気兼ねない共有空間で過ごす三世帯住宅
-
- 39坪
- 3LDK
勾配天井と開口窓で開放感UP、家族を近く感じる平屋
-
- 30坪
- 2LDK
中庭デッキから明るさ取り込む、縦長敷地で快適に暮らす家
-
- 32坪
- 4LDK
動線まとめたメリハリ空間、屋上で優雅に非日常を楽しむ家
マドリー開発の『住宅営業支援ツール』
madreeデータバンク
マドリーの人気間取り4,800プランを接客・提案に活用できる営業支援ツール
- 競合他社と差がつく、スピード提案
- トレンド間取りで、集客・受注数UP
- 建築家のアイデアを参考に、質の高い提案ができる
