[27坪〜30坪 2LDK] 制限付き土地を最大限に活かす、自然と人が集まり賑わう居心地良い家の間取り
全国の建築家から間取りが集まるmadree(マドリー)で集まった27坪〜30坪、2LDKの間取りです。外とつながるLDKやアウトドアリビングが特徴の注文住宅の間取りです。
制限付き土地を最大限に活かす、自然と人が集まり賑わう居心地良い家はこのような方におすすめです
・30代共働き夫婦、姉妹(長女6歳、次女2歳)/妻は副業で自宅教室を開講
・趣味:ゴルフ、洋裁、ホームパーティー、フラワーアレンジメント、スポーツ
・夫婦で在宅勤務が重なる時もあるので、それぞれのワークスペースを確保したい。
・週末は人を招くことが多いので、明るく居心地良いLDKにしたい。
全国対応になりました
| 広さ | |
|---|---|
| 土地特徴 | |
| 階数 | |
| 部屋数 | |
| 家族人数 | |
| 特徴 | |
| 担当建築家・デザイナー |
建築家・デザイナー
からのコメント
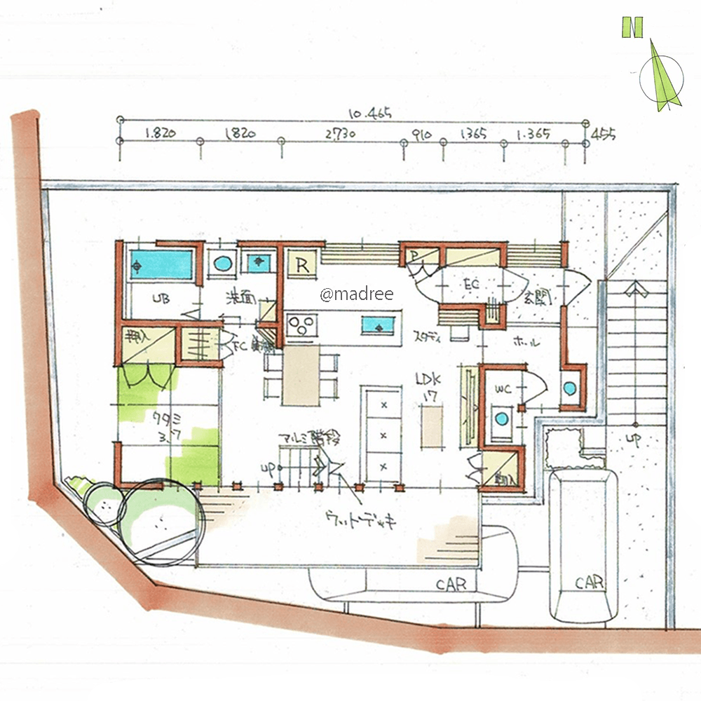
【全体のコンセプト】
・計画地は壁面後退線が1mで設定されており、最大限に活かす事にしました。
・1階は水廻りをまとめ、家事動線を優先させました。
・2階は、全体を6寸の切妻で計画し、第一種高度斜線の規制があるので、北側1間分母屋下がりとしましたが、全てを床面積に含めていくと、容積率をオーバーしてしまう為、天井高さ1.4m以下の小屋裏収納を計画する事で、収納を確保しながら効率的に利用できる工夫をしました。
【各階のポイント】
■1階
・玄関を入り、ホールを通ってリビングへという動線と、エントランスクロークを通ってパントリーへという2way動線を確保しました。ホールにはトイレと洗面台を配置しています。また、エントランスクロークには日常利用するコート類や外部で利用するゴルフバックなどを収納できます。
・LDKは南側にリビングとダイニング、北側にキッチンを配置しました。ダイニングに面して、3.7帖の畳コーナーと押入を計画し、キッチンを中心として、ダイニング、畳コーナー、リビングの一体空間でホームパーティーを楽しむことができます。
・キッチンのカップボードの間に窓を設け、南北にも風が抜けるよう配慮しています。
・リビングのテレビ横の収納には、奥様の仕事道具などもしまえるようにしました。
・ダイニングの南側を利用し、アルミ階段を計画しました。 アルミ階段を使う事で、南からの採光も確保でき、階段下もリビングの一部として利用できるよう考えてみました。
・畳コーナーは普段くつろいだり、遊んだり、お客様が泊まったりいろいろな用途に利用できます。
・北西の角には、浴室、洗面室、ファミリークロークを設けています。 洗面室にもパジャマや下着類などを収納できる棚を設けました。
・LDKに面して、ウッドデッキを駐車場に跳ね出すように7帖の大きさで計画しました。家族や友人と楽しんだり、洗濯を干したり、ゴルフの練習などに利用できます。
■2階
・アルミ階段を上がってすぐの所に子ども部屋、階段を望みながら少し廊下を歩いて寝室という配置としました。廊下部分にはスタディースペースを設けました。
・子ども部屋は4.5帖二部屋の計画です。どちらの部屋も勾配天井とし、ロフトにつながっています。 子ども達はロフトで寝る計画としました。将来は壁で仕切って別々の部屋にする事も可能です。 西側の子ども部屋は、将来間仕切りをした時に、窓がなくなってしまうので、廊下との間に引き違いのアクリル板を設け、そこから明かりを取り込む計画としています。
・寝室は7帖の大きさを確保し、一部にパソコンコーナーを設けました。 1階、2階のそれぞれのスタディーコーナー、寝室のパソコンコーナーを利用すれば、在宅勤務が重なった時も安心です。
■注意点
行政庁において、小屋裏収納の取り扱いについて(2階から利用する小屋裏収納は床面積に含めないことが可能か) ロフトの取り扱いについて(奥行等規制されている場合があります) 確認必要となります。不可の場合は、5.5帖の小屋裏収納を洗面室から上るようにするとか、子ども部屋の小屋裏収納は無くし、部屋内に収納を確保するとかの工夫が必要になるかと思います。ロフトについては奥行きが規制されている場合は、面積縮小で対応する必要があるかと思います。
27坪〜30坪 2LDK関連の間取り
マドリー開発の『住宅営業支援ツール』
madreeデータバンク
マドリーの人気間取り4,800プランを接客・提案に活用できる営業支援ツール
- 競合他社と差がつく、スピード提案
- トレンド間取りで、集客・受注数UP
- 建築家のアイデアを参考に、質の高い提案ができる









