JYNの間取り一覧
家族や自分の”好き”を叶える注文住宅の間取りが見つかる!暮らしの要望をもとに全国の建築家が作成したJYNの間取りを112件公開しています。毎日更新中!
-
- 36坪
- 3LDK
急な来客でもサッと目隠し、パーテーションでキッチンが独立空間になる家
-
- 34坪
- 4LDK
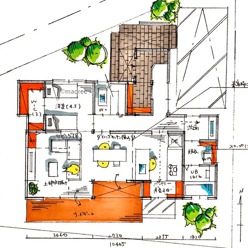
光と風を呼びこむ開放的なLDK、on/offメリハリある暮らし実現の平屋
-
- 39坪
- 4LDK
風の抜けるスキップフロアのLDK、気持ちの良い空間に自然と家族集まる家
-
- 38坪
- 4LDK
家族で趣味を楽しむ空間が点在、休日もステイホームしたくなる家
-
- 41坪
- 4LDK
ピットリビングでプライベート空間増える、カーテンなし開放的なLDKの家
-
- 33坪
- 3LDK
和室をさまざまなシーンに大活用、自立促す家事ラク動線の家
-
- 36坪
- 4LDK
家族で家事参加しやすい簡潔動線、密集地でも明るく開放感のある平屋
-
- 36坪
- 4LDK
廊下でon/off生活分けてメリハリを、縦にも横にも広がる開放的な平屋
-
- 47坪
- 納戸
庭と和室を気軽に行き来、適度な距離で過ごす二世帯住宅
-
- 42坪
- 6LDK
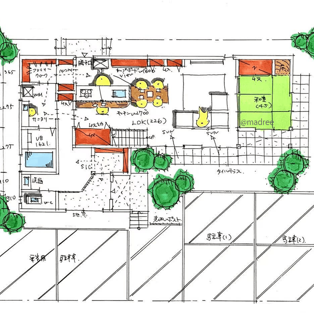
開口窓と吹抜で光と風たっぷり感じる、裏動線の家事ですっきり整う家
-
- 36坪
- 4LDK
LDKとつながる大きなデッキを走り回れる、光と風と緑感じるアウトドア好きの家
-
- 38坪
- 2LDK
キッチンからのコンパクト動線で、複数の家事をスムーズにこなす家
-
- 41坪
- 5LDK
のびのびできる自由空間が心地良い、光と風呼び込む大開口の家
-
- 33坪
- 4LDK
屋上まで快適に行き来できる、ホームエレベーターで老後生活も安心の家
-
- 41坪
- 3LDK
キッチン中心にぐるっと回遊家事、デットスペースも大活用した機能的な家
-
- 56坪
- 4LDK
ぐるぐる動線で水廻り渋滞回避、程よい距離キープした明るい二世帯住宅
-
- 36坪
- 3LDK
玄関から繋がる収納動線で、フレキシブルにサッと生活感隠せる家
-
- 40坪
- 4LDK
ホテルライクな自宅リゾート空間、自然の光で目覚める寝室吹抜のある家
-
- 48坪
- 4LDK
成長に合わせて部屋数も変化、家族それぞれにプライベート空間のある家
-
- 44坪
- 5LDK
視覚的な空間の広がり感じる、床座ピットリビングに自然と家族集まる家
-
- 37坪
- 3LDK
清潔を保つ帰宅後動線、動物アレルギーでもペットと快適に暮らす家
-
- 41坪
- 3LDK
生活空間はいつでもスッキリ、収納に直結する家族用動線のある家
-
- 25坪
- 4LDK
中心のキッチンより家族見守る、ひと工夫で広々使える狭小住宅
-
- 40坪
- 3LDK
まるで趣味部屋のような広い土間収納、隠す生活感ですっきり見せる家
マドリー開発の『住宅営業支援ツール』
madreeデータバンク
マドリーの人気間取り4,800プランを接客・提案に活用できる営業支援ツール
- 競合他社と差がつく、スピード提案
- トレンド間取りで、集客・受注数UP
- 建築家のアイデアを参考に、質の高い提案ができる
