36坪~39坪の間取り一覧
家族や自分の”好き”を叶える注文住宅の間取りが見つかる!暮らしの要望をもとに全国の建築家が作成した36坪~39坪の間取りを306件公開しています。毎日更新中!
-
- 38坪
- 4LDK
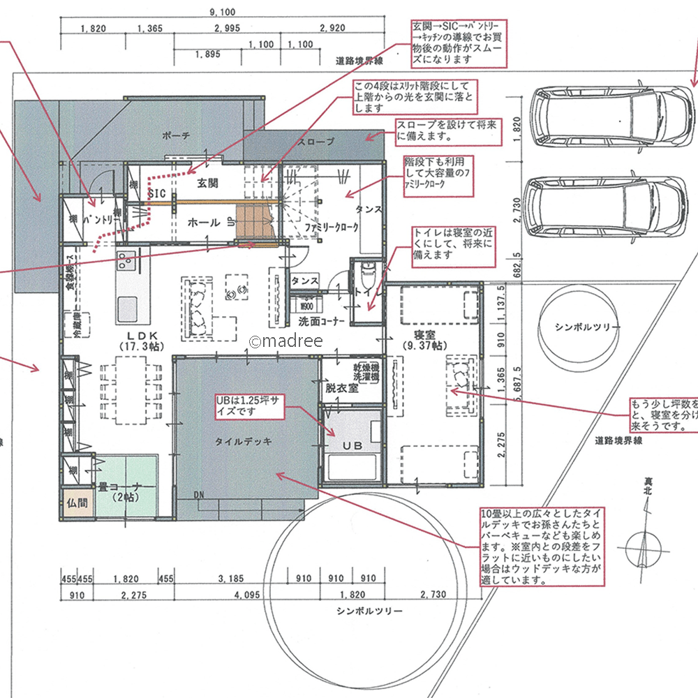
裏動線に家事をまとめてリビングはすっきり、家族各々のプライベートも重視した家
-
- 36坪
- 4LDK
2階に洗濯動線をまとめた、いつでも来客ウェルカムの家
-
- 37坪
- 3LDK
中庭を囲む明るい生活空間、自然を近くに感じながら過ごす平屋
-
- 38坪
- 4LDK
座れる休める収納できる、小上がり畳の便利な階段踊り場がある家
-
- 37坪
- 5LDK
緑花に向かい視線が抜ける、開口窓と吹抜からたっぷりの光が届く家
-
- 36坪
- 3LDK
少ない開口で賑やかさと距離を保つ、緑のテラス望む2階浴室のある家
-
- 38坪
- 4LDK
包まれるような安心感、ピットリビングでLDK空間に変化をつけた家
-
- 37坪
- 4LDK
ウォークスルーのファミクロと水廻りで朝もラクラク、緑に癒される回遊動線の平屋
-
- 39坪
- 2LDK
直線LDKに変化をつける、ピットリビングで空間の広がり感じる家
-
- 36坪
- 3LDK
コンパクトに集約した生活動線で、暮らしにゆとり生まれる家事楽な家
-
- 36坪
- 4LDK
充実裏動線でスッキリLDKをキープ、夫婦各々の趣味も楽しむ遊び心ある家
-
- 38坪
- 2LDK
キッチンからのコンパクト動線で、複数の家事をスムーズにこなす家
-
- 36坪
- 4LDK
縦にも屋外にも広がる大空間、広々LDKでホームパーティー楽しむ家
-
- 36坪
- 3LDK
デッキ一体の明るい1階で生活完結、暮らしやすいちょっとした工夫を散りばめた家
-
- 36坪
- 3LDK
コンパクト回遊家事と帰宅動線で、家族時間生み出す共働き応援の家
-
- 38坪
- 3LDK
キッチン中心ぐるぐる動線で生活向上、4兄妹が集う子どもリビングのある家
-
- 38坪
- 4LDK
プライベート中庭から光が届く、将来を見据えた平屋風2階建ての家
-
- 38坪
- 3LDK
キッチン中心に短く繋がる、生活にゆとりが生まれる楽家事動線の家
-
- 37坪
- 5LDK
ガラス壁で生まれる屋外との一体感、LDKと繋がるプライベートテラスのある家
-
- 37坪
- 3LDK
充実裏動線で片付くリビング、地震に強いほぼ真四角の家
-
- 36坪
- 3LDK
コンパクトな動線で日常生活の手間を省く、暮らしの中心に階段のある家
-
- 36坪
- 3LDK
屋外空間で気軽に寛ぐ、2階LDKと繋がる快適インナーバルコニーのある家
-
- 39坪
- 5LDK
食後もそのまま畳でのんびり、団欒増える掘り炬燵ダイニングのある家
-
- 37坪
- 3LDK
清潔を保つ帰宅後動線、動物アレルギーでもペットと快適に暮らす家
マドリー開発の『住宅営業支援ツール』
madreeデータバンク
マドリーの人気間取り4,800プランを接客・提案に活用できる営業支援ツール
- 競合他社と差がつく、スピード提案
- トレンド間取りで、集客・受注数UP
- 建築家のアイデアを参考に、質の高い提案ができる
