土地66坪の間取り一覧
家族や自分の”好き”を叶える注文住宅の間取りが見つかる!暮らしの要望をもとに全国の建築家が作成した土地66坪の間取りを35件公開しています。毎日更新中!
-
- 42坪
- 3LDK
裏動線に生活感をまる隠し、来客ウェルカムなアウトドア好きの家
-
- 46坪
- 4LDK
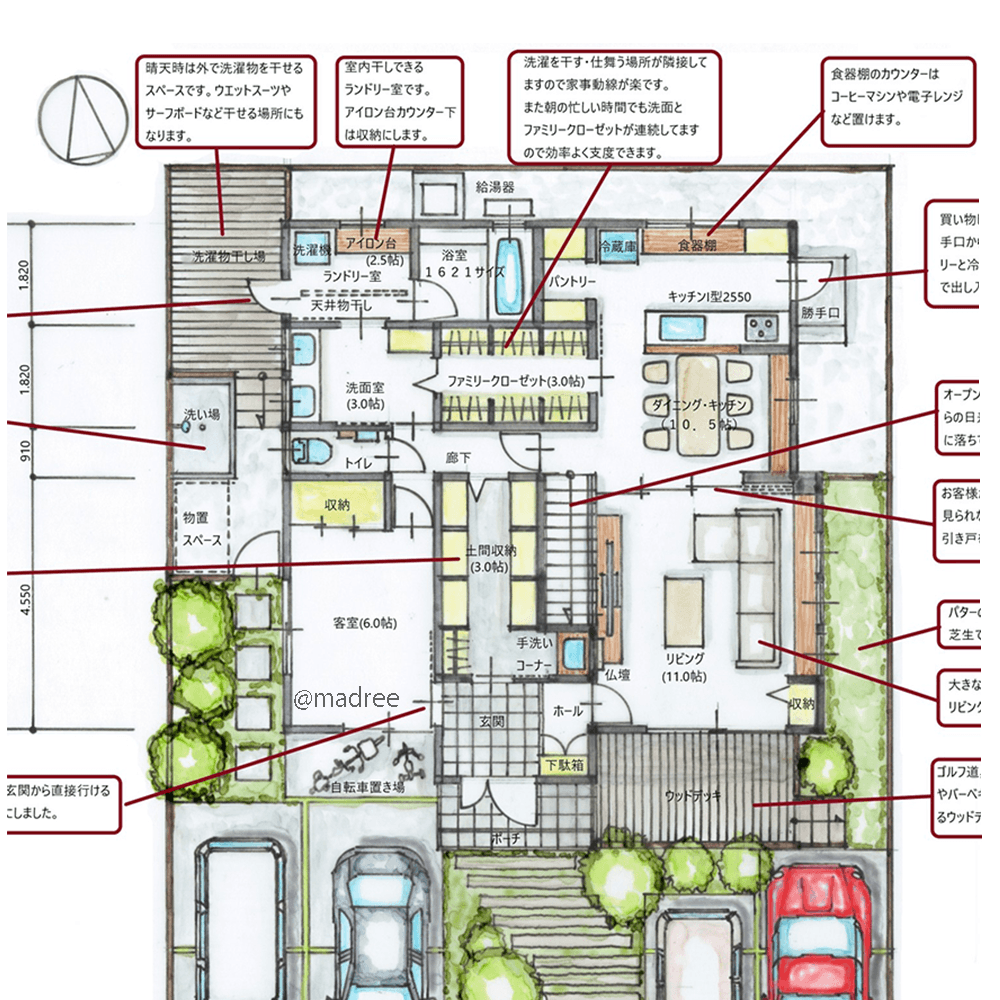
全力で遊んだ後は浴室へ直行、裏の生活動線でスッキリ見せる家
-
- 41坪
- 4LDK
中心の吹抜で家族つながり感じる、広庭の緑を望むLDKの家
-
- 45坪
- 4LDK
子どもも愛犬も思い切り遊べる、境界線に目が届く安心テラスのある家
-
- 38坪
- 4LDK
プライベート中庭から光が届く、将来を見据えた平屋風2階建ての家
-
- 40坪
- 4LDK
ホテルライクな自宅リゾート空間、自然の光で目覚める寝室吹抜のある家
-
- 41坪
- 3LDK
キッチンまわりでさくっと家事完結、庭とつながる回遊動線の家
-
- 47坪
- 4LDK
海帰りの片付けがストレスフリーに、全力で趣味楽しむ充実動線の家
-
- 41坪
- 3LDK
フォールディングドアで屋内外を繋ぐ、LDKが伸びやかに広がる家
-
- 47坪
- 4LDK
水廻りとファミクロを回遊できる、無駄なしラク家事動線の家
-
- 36坪
- 4LDK
廊下の壁一面を本の空間とした、家全体に回遊性のある暮らしやすい平屋
マドリー開発の『住宅営業支援ツール』
madreeデータバンク
マドリーの人気間取り4,800プランを接客・提案に活用できる営業支援ツール
- 競合他社と差がつく、スピード提案
- トレンド間取りで、集客・受注数UP
- 建築家のアイデアを参考に、質の高い提案ができる
