27坪〜30坪の間取り一覧
家族や自分の”好き”を叶える注文住宅の間取りが見つかる!暮らしの要望をもとに全国の建築家が作成した27坪〜30坪の間取りを109件公開しています。毎日更新中!
-
- 27坪〜30坪
- 2LDK
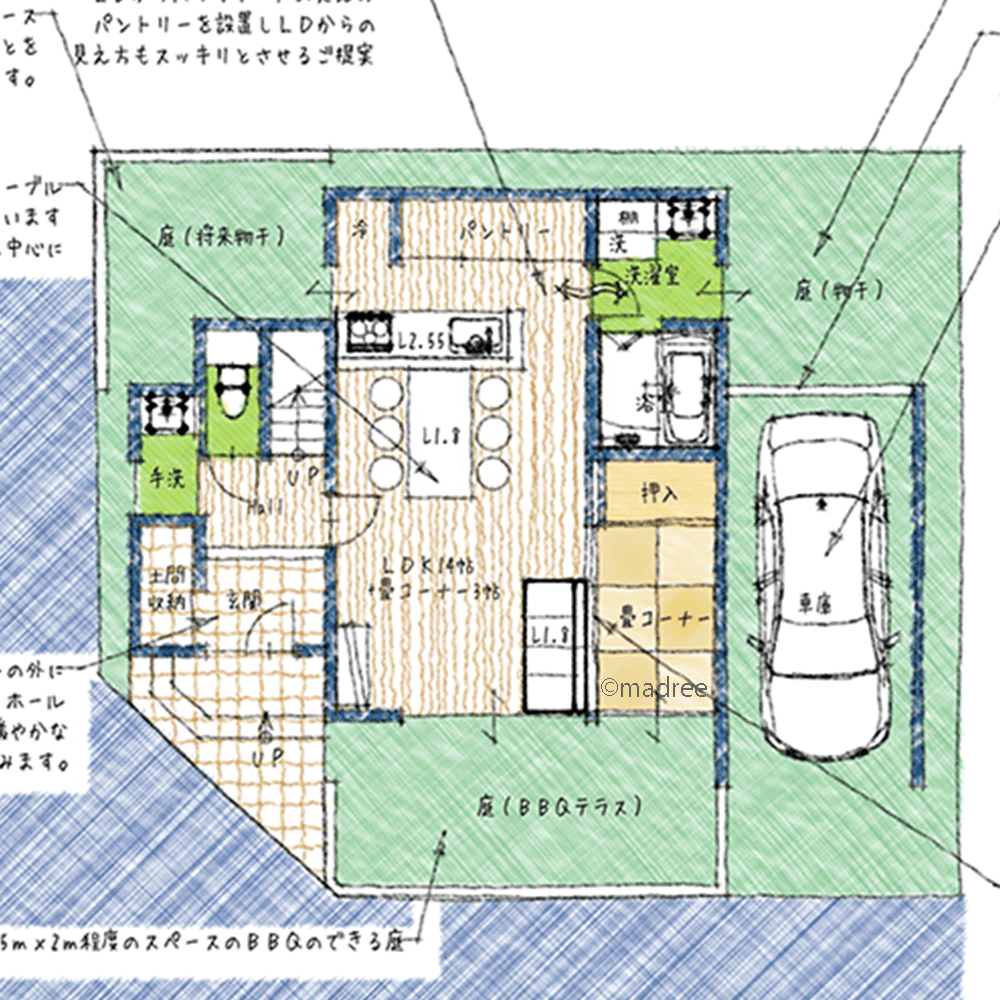
キッチンから庭まで広々と見渡せる、賑やかな週末を楽しむおもてなし上手の家
-
- 27坪〜30坪
- 3LDK
明るく風が抜けるLDKに家族が集まる、2階に家事動線をぎゅとまとめた家
-
- 27坪〜30坪
- 4LDK
適材適所の収納とシンプル動線で、ゆったりと心地良く過ごす二世帯住宅
-
- 27坪〜30坪
- 4LDK
リビング横の洋室をフレキシブルに大活用、廊下でオンオフ空間分けした気遣い上手の家
-
- 27坪〜30坪
- 2LDK
夫婦別室で在宅ワークでも気兼ねなし、別階でホッとくつろぐON/OFF切り替えできる家
-
- 27坪〜30坪
- 3LDK
エレベーター導入で老後も快適、長く愛せるシンプルな2階リビングの家
-
- 27坪〜30坪
- 3LDK
生活感を一瞬で消してオシャレキッチンに、リビングとつながるフラットバルコニーのある家
-
- 27坪〜30坪
- 2LDK
奥行きの広いキッチンからの眺望、ワンフロアで家事が楽に完結する2階LDKの家
-
- 27坪〜30坪
- 2LDK
廊下も階段下も無駄なく活用、南側に開放感のあるリビング時間を満喫できる家
-
- 27坪〜30坪
- 5LDK
スムーズなおもてなし動線で気軽にお泊りできる、人が自然と集まる賑やかな家
-
- 27坪〜30坪
- 3LDK
ゆったりLDKでホームパーティー楽しむ、繋がるテラスで多い来客時も安心な家
-
- 27坪〜30坪
- 3LDK
憧れのインナーガレージで趣味満喫、トップライトから光溢れる3階建て狭小住宅
-
- 27坪〜30坪
- 2LDK
家族団らんのリビング重視、2階にまとめた快適洗濯動線の家
-
- 27坪〜30坪
- 4LDK
豊かな家族時間を過ごすアウトドアリビングと、適材適所の大収納で広々感じる家
-
- 27坪〜30坪
- 3LDK
階別に動線をハッキリ分けて安心、家族が快適に過ごせる人で賑わう家
-
- 27坪〜30坪
- 3LDK
散らかりがちな玄関がスッキリ、家事負担を軽減する収納動線の家
-
- 27坪〜30坪
- 4LDK
家事をギュッと集めたミニマム空間、無駄ない動線で家族時間増える家
-
- 27坪〜30坪
- 3LDK
階ごとのゾーニングで暮らし整う、視線が抜ける狭小地の三階建て住宅
-
- 27坪〜30坪
- 3LDK
建物中央のプライベート空間、採光デッキに添うコの字回廊のある平屋
-
- 27坪〜30坪
- 3LDK
別空間で安心して過ごす、来客動線と交わりにくい習い事教室併用の家
-
- 27坪〜30坪
- 5LDK
家族集まる明るい2階リビングと、インナーガレージで夢叶える狭小地の家
-
- 27坪〜30坪
- 3LDK
生活の中に自然感じる、コンパクトに動線を繋ぐ平屋風暮らしの家
-
- 27坪〜30坪
- 2LDK
横長デッキと繋がる快適回遊LDK、陽だまりリビングでゆったり過ごす平屋
-
- 27坪〜30坪
- 2LDK
夏はリビングテラスで花火鑑賞、高天井で明るい2階生活スペースの家
マドリー開発の『住宅営業支援ツール』
madreeデータバンク
マドリーの人気間取り4,800プランを接客・提案に活用できる営業支援ツール
- 競合他社と差がつく、スピード提案
- トレンド間取りで、集客・受注数UP
- 建築家のアイデアを参考に、質の高い提案ができる
