41坪の間取り一覧
家族や自分の”好き”を叶える注文住宅の間取りが見つかる!暮らしの要望をもとに全国の建築家が作成した41坪の間取りを87件公開しています。毎日更新中!
-
- 41坪
- 5LDK
ダイナミックな玄関でゲストをお出迎え、四方八方から光が溢れるアウトドアリビングの家
-
- 41坪
- 4LDK
音を気にせず落ち着いて暮らせる空間対策、玄関を中心に世帯を分けたL字型の二世帯住宅
-
- 41坪
- 3LDK
傾斜な土地を生かした視線対策、LDKからプライベート感のある中庭テラスに繋がる家
-
- 41坪
- 3LDK
庭に面するL字型デッキで屋内外を自由に回遊、奥行きあるLDKと南北の借景が繋がる平屋
-
- 41坪
- 4LDK
玄関から一直線の勝手口でラクにゴミ出し、生活感を隠せる来客動線のある家
-
- 41坪
- 4LDK
たっぷり壁面収納で整いキープ、映えるアウトドアリビングに人が集まる家
-
- 41坪
- 4LDK
家族それぞれの望みを叶えた個室と、互いの生活スタイルを尊重した二世帯住宅
-
- 41坪
- 2LDK
高窓から美しい光が差し込む、緑豊かな里山の伸びやかな平屋
-
- 41坪
- 4LDK
縦長地を生かした奥行きある眺望、余裕ある広さで介護もしやすい同居予定の二世帯住宅
-
- 41坪
- 4LDK
コンパクトに繋がる生活動線、高齢・介護を見据えた無理なく家事をこなせる家
-
- 41坪
- 2LDK
ジメジメな梅雨も快適に洗濯、陽当たり良好なランドリーで部屋干しできる家
-
- 41坪
- 4LDK
適材適所の収納でほぼ隠す、将来2世帯を見据えた独立和室の家
-
- 41坪
- 5LDK
それぞれの時間も大切に過ごす、床座でくつろぐおとな3人世帯の家
-
- 41坪
- 3LDK
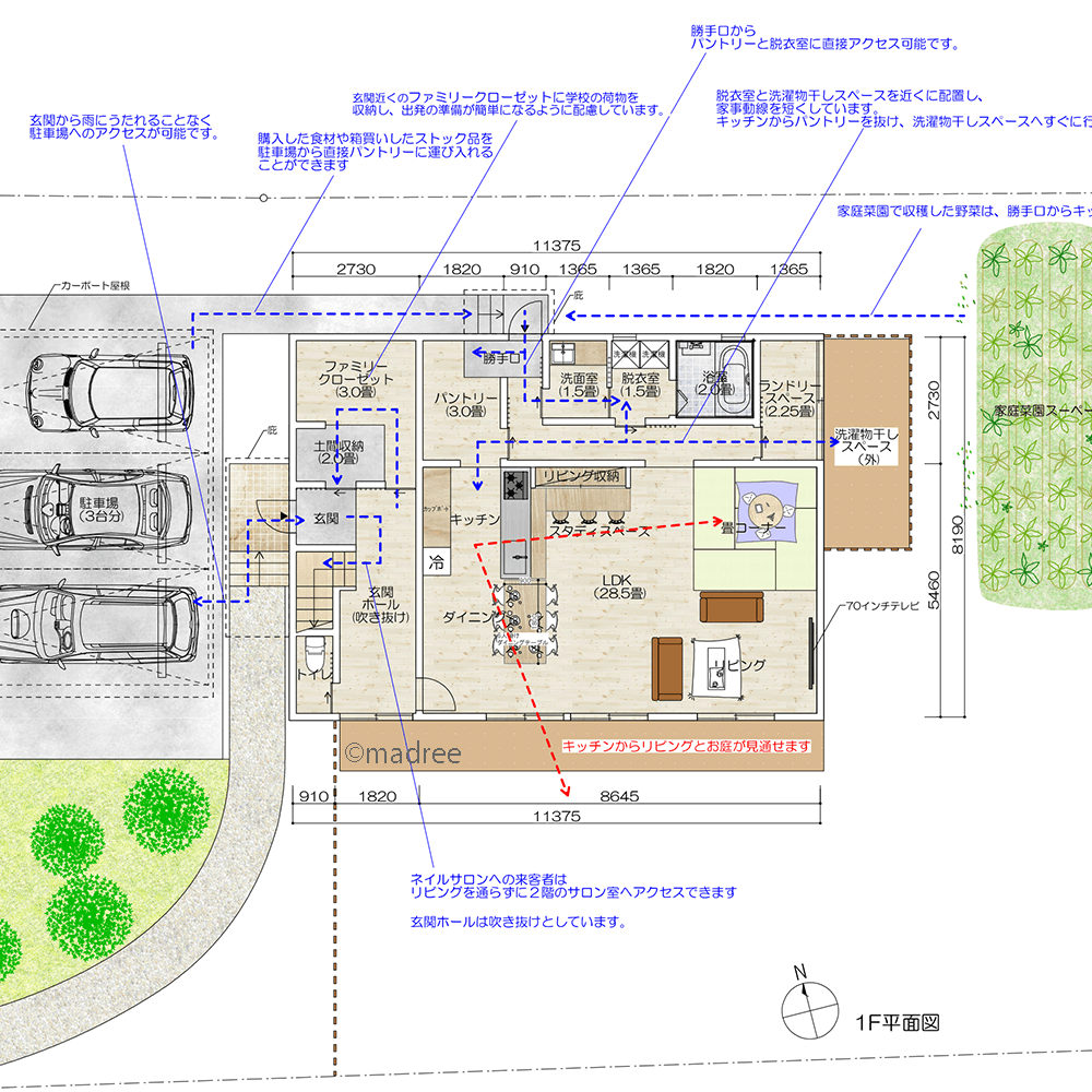
ファミクロ中心動線で家事&生活が捗る、吹抜越しに家族感じる在宅ワーカーの家
-
- 41坪
- 4LDK
キッチンと並んだ楽家事動線、土間仕上げのパントリーで庭からも楽に整う家
-
- 41坪
- 4LDK
庭の緑も取り込むゆったり空間、勾配天井で縦にも抜ける座リビングのある家
-
- 41坪
- 5LDK
玄関から居室まで縦に長く一直線、日常とプライベートをシンプルに繋ぐ平屋
-
- 41坪
- 4LDK
ピットリビングでプライベート空間増える、カーテンなし開放的なLDKの家
-
- 41坪
- 4LDK
中心の吹抜で家族つながり感じる、広庭の緑を望むLDKの家
-
- 41坪
- 5LDK
家族でシェアハウス風に暮らす、介護介助を見据えた自分時間を守れる家
-
- 41坪
- 3LDK
通り道になる回遊キッチン、家の真ん中から短く家事が繋がる家
-
- 41坪
- 2LDK
キッチンがお気に入りの場所になる、回遊動線で家事がサッと片付く家
-
- 41坪
- 3LDK
キッチンから全体を見渡せて安心、大活躍の畳スペースに人が集まる家
-
- 41坪
- 3LDK
晩酌スペースで夜のお楽しみタイム、来客も気軽に泊まれるくつろぎの家
マドリー開発の『住宅営業支援ツール』
madreeデータバンク
マドリーの人気間取り4,800プランを接客・提案に活用できる営業支援ツール
- 競合他社と差がつく、スピード提案
- トレンド間取りで、集客・受注数UP
- 建築家のアイデアを参考に、質の高い提案ができる
