30坪~33坪の間取り一覧
家族や自分の”好き”を叶える注文住宅の間取りが見つかる!暮らしの要望をもとに全国の建築家が作成した30坪~33坪の間取りを277件公開しています。毎日更新中!
-
- 33坪
- 4LDK
リビング収納で物の定位置を決める、開放的ながらセキュリティー性の高い平屋
-
- 32坪
- 2LDK
空間は無駄なく収納に活用、お互いのプライバシーを尊重し合える平屋
-
- 30坪
- 4LDK
一直線に光と風が抜ける、奥行きを活かしたシンプルな縦長LDKの家
-
- 30坪
- 4LDK
日中の穏やかな自然光が心地よい、土間収納を充実させたアクティブ一家の家
-
- 31坪
- 4LDK
くつろぎとコミュニケーションが生まれる、キッチン中心に家族とつながる家
-
- 30坪
- 4LDK
効率的な空間活用で明るさと広がりを両立、成長と共に変化する縦長の家
-
- 31坪
- 2LDK
短い家事動線で有効な空間活用、狭小地でも家族がのびのび過ごせる家
-
- 32坪
- 4LDK
縦の広がりを活かして家中に光を届ける、吹抜から家族の気配を感じられる家
-
- 33坪
- 4LDK
キッチンにいながら洗濯も子守もできる、ワーママに嬉しい効率良い家事動線の家
-
- 32坪
- 3LDK
ウォークスルー動線で1日がスムーズに、自然とつながるアウトドアリビングのある家
-
- 31坪
- 4LDK
中庭を介して家族の雰囲気を家じる、生活の中心に回遊プライベート空間のある家
-
- 33坪
- 4LDK
自分時間を快適に過ごせる、家族それぞれにパーソナルスペースのある家
-
- 31坪
- 3LDK
リビング一体の畳空間を多目的に活用、並行家事がしやすいコンパクト動線の家
-
- 30坪
- 2LDK
土間スペースをフレキシブルに活用、玄関からLDKまでワンフロアになる家
-
- 31坪
- 4LDK
中庭を中心にLDKを空間分けした、窓や廊下越しに家族の存在を感じられる家
-
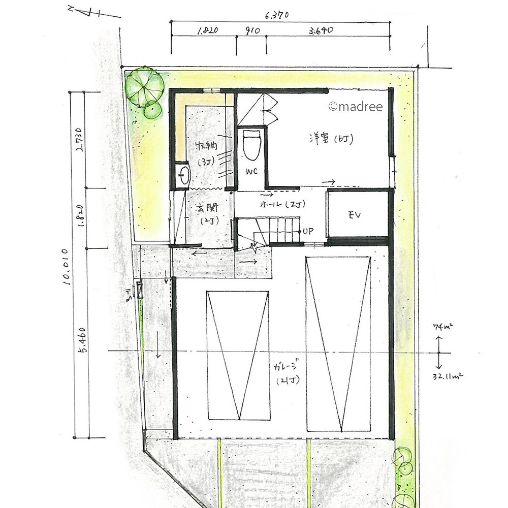
- 33坪
- 2LDK
三角地を活かしたビルトインの趣味スペース、主寝室からガレージを望む家
-
- 31坪
- 4LDK
家族の気配感じながら個々の時間も大切に、気持ちのオンオフ切り替えやすい家
-
- 33坪
- 2LDK
来客いつでもウェルカム、生活感をキッチン裏にまとめた縦長の家
-
- 32坪
- 3LDK
少ない廊下と間仕切りで、動線をコンパクトに生活空間を広々と活用した家
-
- 33坪
- 2LDK
ゆったり廊下で伸びやかに過ごす、家族みんなに優しいバリアフリーの家
-
- 30坪
- 2LDK
広いLDKを廊下のように活用、建物中央からすべての部屋にアクセスしやすい家
-
- 32坪
- 3LDK
大きな開口窓で光と風を感じる、生活動線がシンプルな大人だけで暮らす平屋
-
- 32坪
- 1LDK
在宅ワークのモチベーションUP!三角地に建つ1人暮らしのための平屋
-
- 31坪
- 3LDK
バリアフリーで家族みんなが笑顔に、視線が通る心地よい2階リビングの家
マドリー開発の『住宅営業支援ツール』
madreeデータバンク
マドリーの人気間取り4,800プランを接客・提案に活用できる営業支援ツール
- 競合他社と差がつく、スピード提案
- トレンド間取りで、集客・受注数UP
- 建築家のアイデアを参考に、質の高い提案ができる
