平屋の間取り一覧
家族や自分の”好き”を叶える注文住宅の間取りが見つかる!暮らしの要望をもとに全国の建築家が作成した平屋の間取りを337件公開しています。毎日更新中!
-
- 42坪
- 3LDK
家事ラク意識した動線と充実収納、老後も見据えた視界広がる平屋
-
- 30坪
- 2LDK
共働き家族が快適に過ごせる工夫、回遊で繋ぐ家事動線で時間に余裕の生まれる家
-
- 32坪
- 3LDK
陽だまりリビングに家族集う、自然光と風感じるおとな世帯の平屋
-
- 43坪
- 5LDK
リビング中心に家族のプライベート守る、開放感に満ちた勾配天井の平屋
-
- 27坪〜30坪
- 2LDK
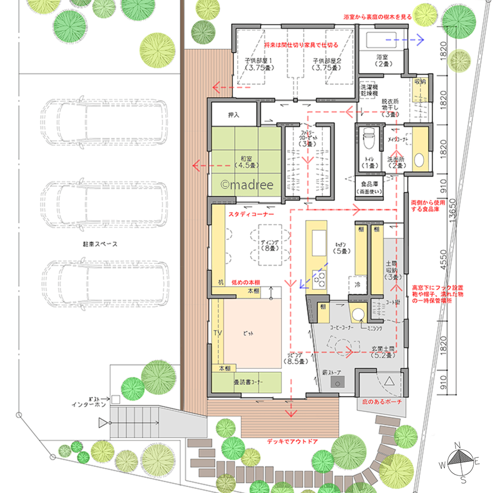
複数の回遊動線で屋内外を繋ぐ、本好きが篭れる畳の陽だまり読書コーナーのある平屋
-
- 35坪
- 4LDK
庭2つより自然の景色取り入れる、のびやかな空間ながらもミニマル家事の家
-
- 61坪
- 4LDK
横長の土地を玄関中心にゾーン分け、日当たり良いのびやかな家
-
- 36坪
- 3LDK
キッチンから家族を見守れる、陽だまりリビングのあたたかな家
-
- 33坪
- 2LDK
気持ち良く過ごせる癒しの在宅ワークスペース、坪庭の緑でリフレッシュできる平屋
-
- 31坪
- 2LDK
ゆとりある衣食住で心も体も休まる、太陽の光をたっぷり取り込んだ里山の家
-
- 30坪
- 2LDK
L字のウッドデッキに全室つながる、四季折々感じながら趣味愉しむ家
-
- 41坪
- 3LDK
自然感じる伸びやかなLDKと、多目的ファミリールームのある平屋
-
- 37坪
- 3LDK
ウォークスルー収納が居住空間を繋ぐ、家族それぞれにパーソナルスペースのある平屋
-
- 32坪
- 2LDK
リビングに各々のスペース確保、夫婦2人暮らしにちょうど良い平屋
-
- 35坪
- 1LDK
農作業後に嬉しいすぐサッパリの帰宅後動線、LDKを通らずテラスから水廻りへ直行できる平屋
-
- 27坪〜30坪
- 2LDK
土間のキッチンで来客をおもてなし、趣味を活かしたお家カフェスペースのある平屋
-
- 39坪
- 3LDK
扉ひとつで間仕切る癒しスペース、離れのように過ごすサブリビングのある平屋
-
- 39坪
- 3LDK
夫婦の個々時間も尊重しつつ、家族の会話弾むアイランドキッチン中心の平屋
-
- 30坪
- 2LDK
ゆとりある空間配置で日々の生活を快適に、50代夫婦が将来を見据えて暮らす平屋
-
- 27坪〜30坪
- 3LDK
仕事と趣味をのんびり贅沢に愉しむ、太陽の光をたっぷり取りこむ里山の平屋
-
- 27坪〜30坪
- 2LDK
暮らしやすさと趣味を共存、ぬくもりに溢れた四季を感じる平屋
-
- 41坪
- 5LDK
リビング中心に居心地良い空間広がる、家族のコミュニケーション育む平屋
-
- 32坪
- 2LDK
目的別デッキが屋外家事を楽にする、高齢になっても空間のゆとりで快適に過ごせる平屋
-
- 26坪
- 1LDK
泥付き野菜でも安心の収納スペース、室内から行き来できる倉庫兼ガレージのある平屋
マドリー開発の『住宅営業支援ツール』
madreeデータバンク
マドリーの人気間取り4,800プランを接客・提案に活用できる営業支援ツール
- 競合他社と差がつく、スピード提案
- トレンド間取りで、集客・受注数UP
- 建築家のアイデアを参考に、質の高い提案ができる
