3階建の間取り一覧
家族や自分の”好き”を叶える注文住宅の間取りが見つかる!暮らしの要望をもとに全国の建築家が作成した3階建の間取りを132件公開しています。毎日更新中!
-
- 59坪
- 5LDK
吹抜やトップライトで採光確保、階段でLDKをゆるく空間分けした家
-
- 44坪
- 3LDK
リビングまわりの収納ですっきり整う、プライバシー重視の明るい2階リビングの家
-
- 42坪
- 4LDK
適材適所の壁面収納でスッキリ整う、土地を有効活用した二世帯住宅
-
- 45坪
- 5LDK
大きな収納を家族で共有、コンパクトな各部屋を最大限に活かせる家
-
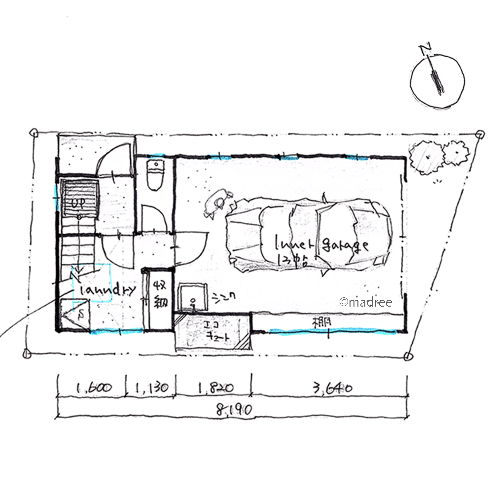
- 66坪
- 5LDK
家事も趣味も家族で楽しむ、インナーテラスと吹抜で縦横に視線が抜ける家
-
- 49坪
- 4LDK
スキップフロアで空間を縦に活かす、コンパクトでも広がりを感じられる家
-
- 25坪
- 3LDK
帰宅後はキレイサッパリしてLDKへ、壁面収納で狭小地を広々使える家
-
- 27坪〜30坪
- 3LDK
階ごとのゾーニングで暮らし整う、視線が抜ける狭小地の三階建て住宅
-
- 48坪
- 2LDK
親子で学びとリラックスを共有、廊下ナシ充実収納の3階建ての家
-
- 49坪
- 5LDK
玄関も別の家族用動線で、生活感隠してスッキリ過ごす3階建ての家
-
- 27坪〜30坪
- 3LDK
別空間で安心して過ごす、来客動線と交わりにくい習い事教室併用の家
-
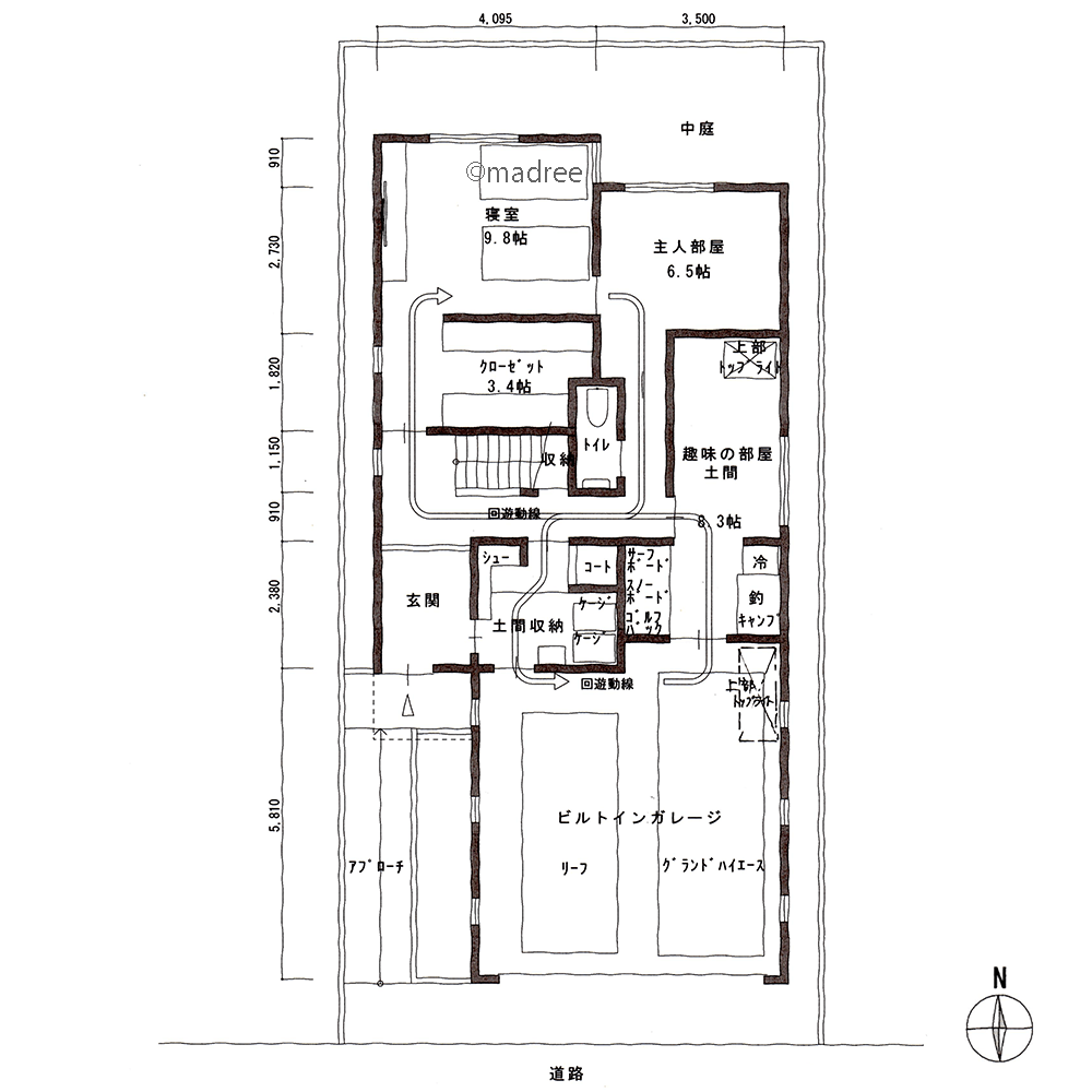
- 27坪〜30坪
- 5LDK
家族集まる明るい2階リビングと、インナーガレージで夢叶える狭小地の家
-
- 49坪
- 6LDK
屋上に広がるプライベート空間、スカイバルコニーで快適な週末過ごす家
-
- 50坪以上
- パントリー
庭池の錦鯉と木々に癒される、人が集まる賑やかな二世帯住宅
-
- 33坪
- 4LDK
屋上まで快適に行き来できる、ホームエレベーターで老後生活も安心の家
-
- 50坪以上
- 3LDK
ガレージから繋がる2箇所の玄関、家族動線と混らず自宅教室へ向かう家
-
- 48坪
- 4LDK
成長に合わせて部屋数も変化、家族それぞれにプライベート空間のある家
-
- 37坪
- 4LDK
穏やかな気持ちで空を望む、天窓からの採光で居心地良いリビングの家
-
- 36坪
- 3LDK
在宅ワークも快適に過ごす、全室南向きの明るく暖かい三角地の家
-
- 42坪
- パントリー
安心の距離で独立した暮らし、景色を共有する完全二世帯住宅
-
- 27坪〜30坪
- 3LDK
玄関で動線をハッキリ分けた、仕事と快適な生活を両立する家
-
- 50坪以上
- 5LDK
生活感を封印し気持ちもスッキリ、植栽豊かな縦長のコートハウス
-
- 50坪以上
- 6LDK
家族で楽しくおうちエクササイズ、猫もキャットウォークでのびのび過ごす家
-
- 33坪
- 4LDK
玄関で気持ちを切り替える、別動線で生活と仕事の環境整う家
マドリー開発の『住宅営業支援ツール』
madreeデータバンク
マドリーの人気間取り4,800プランを接客・提案に活用できる営業支援ツール
- 競合他社と差がつく、スピード提案
- トレンド間取りで、集客・受注数UP
- 建築家のアイデアを参考に、質の高い提案ができる
