家事室の間取り一覧
家族や自分の”好き”を叶える注文住宅の間取りが見つかる!暮らしの要望をもとに全国の建築家が作成した家事室の間取りを124件公開しています。毎日更新中!
-
- 25坪
- 4LDK
狭小地を広々使える空間工夫、木の温もりを感じる勾配天井の家
-
- 36坪
- 3LDK
勾配天井で広がる縦の開放感、外遊び後も安心の浴室直行できる家
-
- 38坪
- 3LDK
階段でon/offスペースゆるくわける、緑豊かな人が集まる縦長の平屋
-
- 30坪
- 3LDK
カウンターでこだわりコーヒーを楽しむ、開放感に満ちるアイデア詰まった狭小3階建の家
-
- 38坪
- 4LDK
休日はテラスで優雅な朝食を、家事動線と収納充実の平屋
-
- 50坪以上
- 5LDK
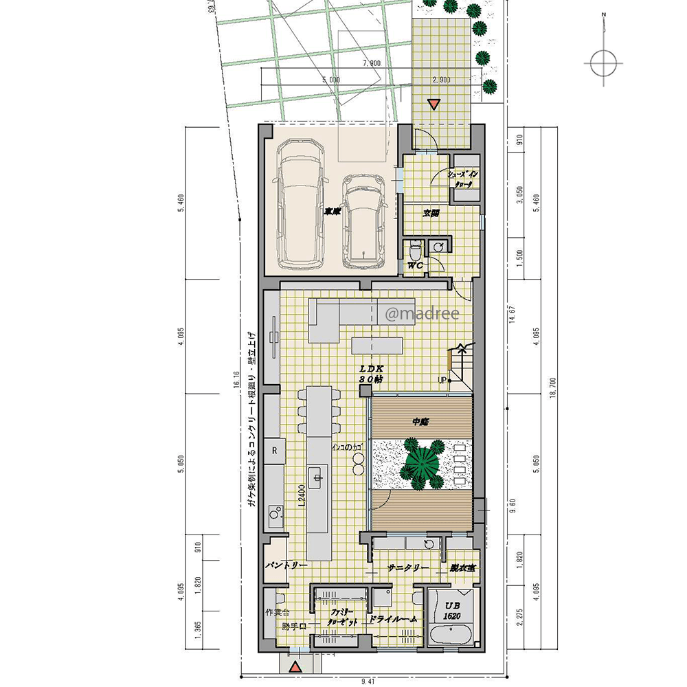
中庭から朝日が降り注ぐ、家族もペットも気持ちの良い朝を迎える家
-
- 34坪
- 4LDK
すっきりリビングを保つ帰宅後動線で、3世代が悠然と過ごせる二世帯住宅
-
- 36坪
- 4LDK
玄関まわりのぐるぐる動線で準備がスムーズ、子ども達の自主性育む家
-
- 37坪
- 5LDK
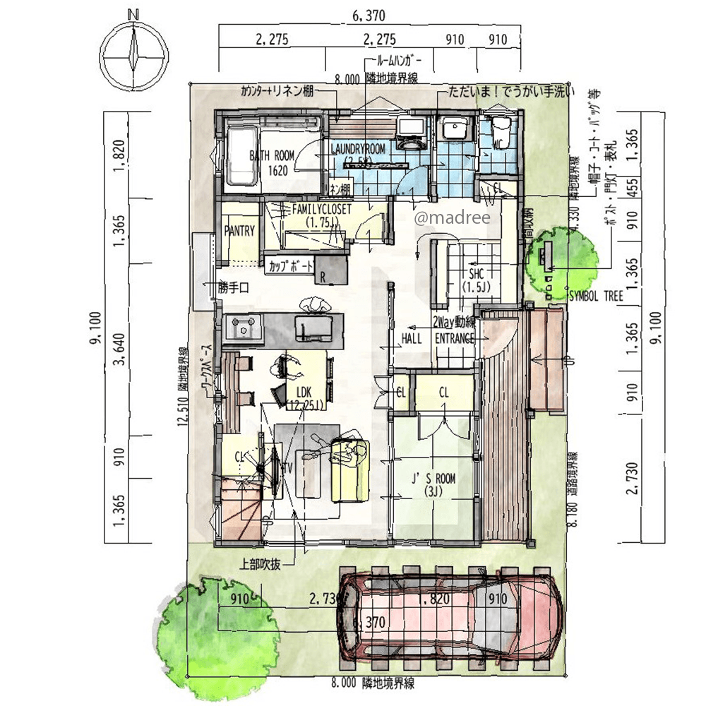
コンパクト動線で負担軽減、家事室を介してアクセス良く繋がる家
-
- 45坪~49坪
- 6LDK
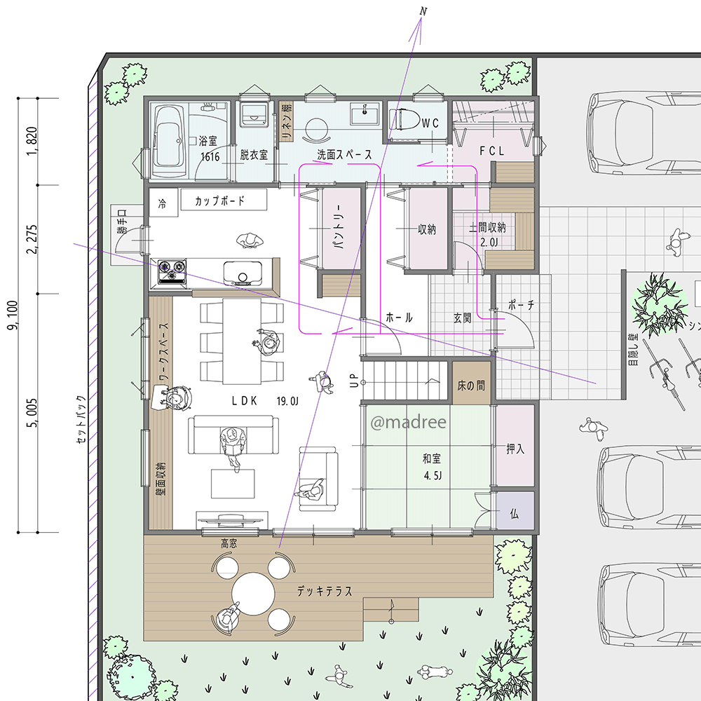
テラス一体の大空間リビングに集う、洗練されたホテルライクな家
-
- 30坪
- 3LDK
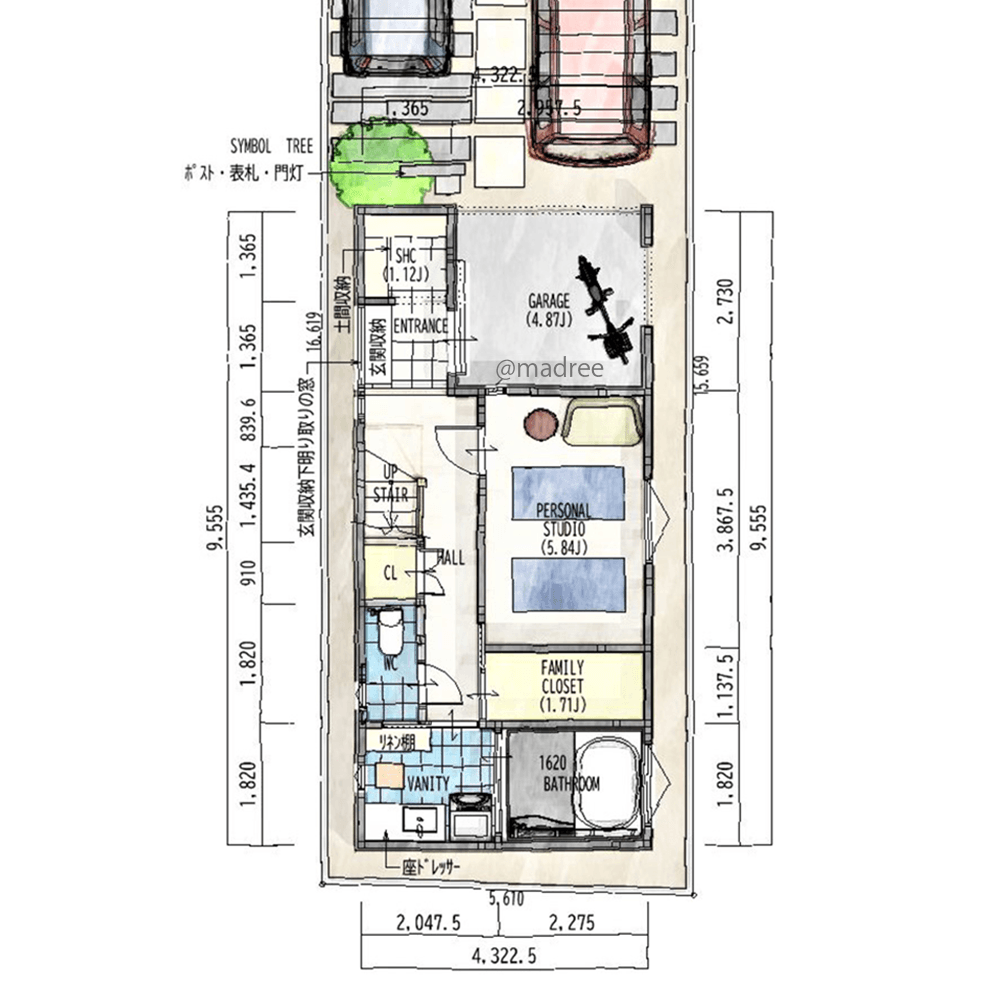
子どもが自分で身支度できる、縦長地を活かしたプライベートテラスのある家
-
- 30坪
- 3LDK
ただいま動線で子どもの自立を育む、ラク家事追求した共働き応援の家
-
- 25坪
- 3LDK
仕事の合間にサクサク家事できる、小回り動線で住み良い家
-
- 36坪
- 5LDK
各々好きな空間にいながらも家族つながる、遊び心と実用性を兼ね揃えた家
-
- 30坪
- 2LDK
中庭デッキから明るさ取り込む、縦長敷地で快適に暮らす家
-
- 41坪
- 3LDK
敷地中央のプライベート庭で、視線気にせず安心の外遊び楽しむ家
-
- 36坪
- 3LDK
中庭から自然光差し込む、囲まれた敷地でも明るくプライバシー確保した平屋
-
- 58坪
- 5LDK
朝日差し込むLDKで気持ち良い朝迎える、シンプル外観の二世帯住宅
-
- 34坪
- 2LDK
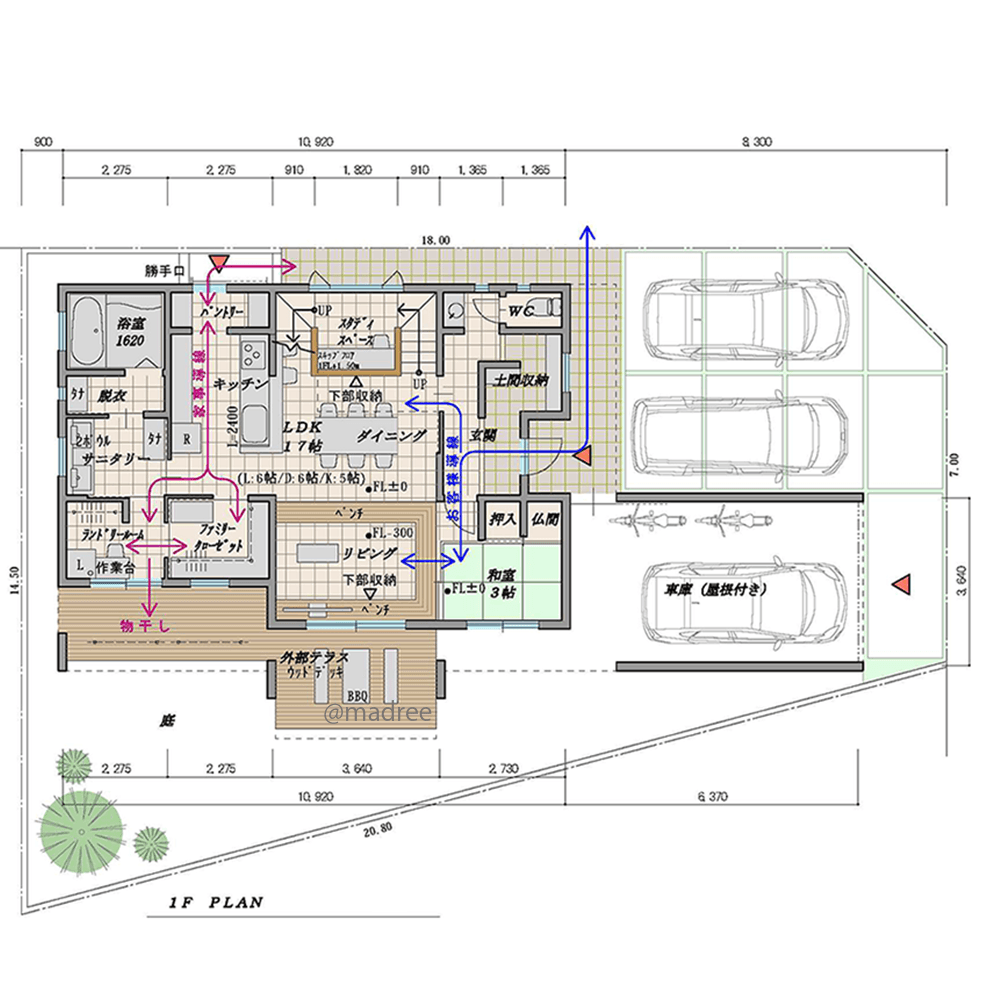
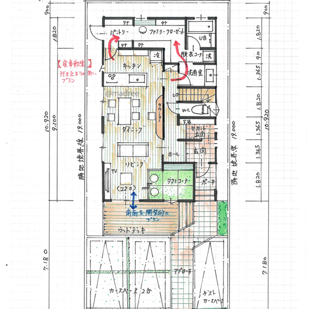
キッチンまわりに家事動線を集約し、帰宅後すぐにオフモードになれる動線重視の家
-
- 27坪〜30坪
- 2LDK
自転車乗り入れOK、ギア収納からメンテナンスまで趣味を満喫する整備スペースのある平屋
-
- 32坪
- 4LDK
実用性を兼ね備えた開放感、視線気にせず庭の緑を楽しむ家
-
- 32坪
- 3LDK
アウトドアリビングで特別な時を、趣味を楽しむ終の住処の平屋
-
- 33坪
- 4LDK
回遊動線で快適家事、すっきり片付く収納力ある平屋
-
- 42坪
- 4LDK
収納力高くスッキリ片付く、南向きで明るく東西に細長い家
マドリー開発の『住宅営業支援ツール』
madreeデータバンク
マドリーの人気間取り4,800プランを接客・提案に活用できる営業支援ツール
- 競合他社と差がつく、スピード提案
- トレンド間取りで、集客・受注数UP
- 建築家のアイデアを参考に、質の高い提案ができる
